← Wyre Council

Status

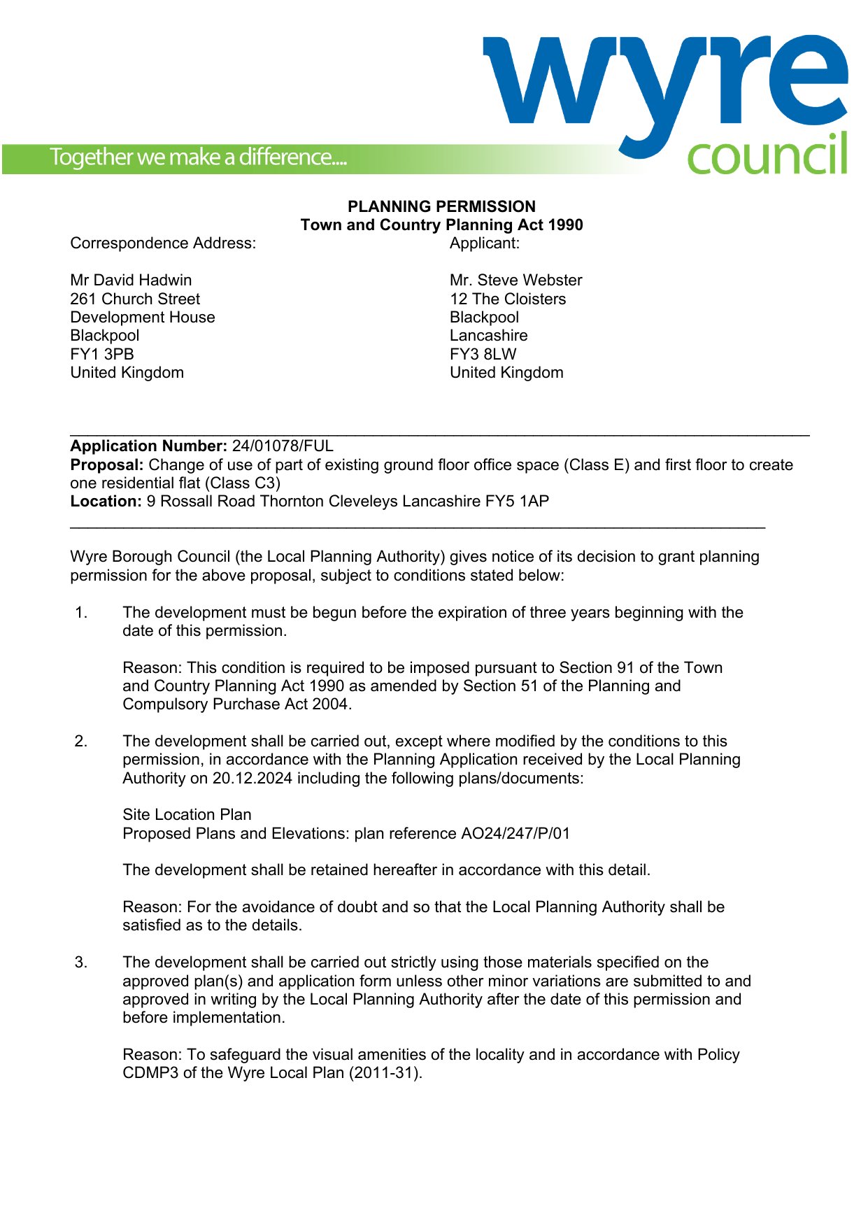
Application Permitted Change of use
Received
20 Dec 2024
New homes
1

Full proposal

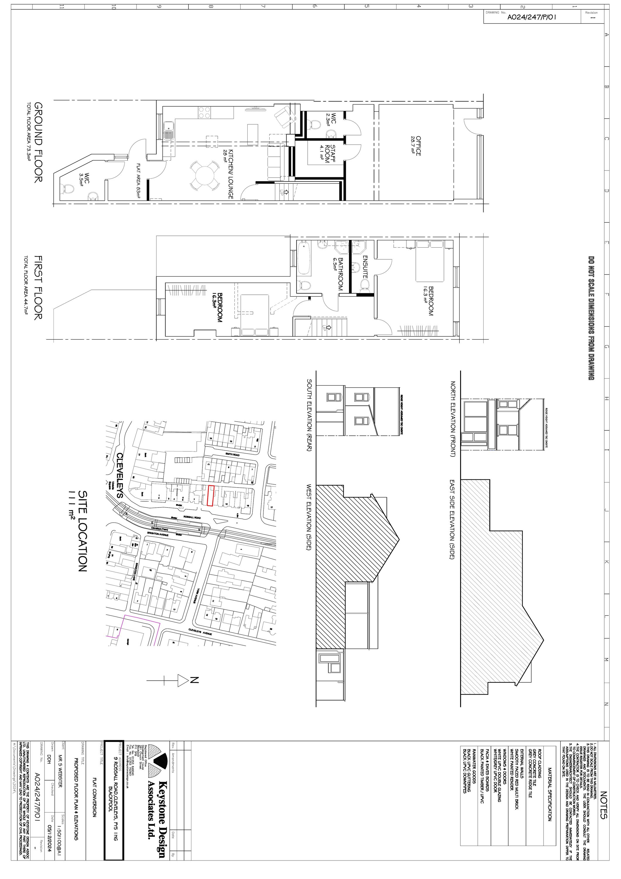
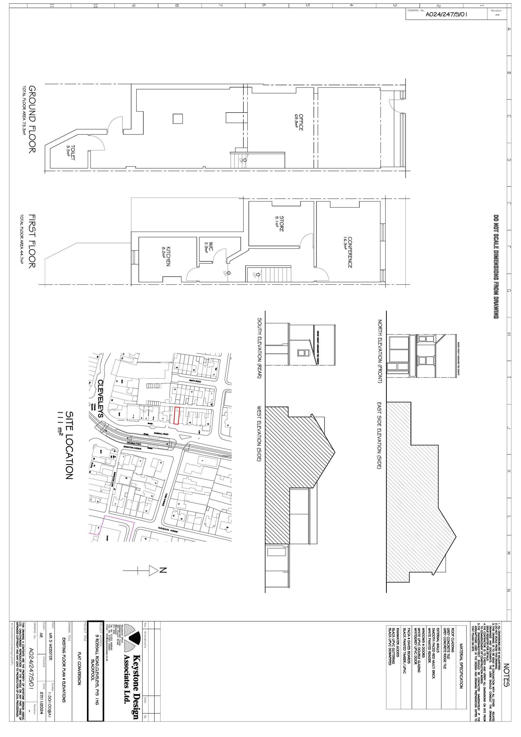
Change of use of part of existing ground floor office space (Class E) and first floor to create one residential flat (Class C3)

Documents

Consultee Response
Archived · Original link
Consultee Response
Archived · Original link
Decision Notice
Archived · Original link
Delegated Report
Archived · Original link
Flood Risk Assessment
Archived · Original link
Consultee Response
Archived · Original link
Approved Plans
Archived · Original link
Approved Plans
Archived · Original link

Have your say

Your comment matters. Councils must consider every representation that raises material planning considerations.

Write a comment