← Wyre Council

Status

Application Permitted House extension
Received
20 May 2025
New homes
0

Full proposal

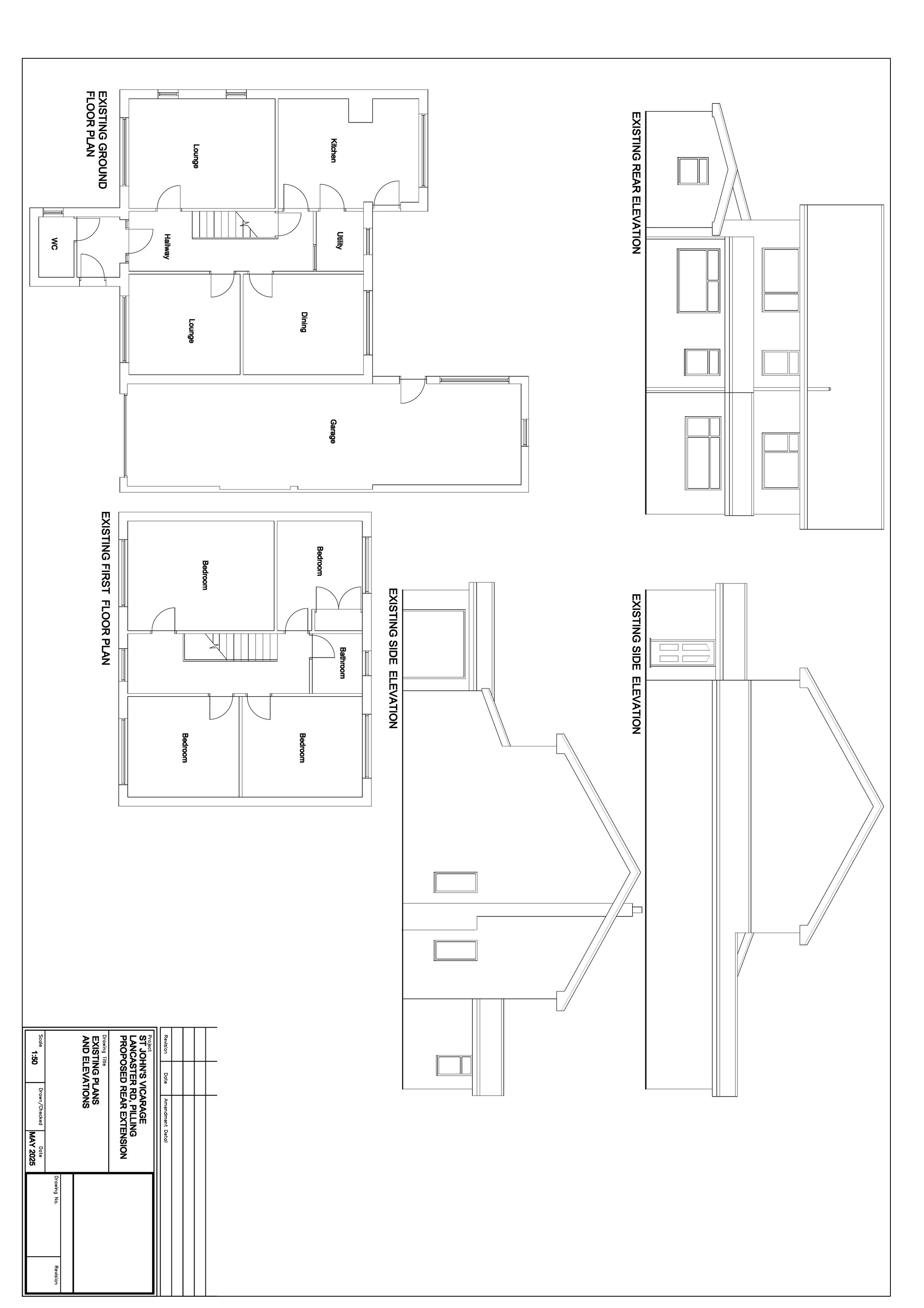
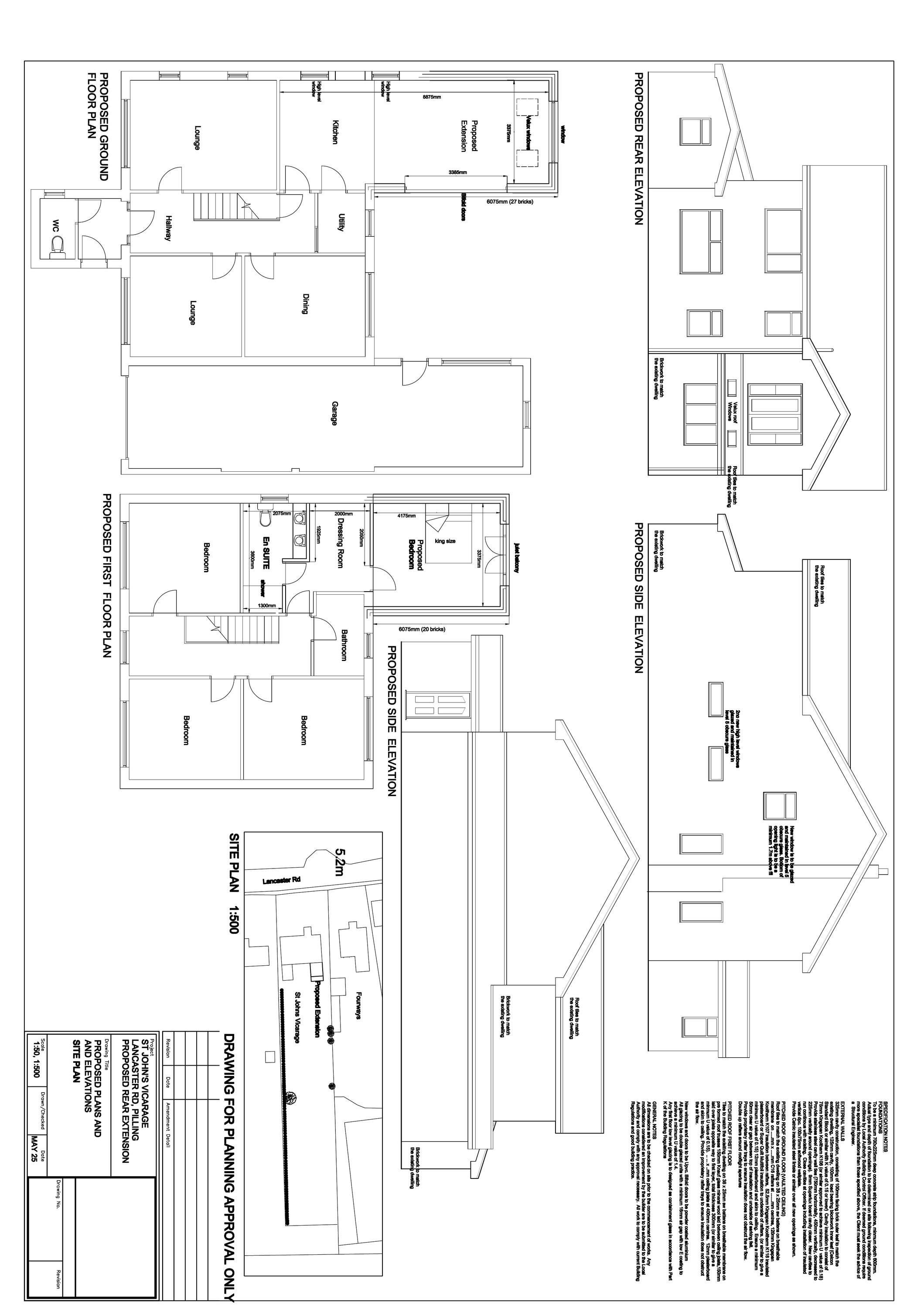
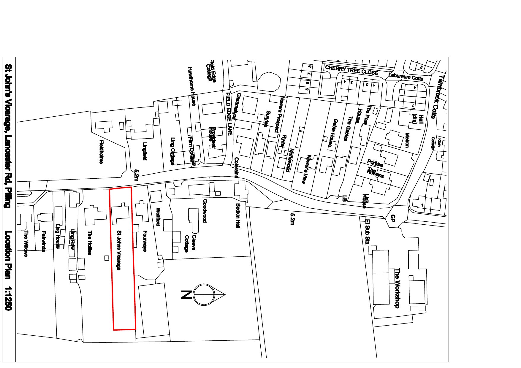
Two storey rear extension including demolition of existing single storey and lean to roof

Documents

Consultee Response
Archived · Original link
Decision Notice
Archived · Original link
Delegated Report
Archived · Original link
Flood risk assessment
Flood Risk Assessment
Not yet archived · Original link
Approved Plans
Archived · Original link
Approved Plans
Archived · Original link

Have your say

Your comment matters. Councils must consider every representation that raises material planning considerations.

Write a comment