← Wyre Council

Status

Pending Consideration House extension
Received
19 Nov 2025
New homes
0

Full proposal

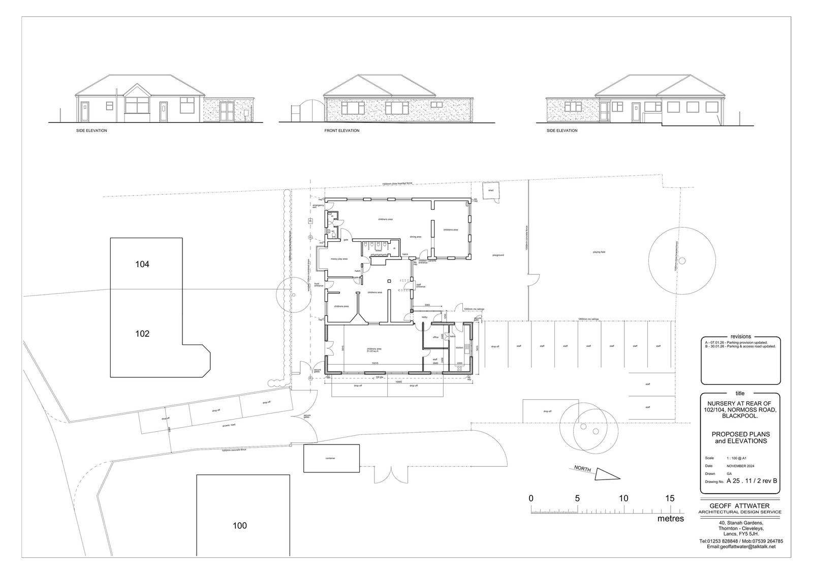
Proposed single storey flat roofed front extension and internal alterations to facilitate the maximum number of children attending the day nursery being limited to 62 at any one time.

Documents

Application form - without personal data
Application Form
Not yet archived · Original link
Car parking layout including fire appliance position
Revised Plans
Not yet archived · Original link
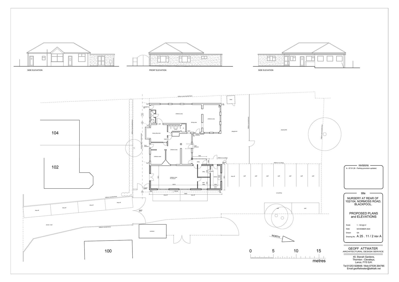
Superseded Plans
Archived · Original link
Existing elevations, existing floor plan
Superseded Plans
Not yet archived · Original link
Existing plans and elevations
Revised Plans
Not yet archived · Original link
Flood risk assessment
Flood Risk Assessment
Not yet archived · Original link
Lancashire fire and rescue
Consultee Response
Not yet archived · Original link
Mr jonathan faill environmental protection
Consultee Response
Not yet archived · Original link
Mrs janet lawson-marsden lcc highways
Consultee Response
Not yet archived · Original link
Mrs janet lawson-marsden lcc highways
Consultee Response
Not yet archived · Original link
Planning statement
Application Documentation
Not yet archived · Original link
Proposed elevations, proposed floor plan
Superseded Plans
Not yet archived · Original link
Proposed floor plan
Superseded Plans
Not yet archived · Original link
Revised Plans
Archived · Original link
Superseded Plans
Archived · Original link
Site Location Plan
Archived · Original link

Have your say

Your comment matters. Councils must consider every representation that raises material planning considerations.

Write a comment