← Wyre Council

Status

Pending Consideration House extension
Received
15 Jan 2026
New homes
0

Full proposal

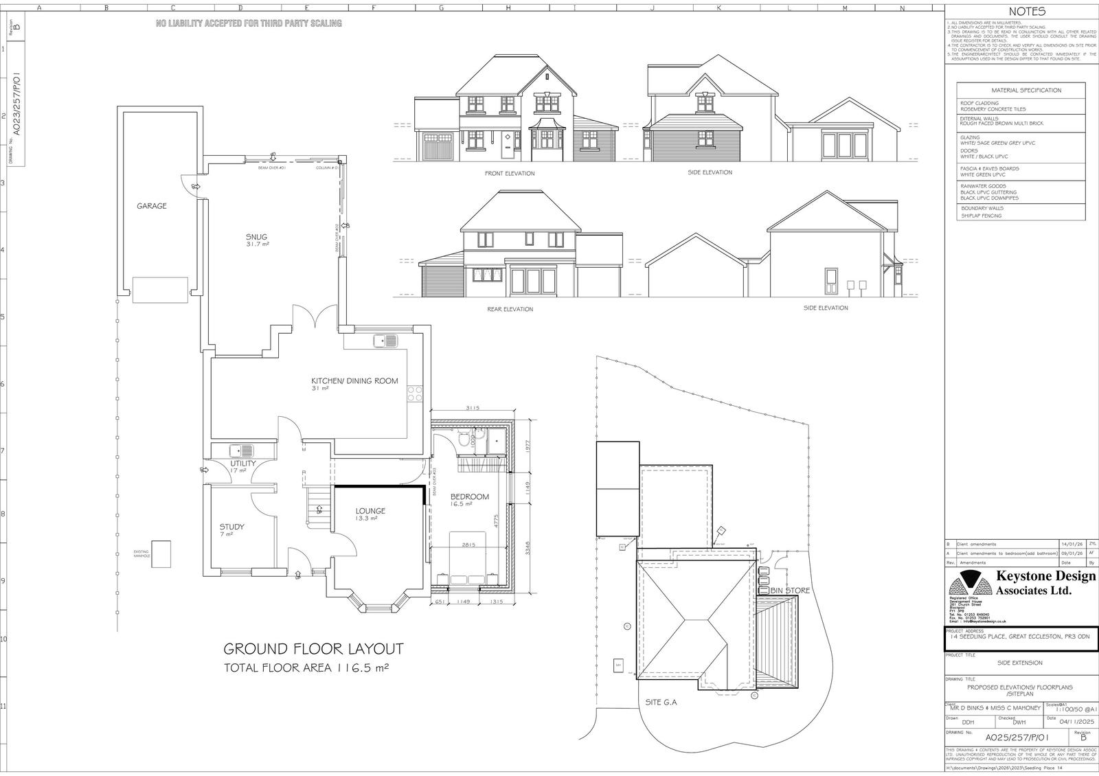
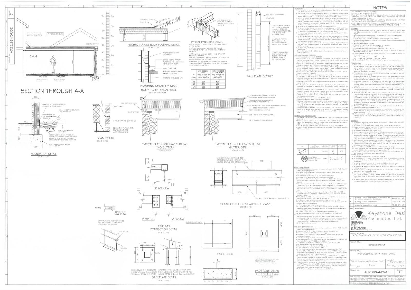
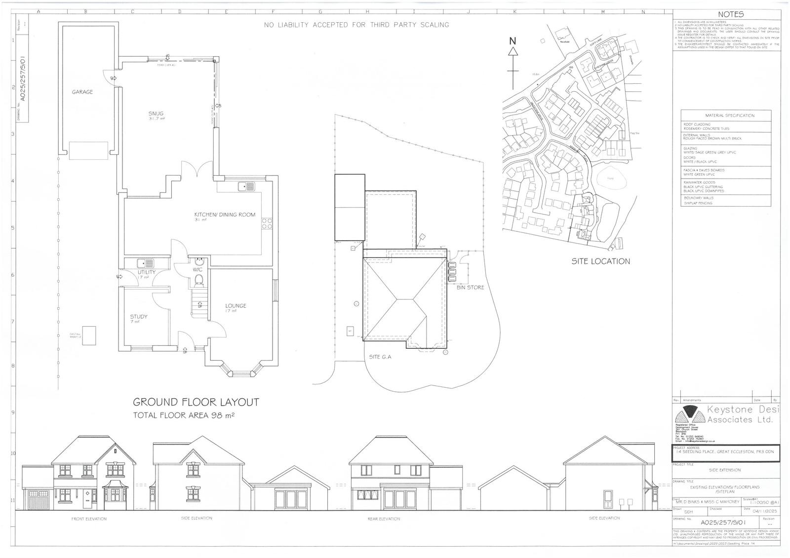
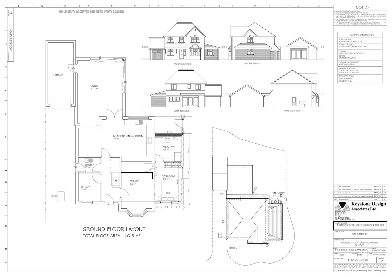
Proposed erection of single storey side extension.

Have your say

Your comment matters. Councils must consider every representation that raises material planning considerations.

Write a comment