← Wyre Council

Status

Pending Consideration House extension
Received
19 Jan 2026
New homes
0

Full proposal

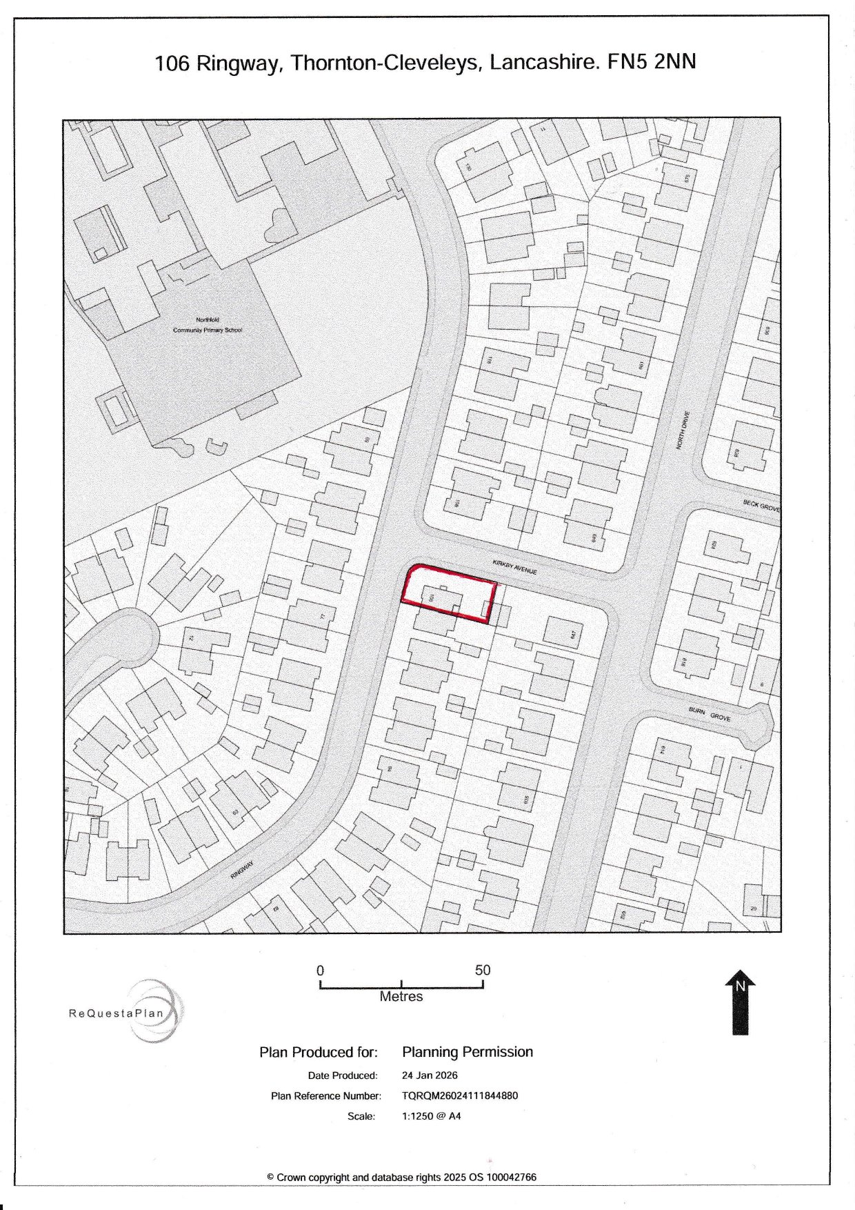
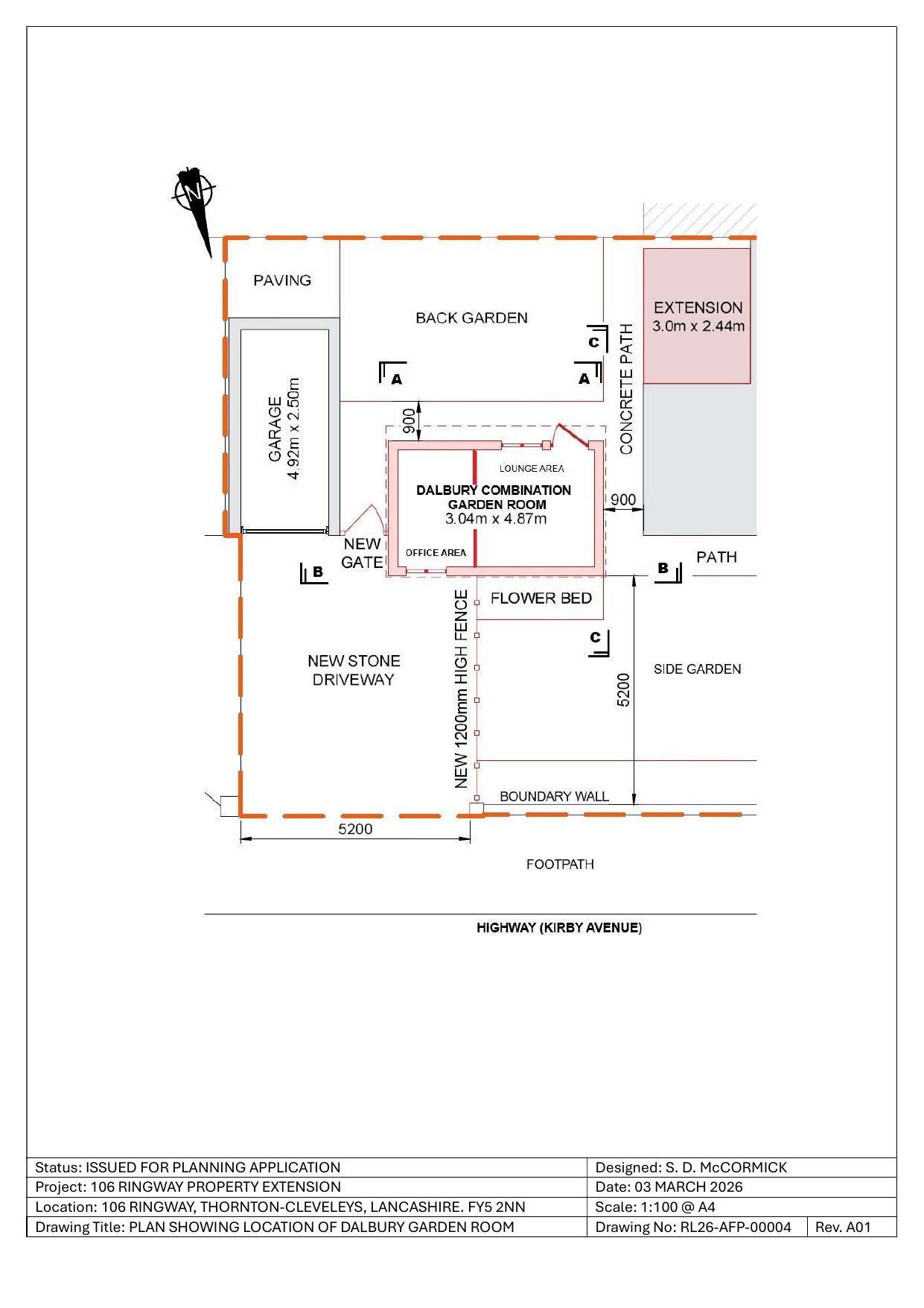
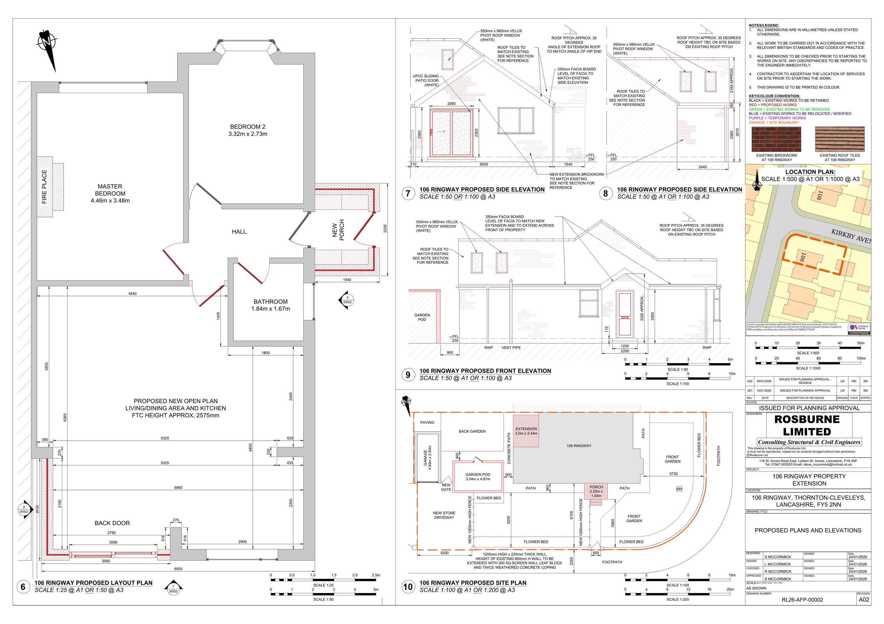
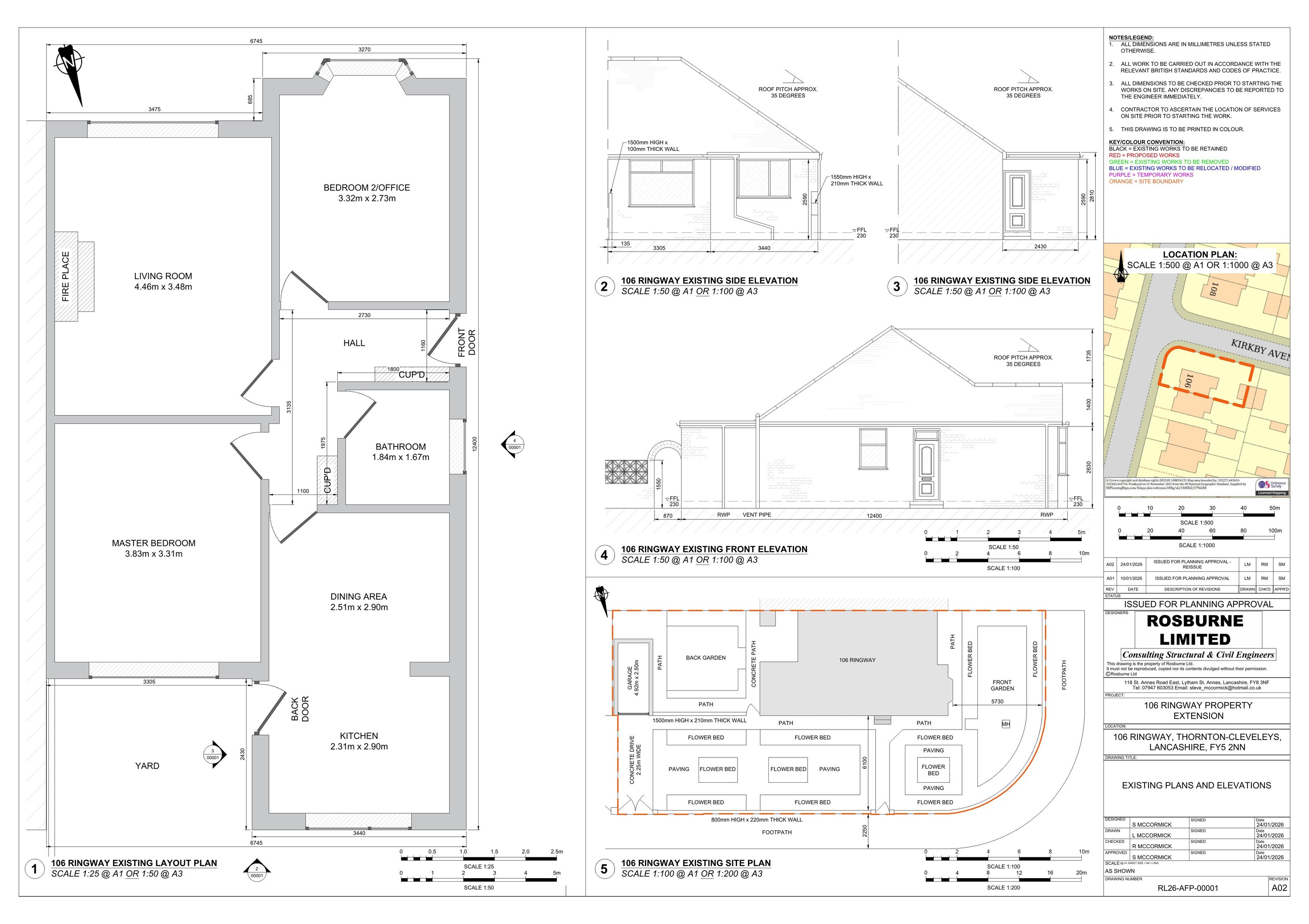
Proposed single storey rear extension, side porch, erection of garden, creation of two car driveway and raised side garden wall (1.2m in height)

Have your say

Your comment matters. Councils must consider every representation that raises material planning considerations.

Write a comment