← Wyre Council

Status

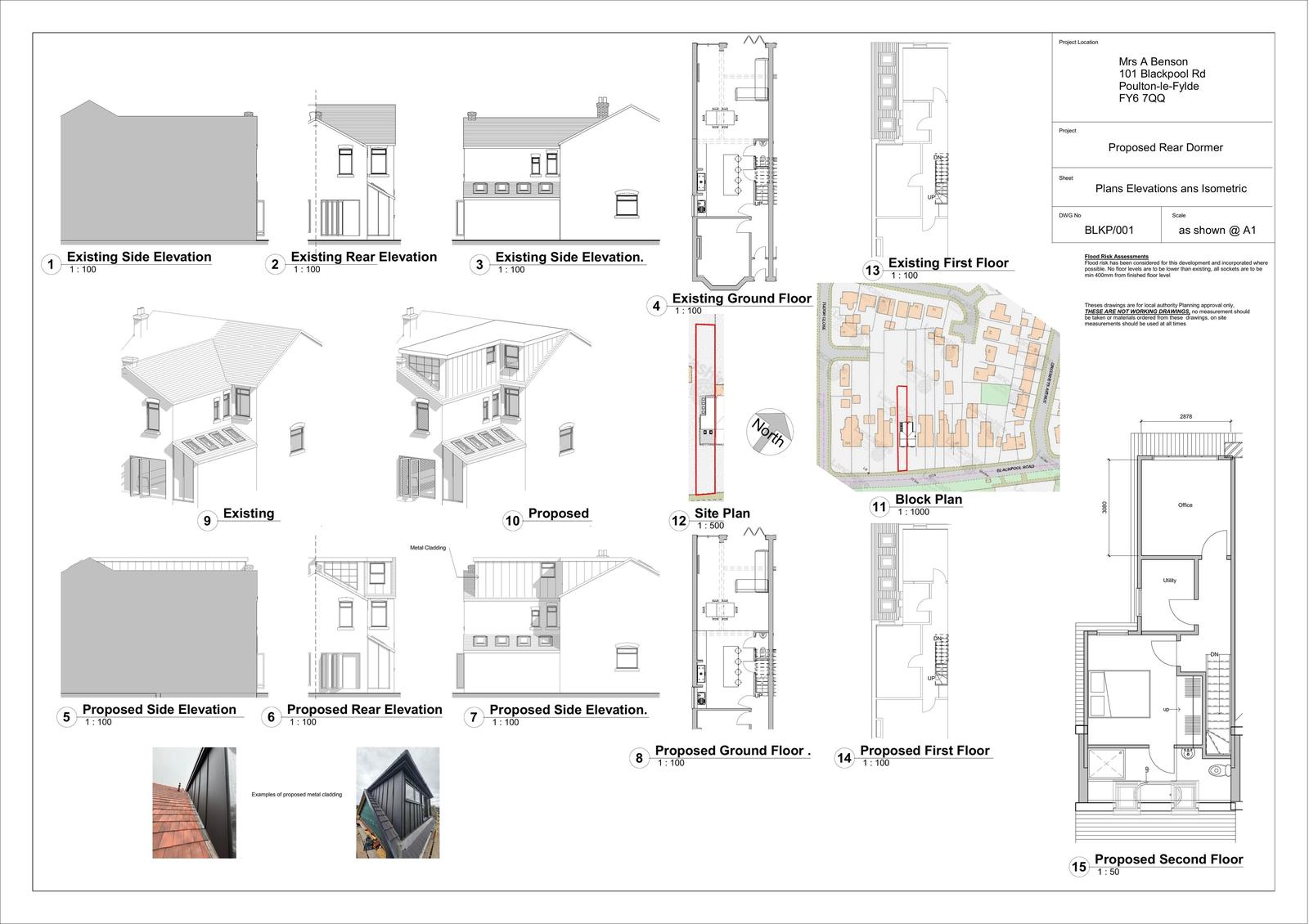
Pending Consideration House extension
Received
19 Jan 2026
New homes
0

Full proposal

Proposed loft conversion with rear dormer

Have your say

Your comment matters. Councils must consider every representation that raises material planning considerations.

Write a comment