← Wyre Council

Status

Pending Consideration House extension
Received
27 Jan 2026
New homes
0

Full proposal

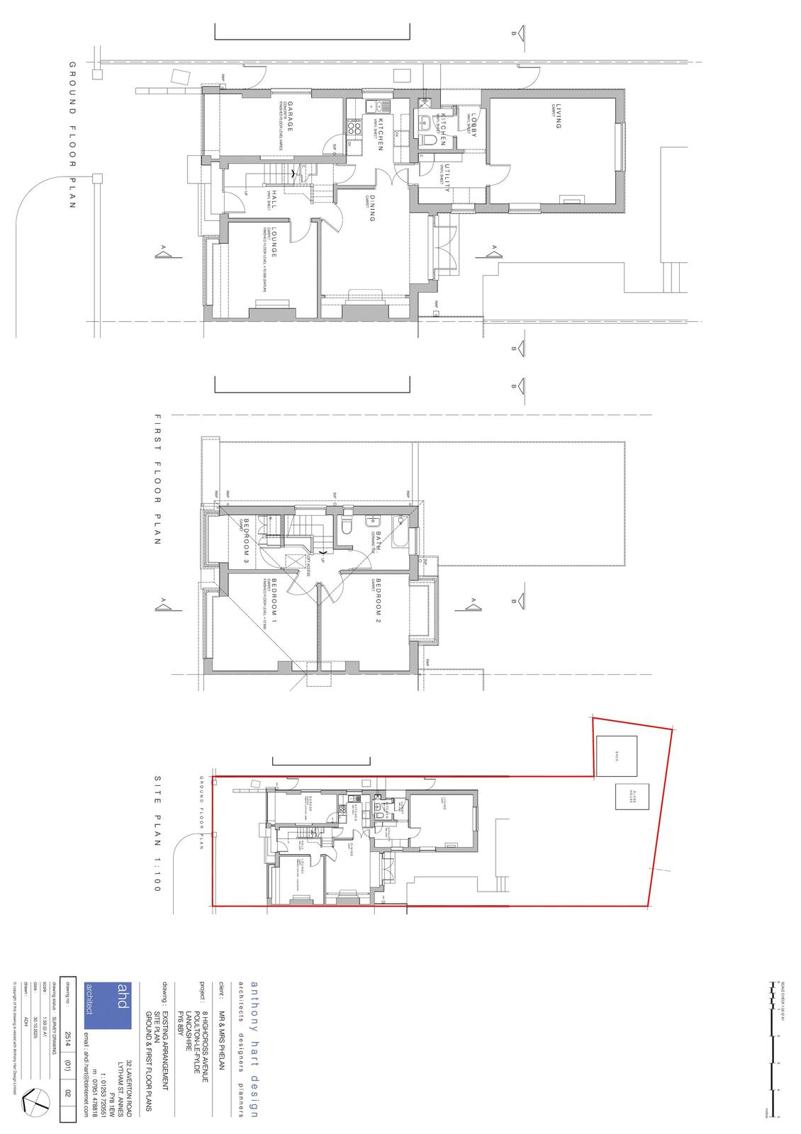
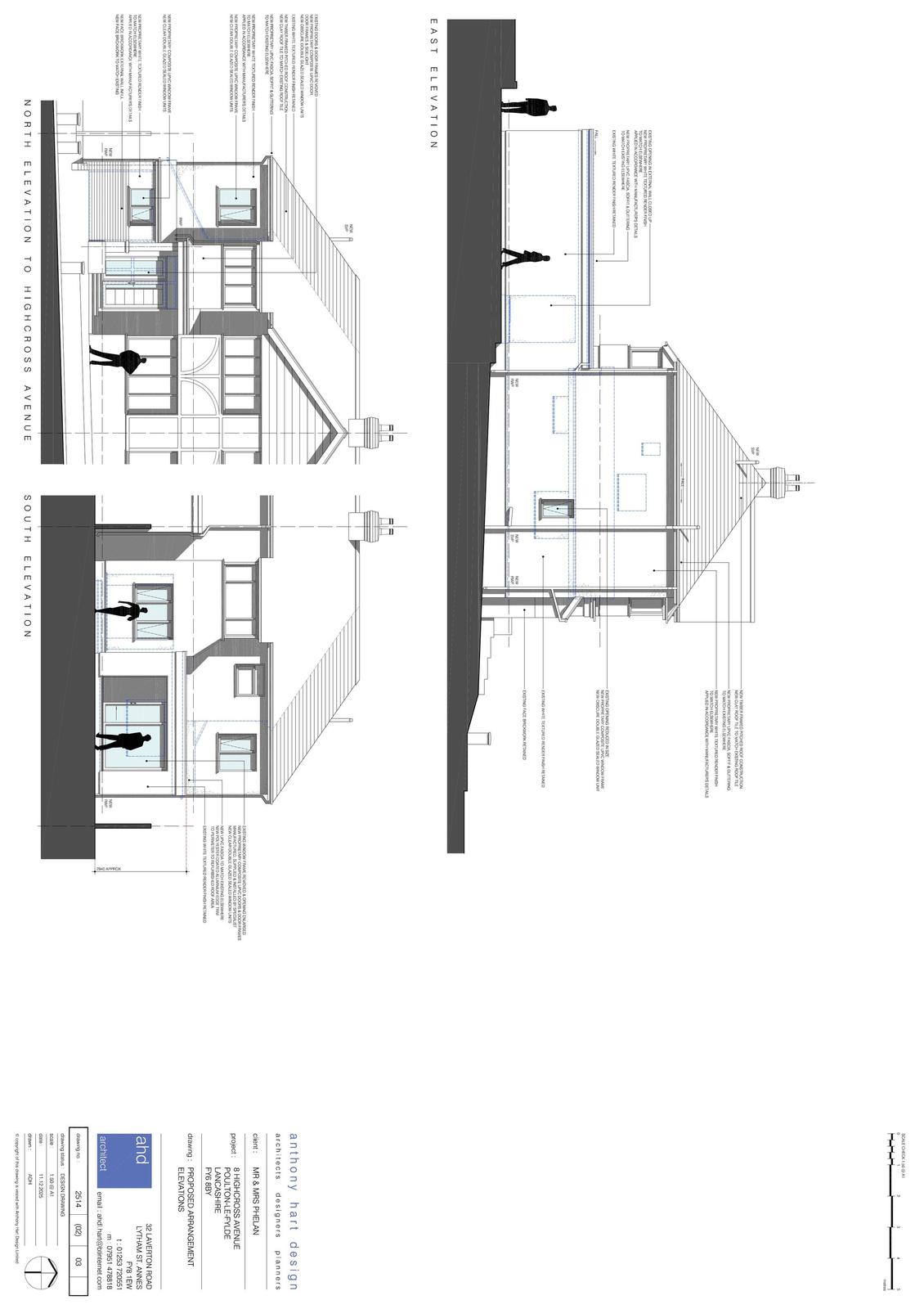
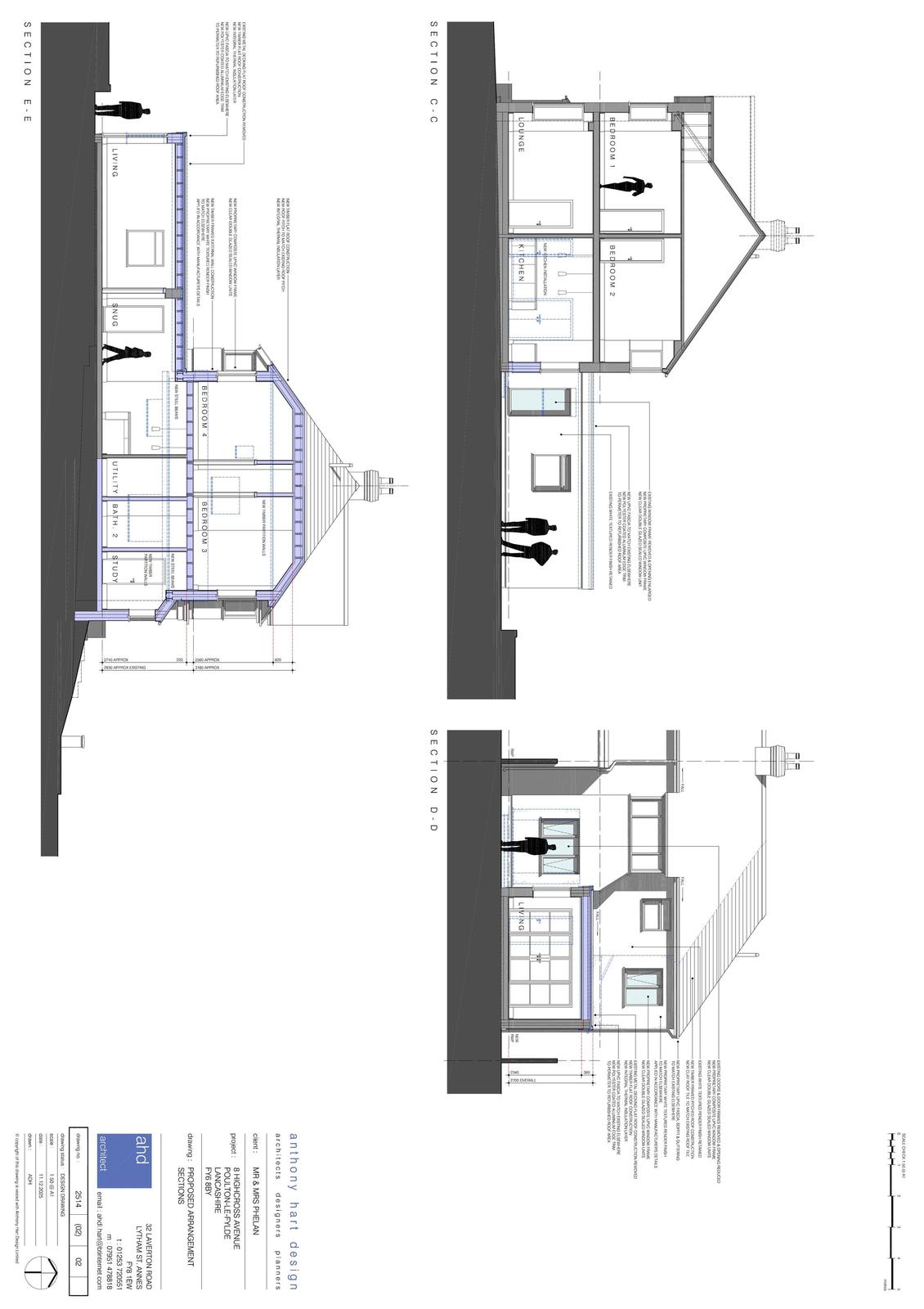
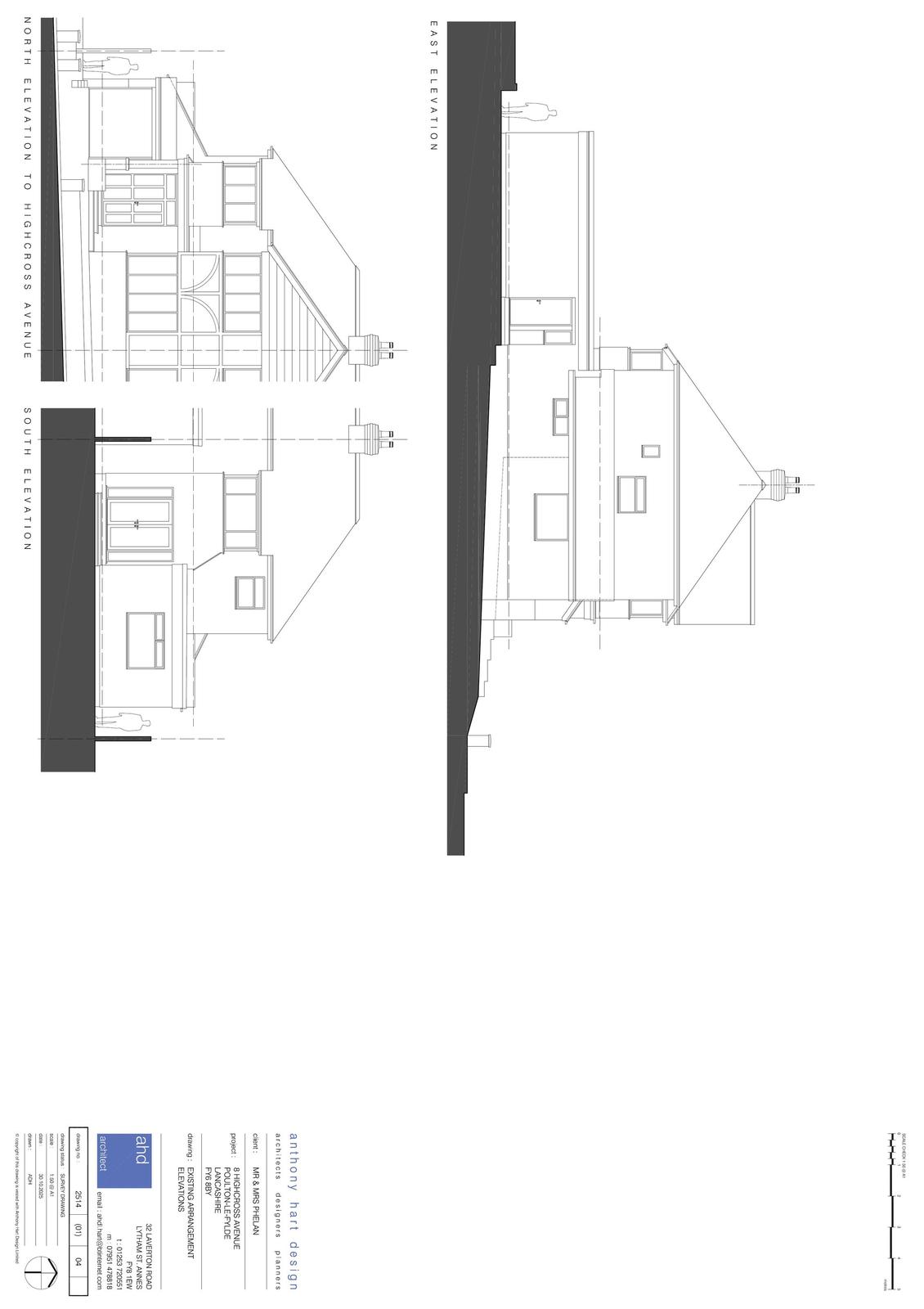
Proposed erection of first floor extension above existing garage. Conversion of existing garage into utility room, toilet and cloakroom. Replacement of existing garage door with front facing window.

Documents

Plans
Archived · Original link
Revised Document
Archived · Original link
Plans
Archived · Original link
Revised Document
Archived · Original link

Have your say

Your comment matters. Councils must consider every representation that raises material planning considerations.

Write a comment