← Wyre Council

Status

Pending Consideration Commercial
Received
Last month
New homes
0

Full proposal

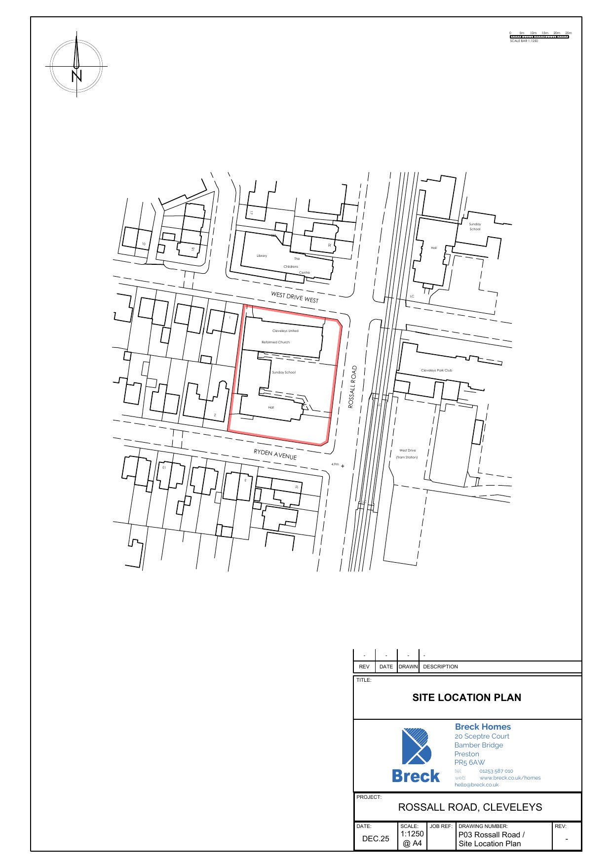
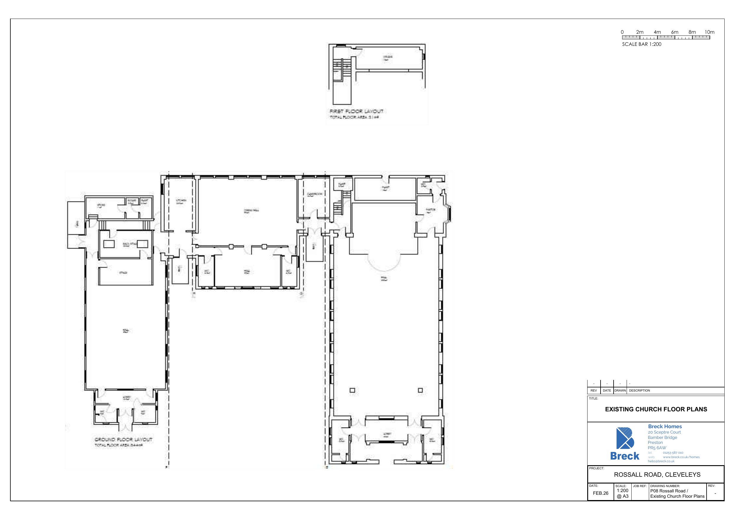
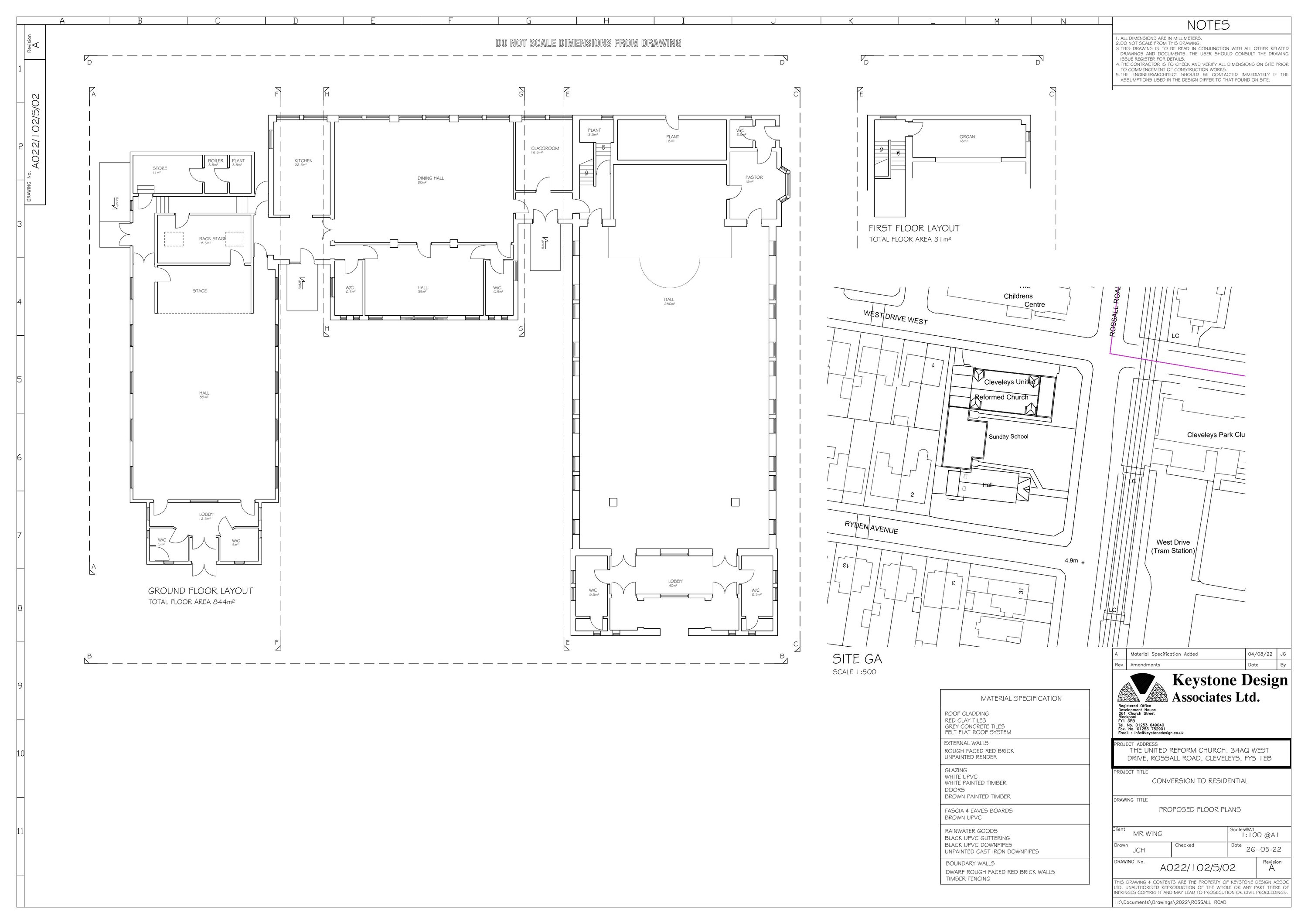
Erection of local convenience food store (Class E(a)) following demolition of existing buildings. Access from West Drive West, car parking and landscaping.

Documents

Consultee Response
Archived · Original link
Application Documentation
Archived · Original link
Application Documentation
Archived · Original link
Bng metric
Application Documentation
Not yet archived · Original link
Application Documentation
Archived · Original link
Application Documentation
Archived · Original link
Application Documentation
Archived · Original link
Application Documentation
Archived · Original link
Application Documentation
Archived · Original link
Consultee Response
Archived · Original link
Plans
Archived · Original link
Consultee Response
Archived · Original link
Application Documentation
Archived · Original link
Application Documentation
Archived · Original link
Application Documentation
Archived · Original link
Application Documentation
Archived · Original link
Application Documentation
Archived · Original link
Application Documentation
Archived · Original link
Application Documentation
Archived · Original link
Application Documentation
Archived · Original link
Application Documentation
Archived · Original link
Superseded Plans
Archived · Original link
Plans
Archived · Original link
Application Documentation
Archived · Original link
Plans
Archived · Original link
Site Location Plan
Archived · Original link
Application Documentation
Archived · Original link
Application Documentation
Archived · Original link
Application Documentation
Archived · Original link
Consultee Response
Archived · Original link

Have your say

Your comment matters. Councils must consider every representation that raises material planning considerations.

Write a comment