← Wyre Council

Status

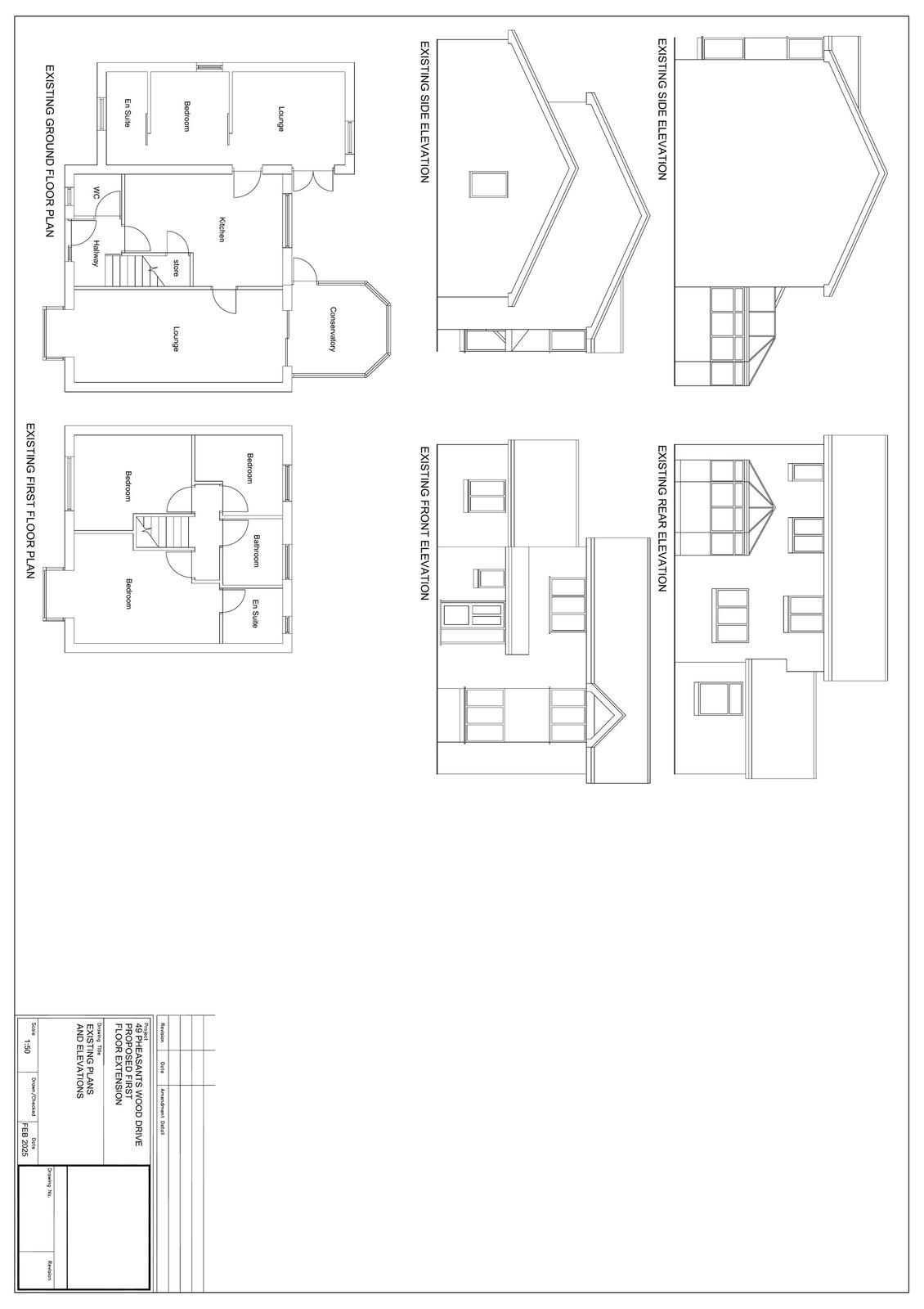
Pending Consideration House extension
Received
Last month
New homes
0

Full proposal

First floor side extension over existing single storey extension and erection of 1.8m high fence to north boundary

Documents

Application Documentation
Archived · Original link
Flood risk assessment
Flood Risk Assessment
Not yet archived · Original link
Site Location Plan
Archived · Original link

Have your say

Your comment matters. Councils must consider every representation that raises material planning considerations.

Write a comment