← Wyre Forest District Council

Status

Pending consideration House extension
Received
16 Dec 2025
New homes
0

Full proposal

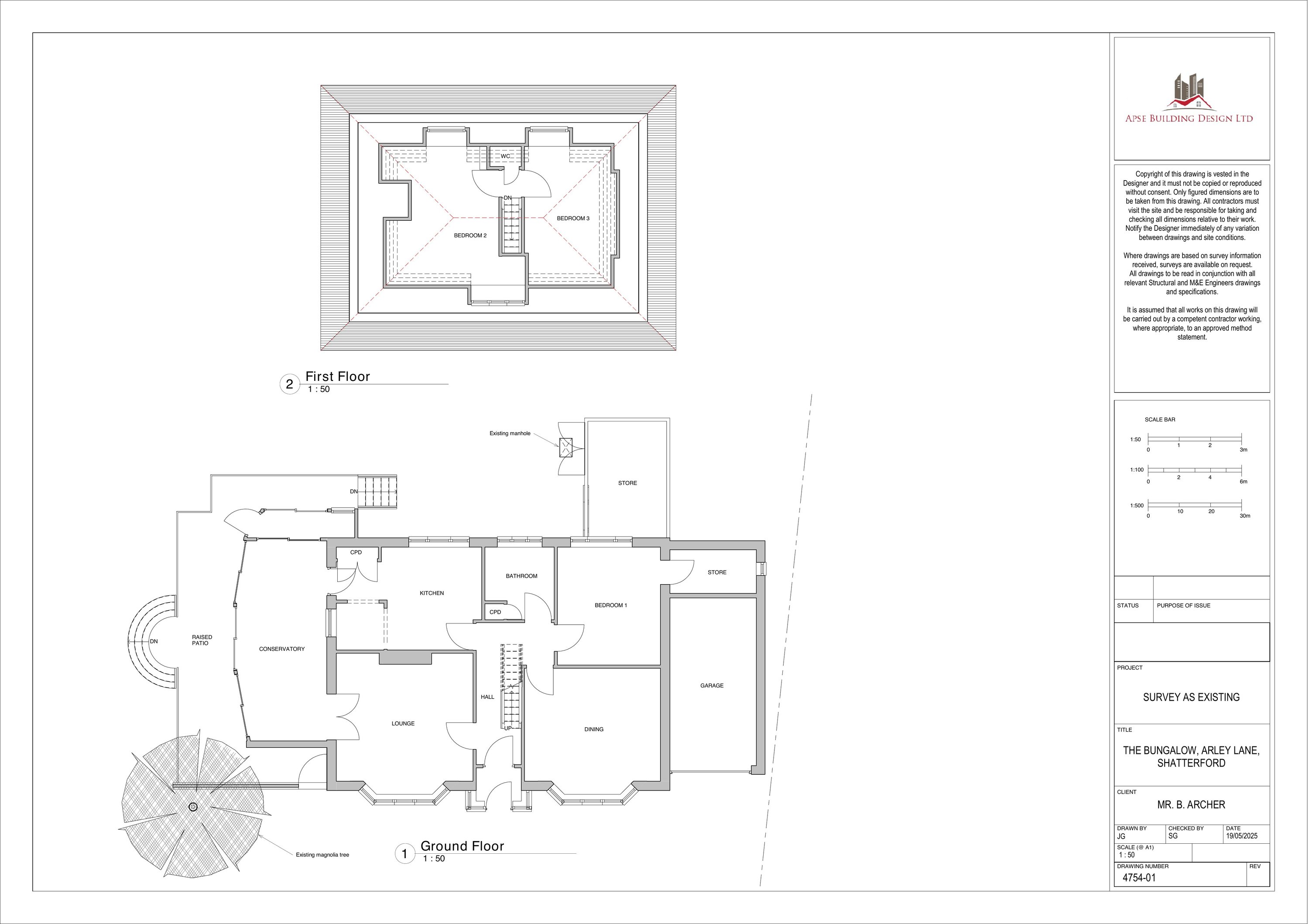
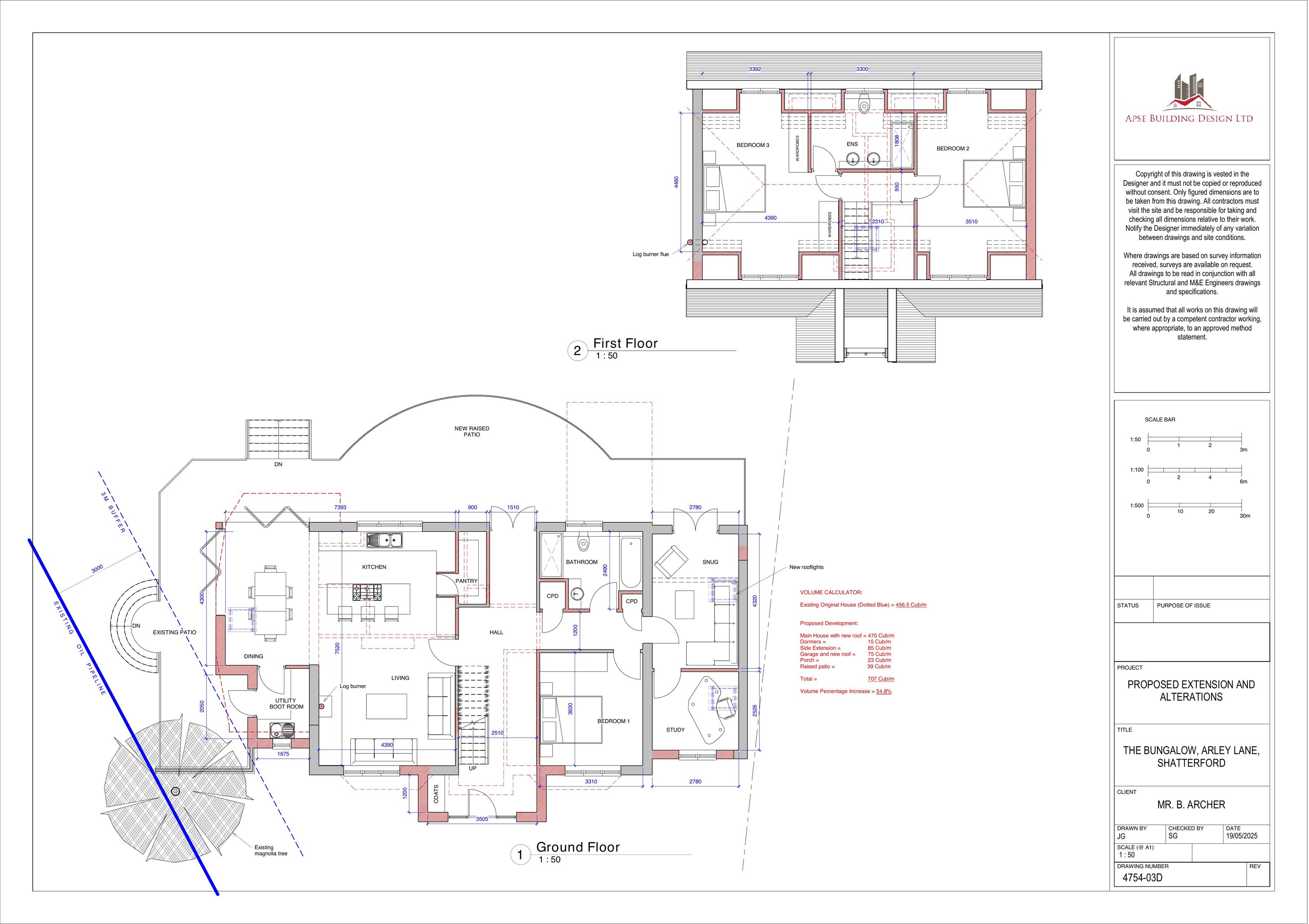
Front and side extensions, garage conversion with pitched roof over, roof alterations including dormer windows, rendering of all elevations, provision of raised patio and associated works

Documents

Application Form
Archived · Original link
Plans
Archived · Original link

Have your say

Your comment matters. Councils must consider every representation that raises material planning considerations.

Write a comment