← Wyre Forest District Council

Status

Pending consideration Change of use
Received
29 Jan 2026
New homes
12

Full proposal

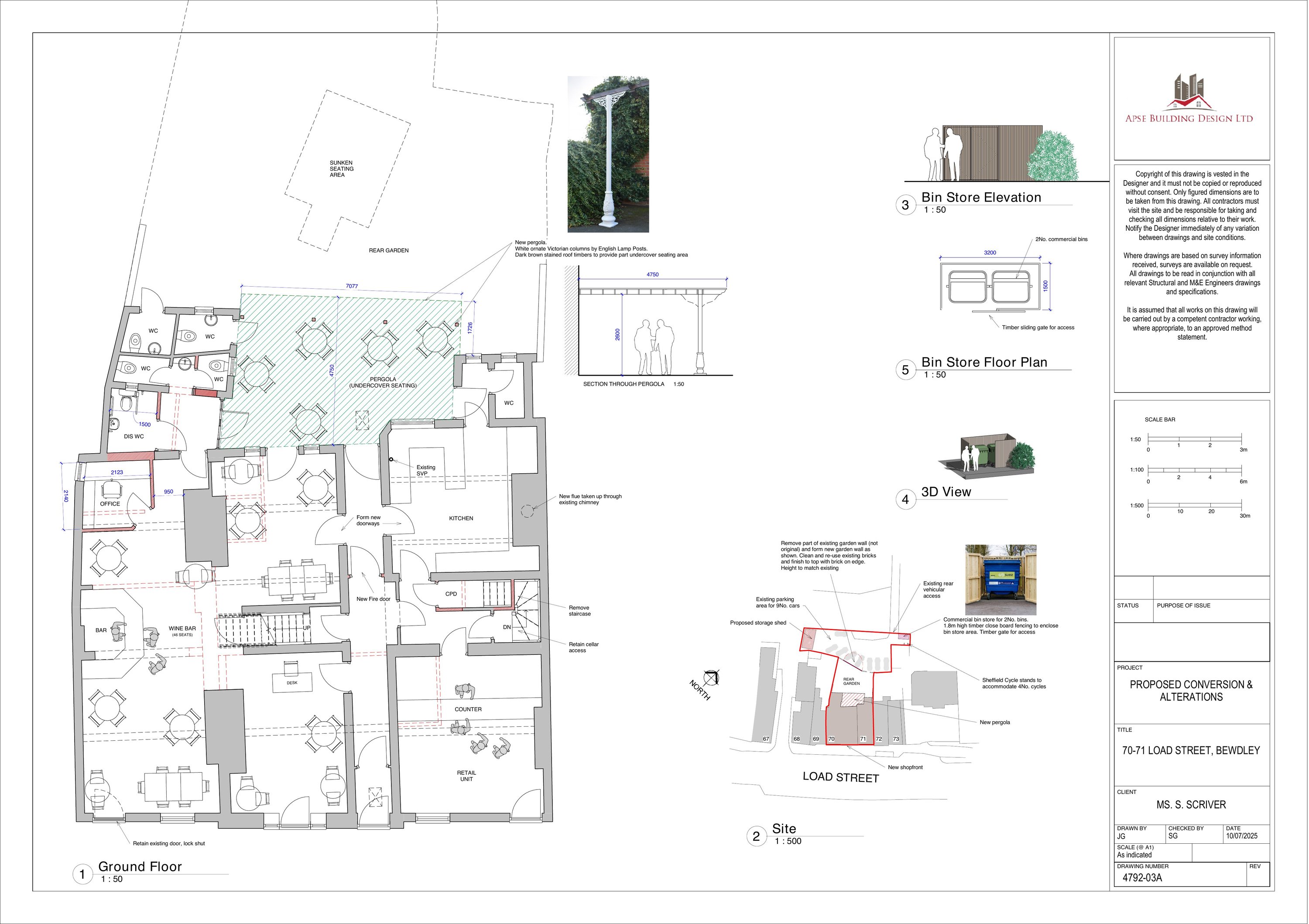
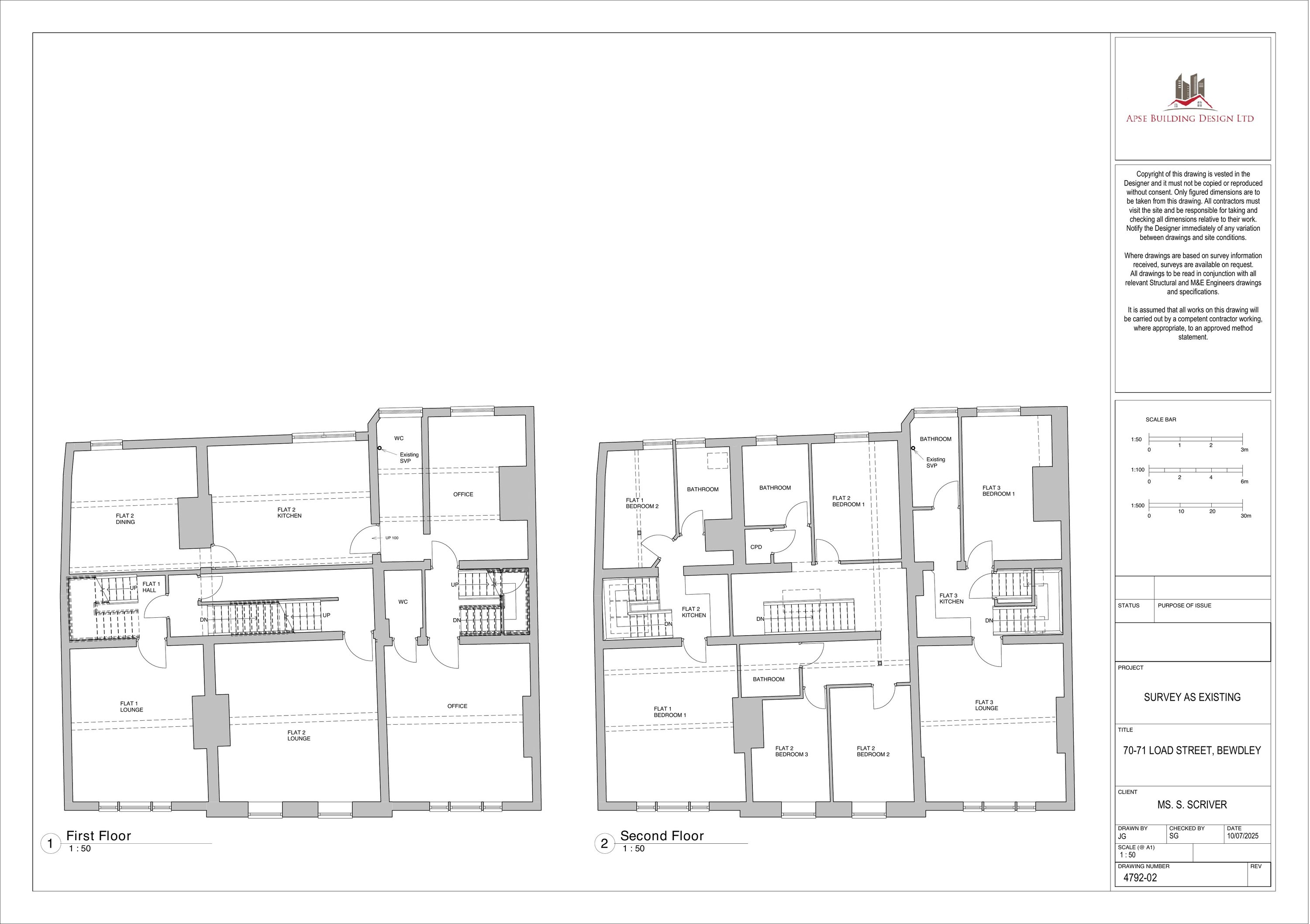
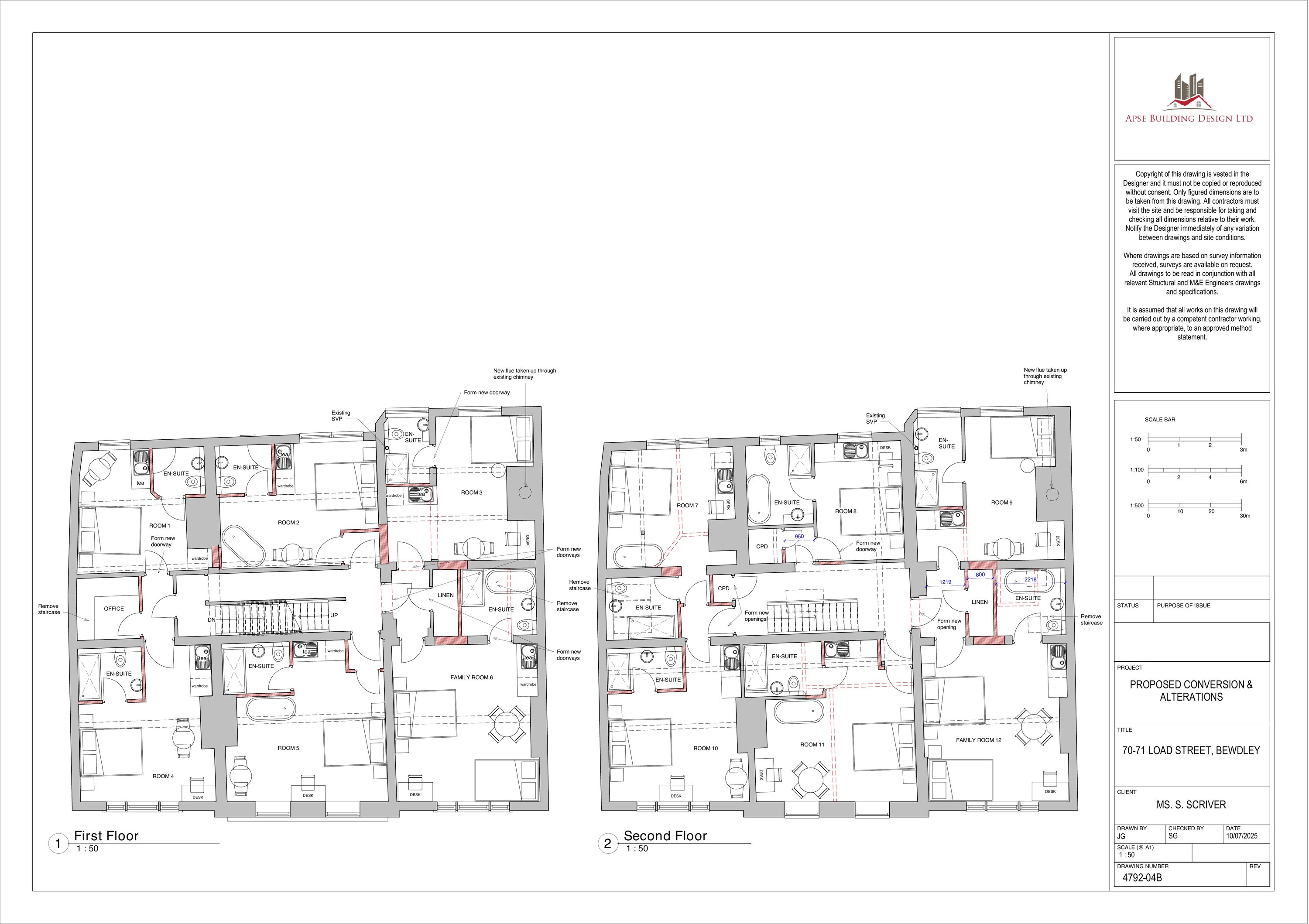
Change of use of the premises from retail (Use Class E) to the ground floor and Residential (Use Class C3) to the first floor, to Wine bar on Ground Floor and 12No. Letting rooms (Use Class C1) to the first and second floors. Proposed rear pergola, replacement windows to rear elevation. Proposed storage building and bin / cycle provisions to rear car park area. Proposed new shop front with retractable canopy

Documents

Plans
Archived · Original link
Plans
Archived · Original link
Plans
Archived · Original link
Plans
Archived · Original link
Plans
Archived · Original link
Plans
Archived · Original link
Plans
Archived · Original link
Plans
Archived · Original link
Plans
Archived · Original link
Application Form
Archived · Original link
Supporting Document
Archived · Original link
Plans
Archived · Original link

Have your say

Your comment matters. Councils must consider every representation that raises material planning considerations.

Write a comment