← Wyre Forest District Council

Status

Pending consideration New housing
Received
Last month
New homes
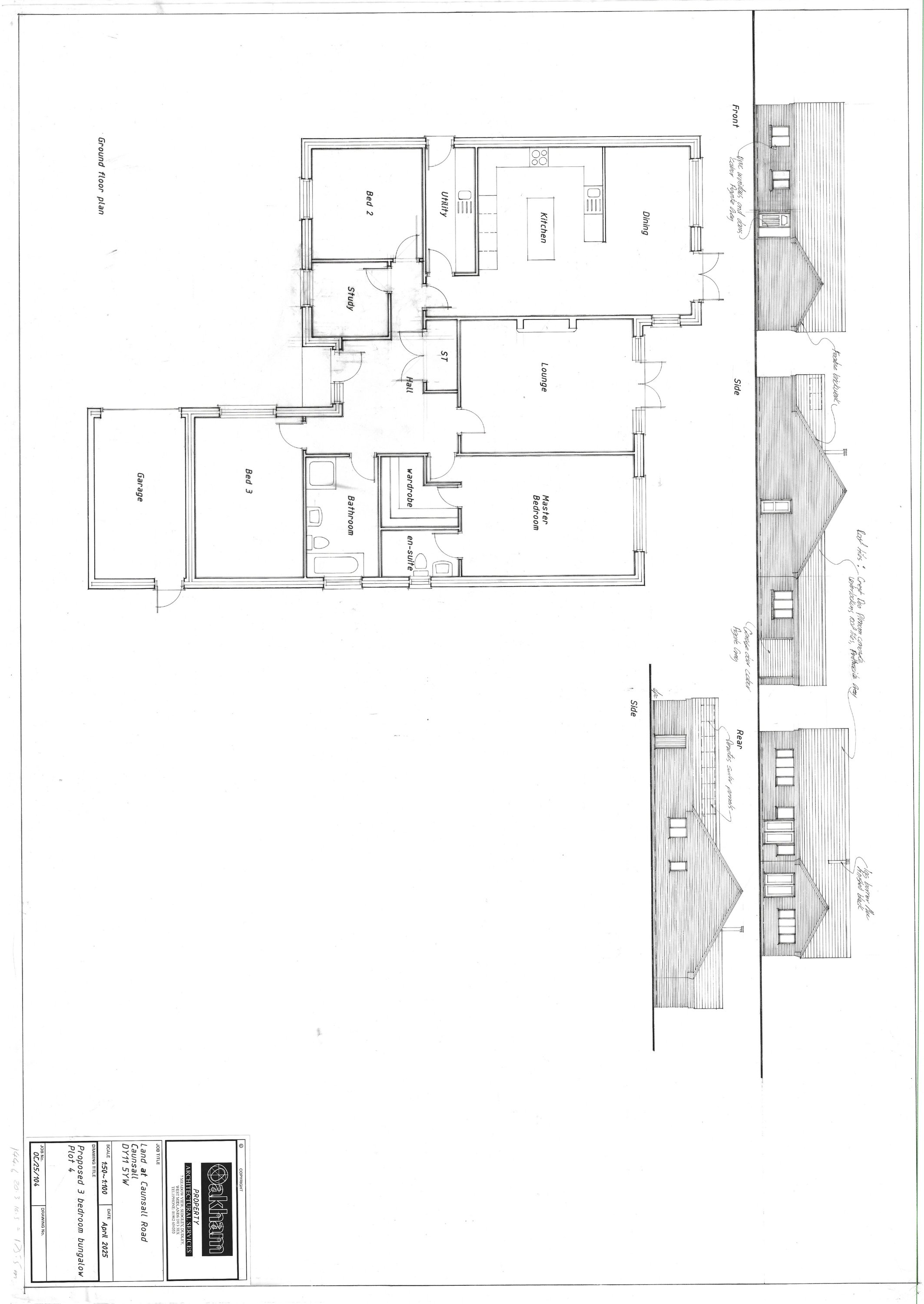
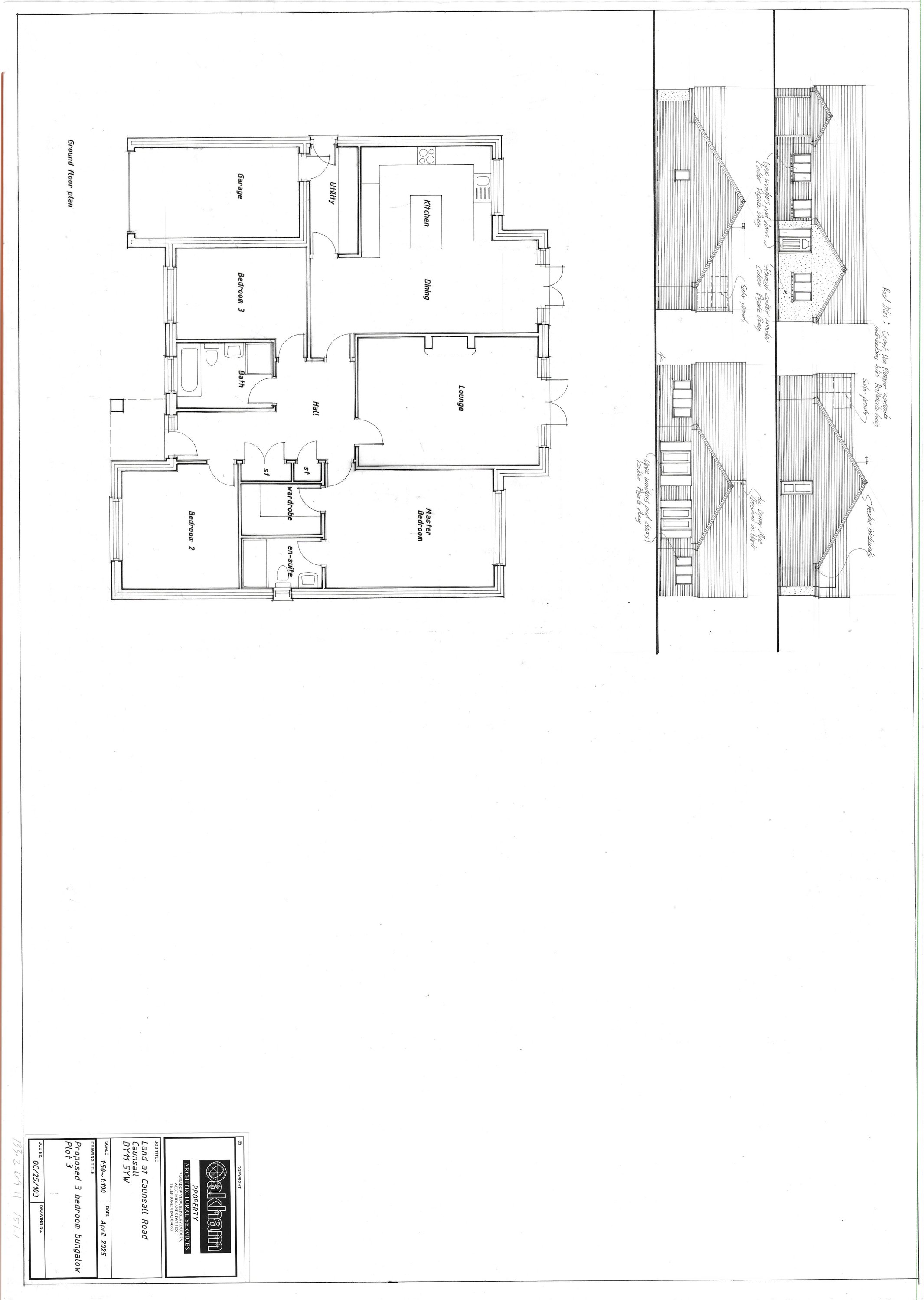
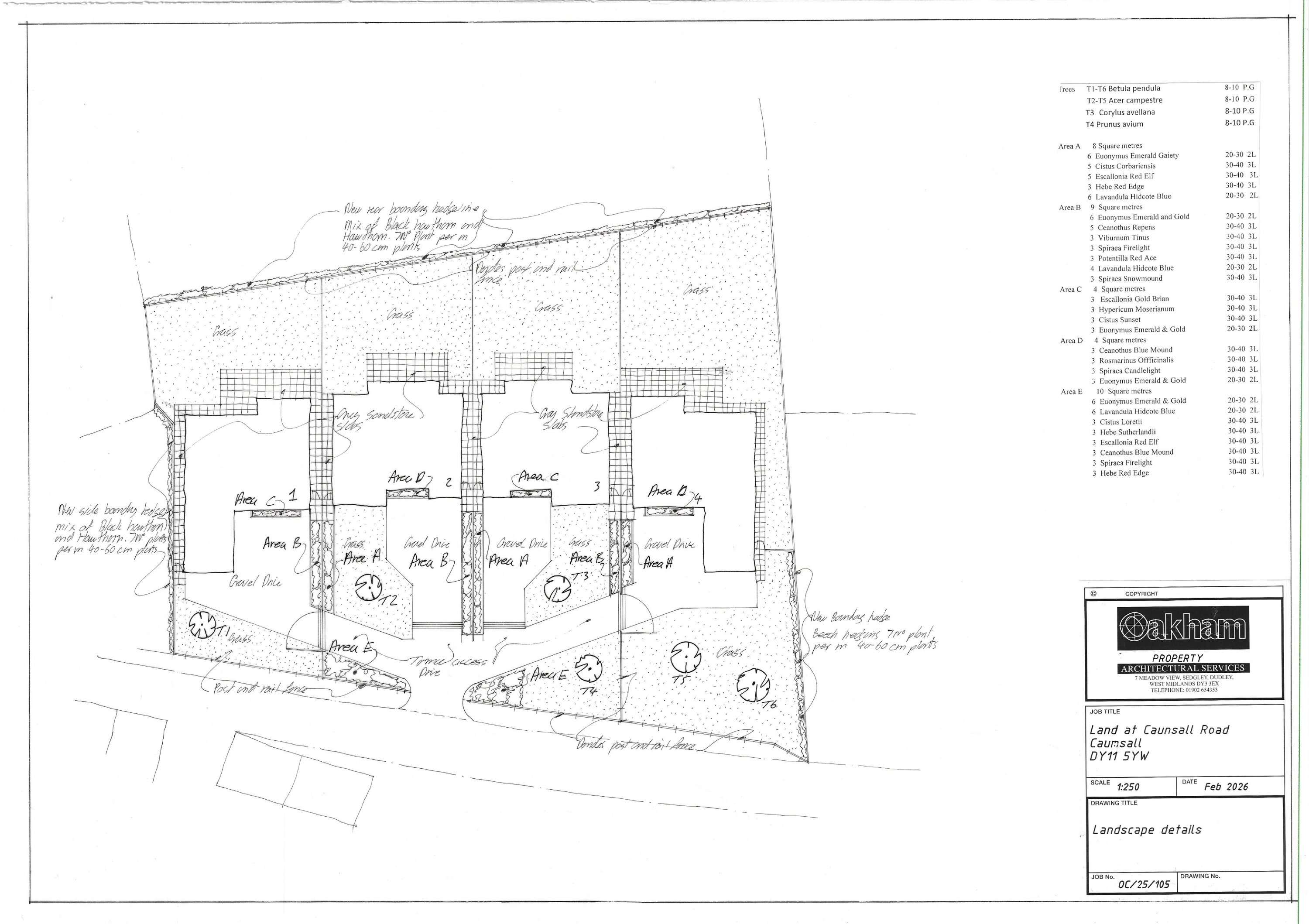
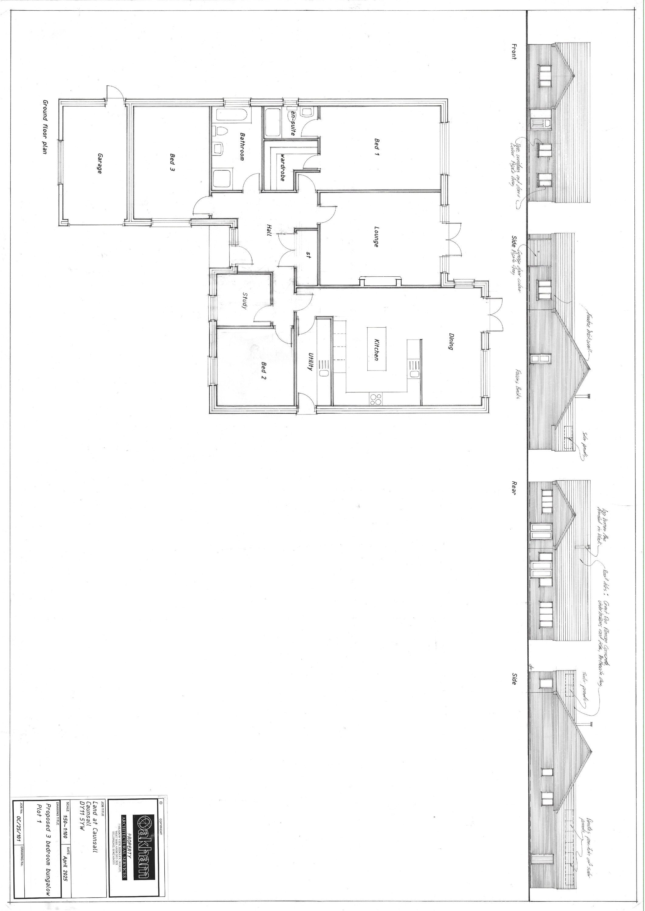
4

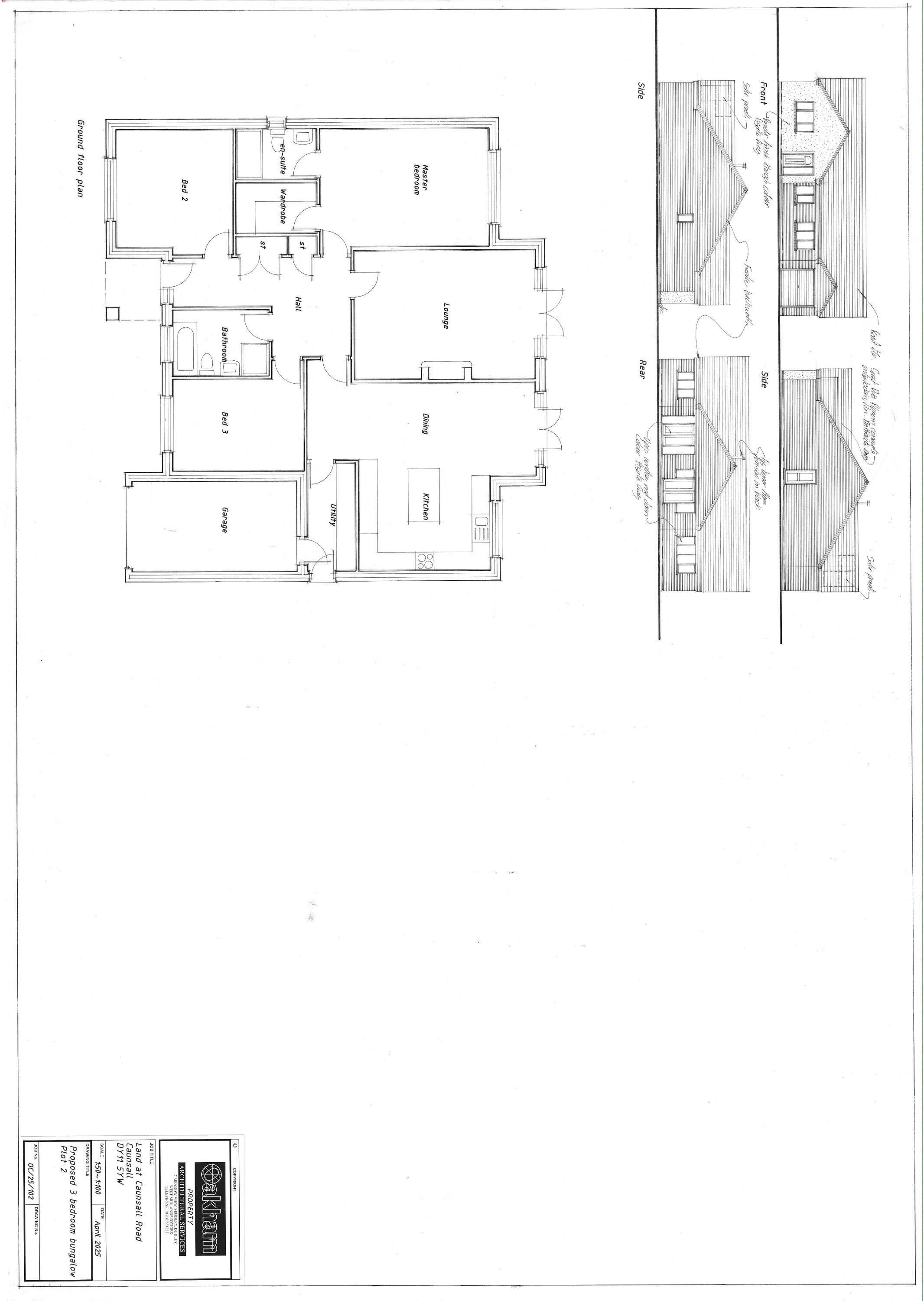
Full proposal

Reserved Matters application (with appearance, landscaping, layout and scale to be considered) for the erection of 4 dwellings and garages and formation of vehicular access and associated operational development, pursuant to consent 22/0899/OUT

Documents

Application Form
Archived · Original link
Plans
Archived · Original link
CAUNSALL MATERIALS
Supporting Document
Not yet archived · Original link
Plans
Archived · Original link

Have your say

Your comment matters. Councils must consider every representation that raises material planning considerations.

Write a comment