← Wyre Forest District Council

Status

Pending consideration New housing
Received
Last month
New homes
1

Full proposal

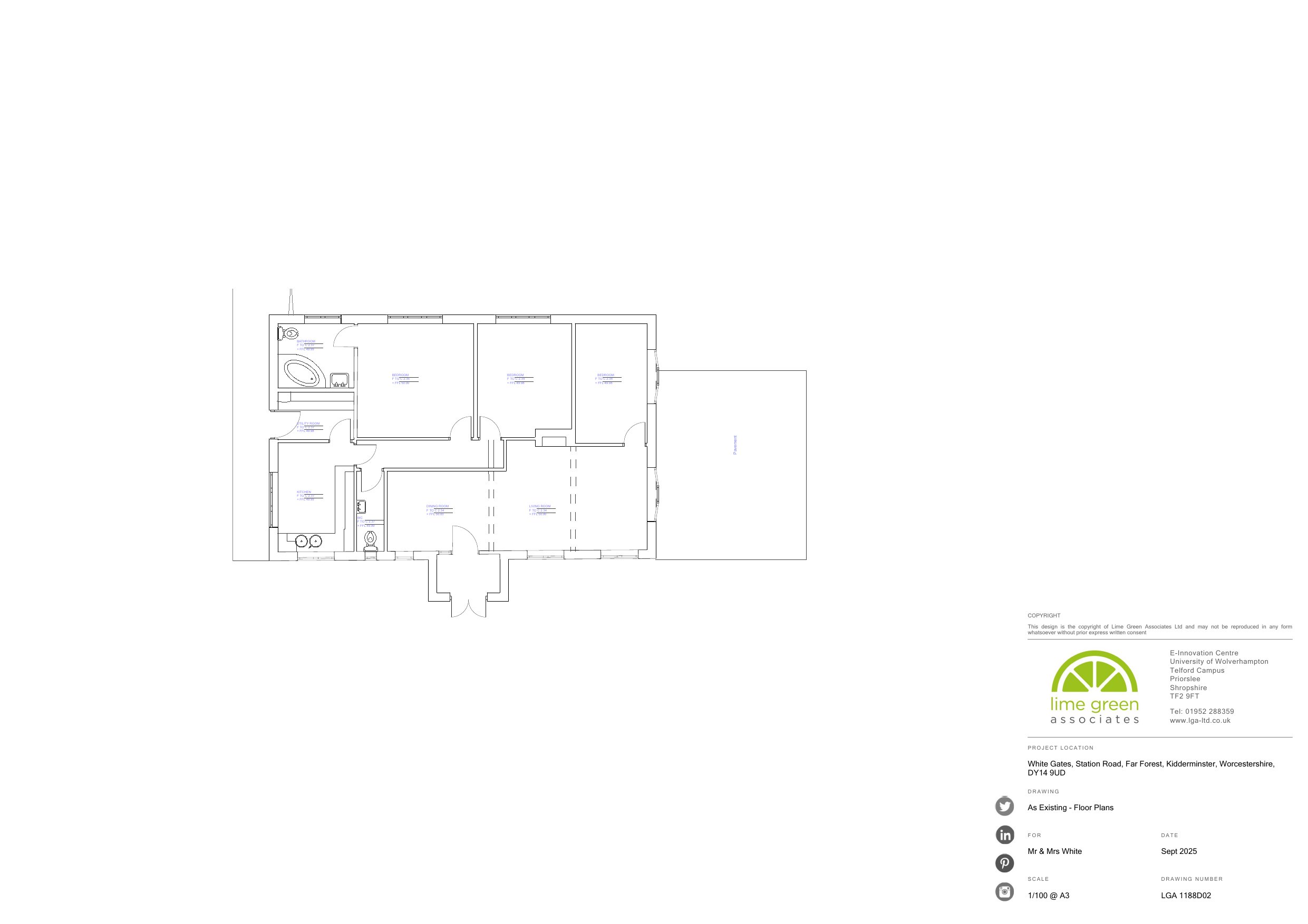
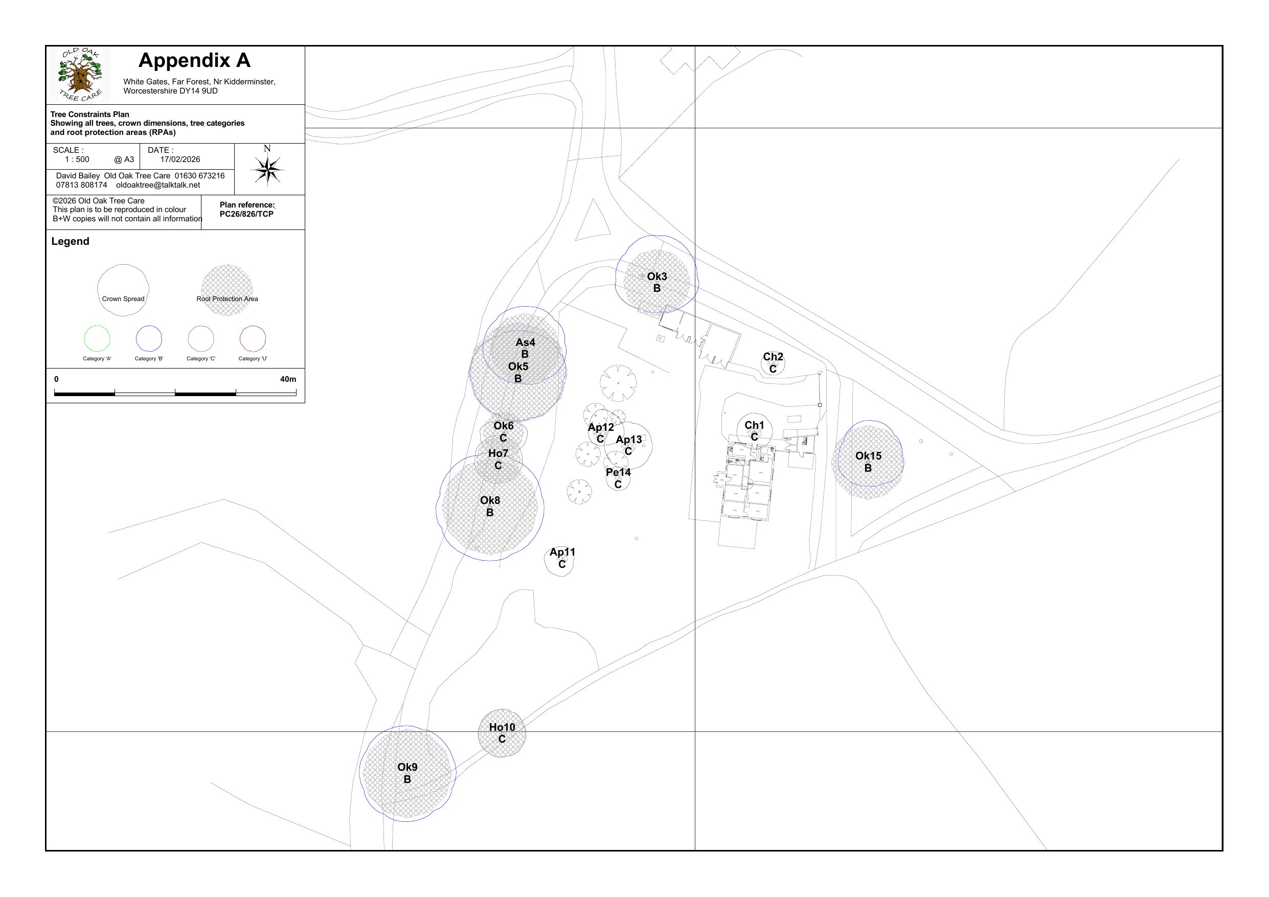
Demolition of dwelling and replacement with 1No. self-build dwelling and associated works

Documents

Application Form
Archived · Original link
Supporting Document
Archived · Original link
Supporting Document
Archived · Original link
Supporting Document
Archived · Original link
Plans
Archived · Original link
Supporting Document
Archived · Original link
Supporting Document
Archived · Original link
Supporting Document
Archived · Original link
Plans
Archived · Original link
Supporting Document
Archived · Original link
Plans
Archived · Original link
Plans
Archived · Original link
Supporting Document
Archived · Original link

Have your say

Your comment matters. Councils must consider every representation that raises material planning considerations.

Write a comment