← City of York Council

Status

Awaiting decision Change of use
Received
Not recorded
New homes
1

Full proposal

Conversion of existing barn to create 1no. dwelling with associated external alterations

Documents

Application Form
Application Form
Not yet archived · Original link
DESIGN STATEMENT
Design & Access Statement
Not yet archived · Original link
DEVELOPMENT MANAGEMENT
External Correspondence
Not yet archived · Original link
DRAINAGE DESIGN
Drainage Documentation
Not yet archived · Original link
EAST ELEVATION REVIEW SHEET 1
Drawing
Not yet archived · Original link
EAST ELEVATION REVIEW SHEET 2
Drawing
Not yet archived · Original link
EXISTING BLOCK PLAN & SITE LOCATION
Superseded Drawing
Not yet archived · Original link
EXISTING BLOCK PLAN & SITE LOCATION
Revised Drawing
Not yet archived · Original link
EXISTING FLOOR PLANS & ELEVATIONS
Revised Drawing
Not yet archived · Original link
EXISTING PLANS & ELEVATIONS
Superseded Drawing
Not yet archived · Original link
Drawing
Archived · Original link
FLOOD RISK ENGINEER
Internal Responses
Not yet archived · Original link
FLOOD RISK MANAGEMENT TEAM
Internal Responses
Not yet archived · Original link
FOUL DRAINAGE ASSESSMENT
Drainage Documentation
Not yet archived · Original link
FOUL DRAINAGE ASSESSMENT FORM
Drainage Documentation
Not yet archived · Original link
HIGHWAY STATEMENT
Report
Not yet archived · Original link
INDICATIVE TREE LOCATION PLAN
Revised Drawing
Not yet archived · Original link
INDICATIVE TREE LOCATION PLAN
Superseded Drawing
Not yet archived · Original link
LEAD LOCAL FLOOD AUTHORITY
Internal Responses
Not yet archived · Original link
MR CHRIS SHELL
Support Comment
Not yet archived · Original link
MR CHRIS SHELL
Support Comment
Not yet archived · Original link
MRS THERESA OLLERENSHAW
Support Comment
Not yet archived · Original link
MRS THERESA OLLERENSHAW
General Comment
Not yet archived · Original link
OUSE & DERWENT INTERNAL DRAINAGE BOARD
Consultee Reponses
Not yet archived · Original link
PROPOSED BLOCK PLAN & SITE LOCATION
Drawing
Not yet archived · Original link
PROPOSED ELEVATIONS
Revised Drawing
Not yet archived · Original link
PROPOSED ELEVATIONS
Superseded Drawing
Not yet archived · Original link
Superseded Drawing
Archived · Original link
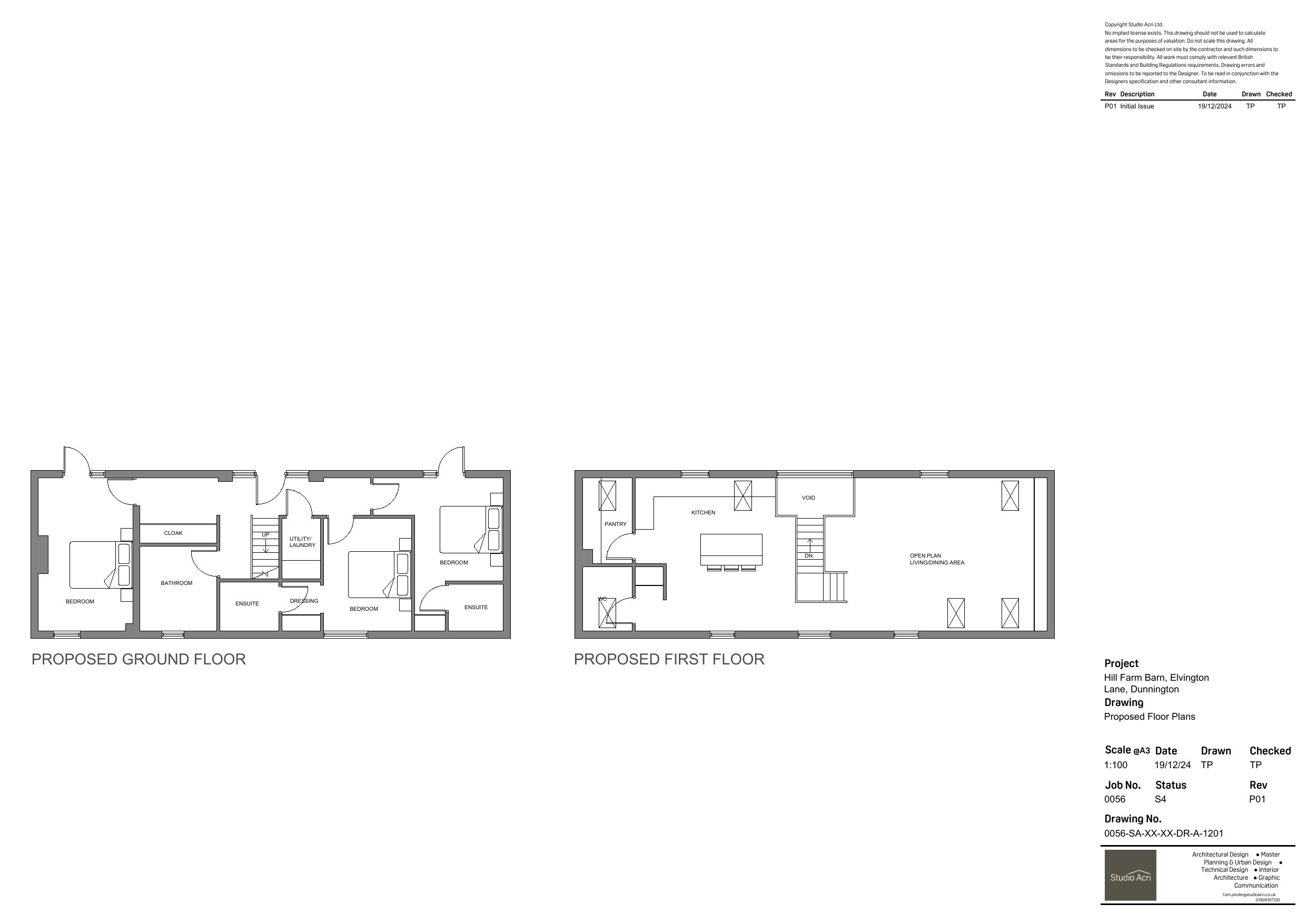
PROPOSED GROUND & FIRST FLOOR PLANS
Revised Drawing
Not yet archived · Original link
PROPOSED HARD & SOFT LANDSCAPING PLAN
Revised Drawing
Not yet archived · Original link
PROPOSED HARD & SOFT LANDSCAPING PLAN
Superseded Drawing
Not yet archived · Original link
PUBLIC PROTECTION
Internal Responses
Not yet archived · Original link
RESPONSE TO FLOOD RISK MANAGEMENT TEAM
External Correspondence
Not yet archived · Original link
TITLE PLAN
Drawing
Not yet archived · Original link
WASTE SERVICES
Internal Responses
Not yet archived · Original link
WASTE SERVICES
Internal Responses
Not yet archived · Original link
WOOD SHERWOOD SOLICITORS 14.08.24
External Correspondence
Not yet archived · Original link
YORKSHIRE WATER
Consultee Reponses
Not yet archived · Original link

Have your say

Your comment matters. Councils must consider every representation that raises material planning considerations.

Write a comment