← City of York Council

Status

Awaiting decision New housing
Received
Not recorded
New homes
1

Full proposal

Subdivision of existing dwelling to create 2no. dwellings, hip to gable roof extension and rear dormer, with associated access and parking

Documents

AINSTY (2008) INTERNAL DRAINAGE BOARD
Consultee Reponses
Not yet archived · Original link
Application Form
Application Form
Not yet archived · Original link
BIODIVERSITY EXEMPTION
Report
Not yet archived · Original link
DESIGN AND ACCESS STATEMENT
Design & Access Statement
Not yet archived · Original link
DRAINAGE CALCULATION
Drainage Documentation
Not yet archived · Original link
DRAINAGE STRATEGY
Drainage Documentation
Not yet archived · Original link
EXISTING FIRST FLOOR PLAN
Superseded Drawing
Not yet archived · Original link
EXISTING FIRST FLOOR PLAN
Revised Drawing
Not yet archived · Original link
EXISTING FRONT AND SIDE ELEVATION
Superseded Drawing
Not yet archived · Original link
EXISTING FRONT AND SIDE ELEVATION
Revised Drawing
Not yet archived · Original link
EXISTING GROUND FLOOR PLAN
Revised Drawing
Not yet archived · Original link
EXISTING GROUND FLOOR PLAN
Superseded Drawing
Not yet archived · Original link
EXISTING REAR AND SIDE ELEVATION
Superseded Drawing
Not yet archived · Original link
EXISTING REAR AND SIDE ELEVATION
Revised Drawing
Not yet archived · Original link
Revised Drawing
Archived · Original link
Superseded Drawing
Archived · Original link
Superseded Drawing
Archived · Original link
Superseded Drawing
Archived · Original link
FLOOD RISK ASSESSMENT
Flood Risk Assessment
Not yet archived · Original link
FLOOD RISK ENGINEER
Internal Responses
Not yet archived · Original link
LANDSCAPE ARCHITECT
Internal Responses
Not yet archived · Original link
LANDSCAPE ARCHITECT
Internal Responses
Not yet archived · Original link
LANDSCAPE ARCHITECT
Internal Responses
Not yet archived · Original link
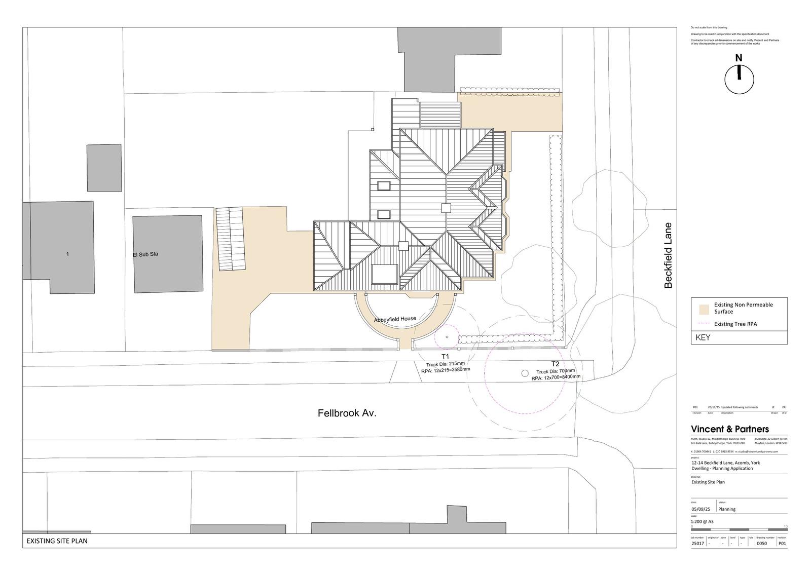
LOCATION PLAN
Location Plan
Not yet archived · Original link
LOCATION PLAN
Revised Drawing
Not yet archived · Original link
MR JON SMALLEY
Objection Comment
Not yet archived · Original link
MRS JANE ALBON
Objection Comment
Not yet archived · Original link
NATIONAL GRID
Consultee Reponses
Not yet archived · Original link
PAUL REEVE INCLUDING EXTENSION OF TIME AGREEMENT
External Correspondence
Not yet archived · Original link
PERCOLATION REPORT
Drainage Documentation
Not yet archived · Original link
PROPOSED CYCLE STORAGE
Revised Drawing
Not yet archived · Original link
PROPOSED CYCLE STORAGE
Superseded Drawing
Not yet archived · Original link
PROPOSED CYCLE STORAGE
Superseded Drawing
Not yet archived · Original link
PROPOSED FIRST FLOOR PLAN
Revised Drawing
Not yet archived · Original link
PROPOSED FIRST FLOOR PLAN
Superseded Drawing
Not yet archived · Original link
PROPOSED FRONT AND SIDE ELEVATION
Revised Drawing
Not yet archived · Original link
PROPOSED FRONT AND SIDE ELEVATION
Superseded Drawing
Not yet archived · Original link
PROPOSED FRONT AND SIDE ELEVATION - BUNGALOW
Superseded Drawing
Not yet archived · Original link
PROPOSED GROUND FLOOR PLAN
Superseded Drawing
Not yet archived · Original link
PROPOSED GROUND FLOOR PLAN
Revised Drawing
Not yet archived · Original link
PROPOSED GROUND FLOOR PLAN - BUNGALOW
Superseded Drawing
Not yet archived · Original link
PROPOSED REAR AND SIDE ELEVATION
Revised Drawing
Not yet archived · Original link
PROPOSED REAR AND SIDE ELEVATION
Superseded Drawing
Not yet archived · Original link
PROPOSED REAR AND SIDE ELEVATION - BUNGALOW
Superseded Drawing
Not yet archived · Original link
PROPOSED SECOND FLOOR PLAN
Revised Drawing
Not yet archived · Original link
Superseded Drawing
Archived · Original link
Superseded Drawing
Archived · Original link
Revised Drawing
Archived · Original link
Superseded Drawing
Archived · Original link
PROPOSED STREET SCENE ELEVATION
Superseded Drawing
Not yet archived · Original link
PUBLIC PROTECTION
Internal Responses
Not yet archived · Original link
SCREENING ASSESSMENT
Land Contamination Assessment
Not yet archived · Original link
SURFACE WATER DRAINAGE MAINTENANCE AND MANAGEMENT SCHEDULE
Drainage Documentation
Not yet archived · Original link
YORKSHIRE WATER
Internal Responses
Not yet archived · Original link

Have your say

Your comment matters. Councils must consider every representation that raises material planning considerations.

Write a comment