← City of York Council

Status

Awaiting decision Change of use
Received
Not recorded
New homes
0

Full proposal

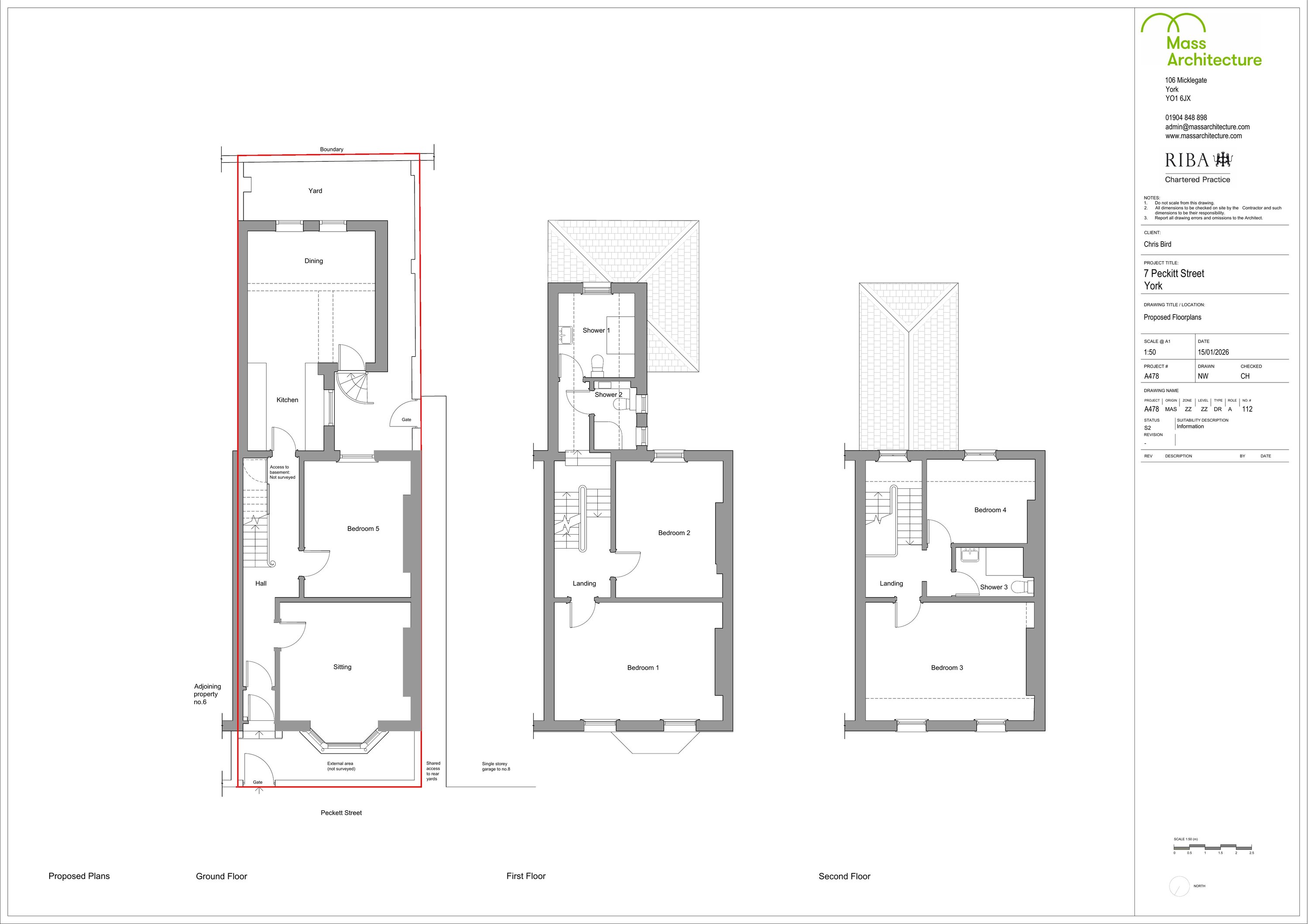
Change of use from dwelling house (use Class C3) to House in Multiple Occupation (use Class C4) for up to 5no. occupants

Documents

Application Form
Application Form
Not yet archived · Original link
BLOCK PLAN
Drawing
Not yet archived · Original link
EXISTING FLOOR PLANS
Drawing
Not yet archived · Original link
FLOOD RISK ASSESSMENT
Flood Risk Assessment
Not yet archived · Original link
LOCATION PLAN
Drawing
Not yet archived · Original link
LOCATION PLAN
Location Plan
Not yet archived · Original link
PLANNING AND HERITAGE STATEMENT
Design & Access Statement
Not yet archived · Original link
Drawing
Archived · Original link

Have your say

Your comment matters. Councils must consider every representation that raises material planning considerations.

Write a comment