← City of York Council

Status

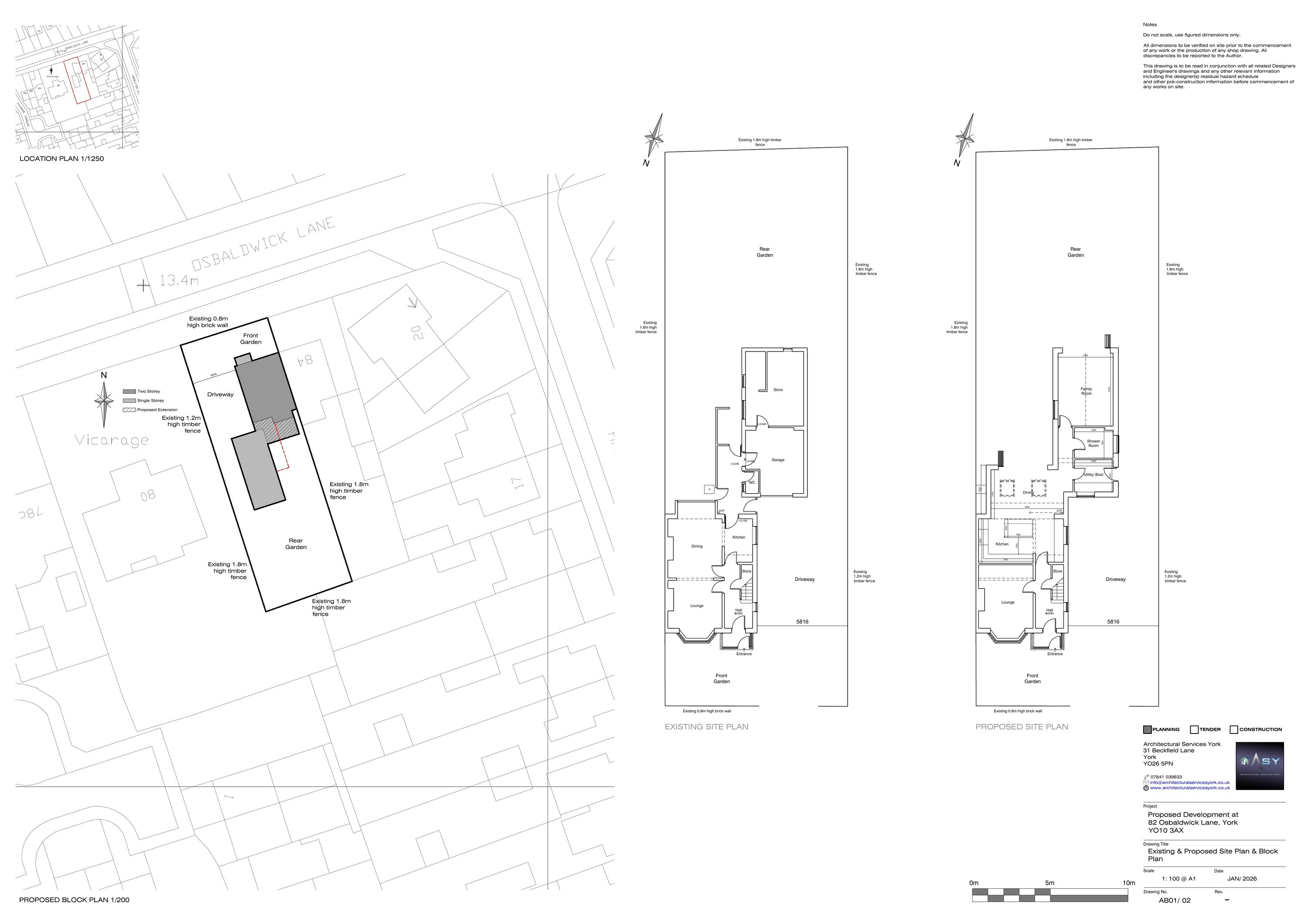
Awaiting decision House extension
Received
Not recorded
New homes
0

Full proposal

Single storey rear extension and conversion of garage to habitable space

Have your say

Your comment matters. Councils must consider every representation that raises material planning considerations.

Write a comment