← City of York Council

Status

Awaiting decision House extension
Received
Not recorded
New homes
0

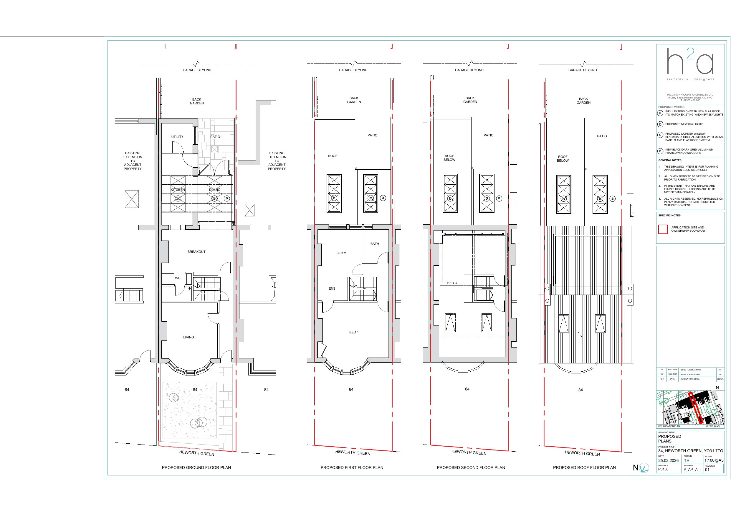
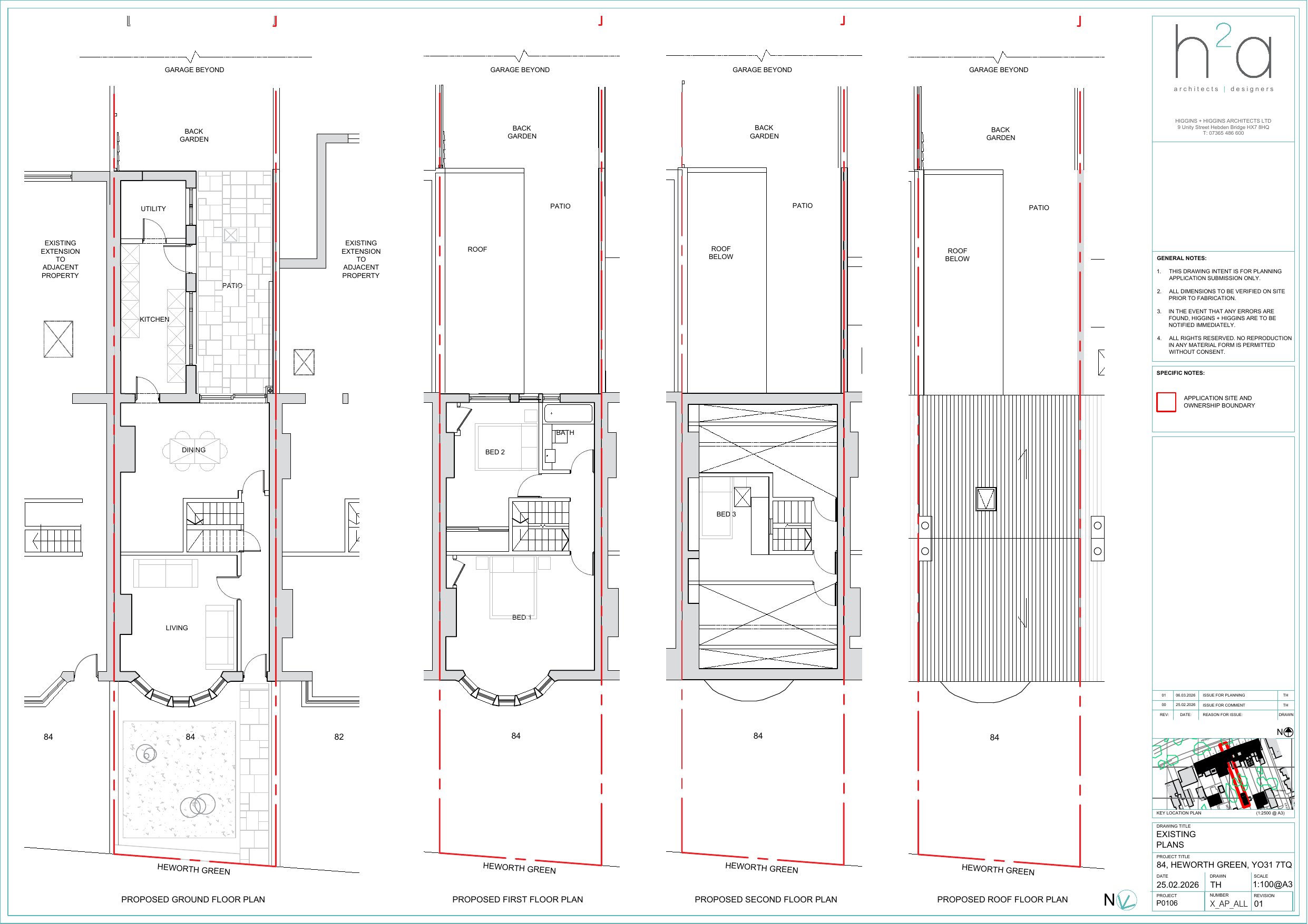
Full proposal

Single storey extension to rear, skylights to the front roofscape, dormer to rear, alterations to rear garage

Documents

Application Form
Archived · Original link
Design & Access Statement
Archived · Original link
Drawing
Archived · Original link
Drawing
Archived · Original link
Drawing
Archived · Original link
Drawing
Archived · Original link
Heritage Statement
Archived · Original link
Location Plan
Archived · Original link
Location Plan
Archived · Original link
Drawing
Archived · Original link
Drawing
Archived · Original link
Drawing
Archived · Original link
Drawing
Archived · Original link

Have your say

Your comment matters. Councils must consider every representation that raises material planning considerations.

Write a comment