← Yorkshire Dales National Park Authority

Status

Decision Made - Complete House extension
Received
08 Apr 2025
New homes
0

Summary

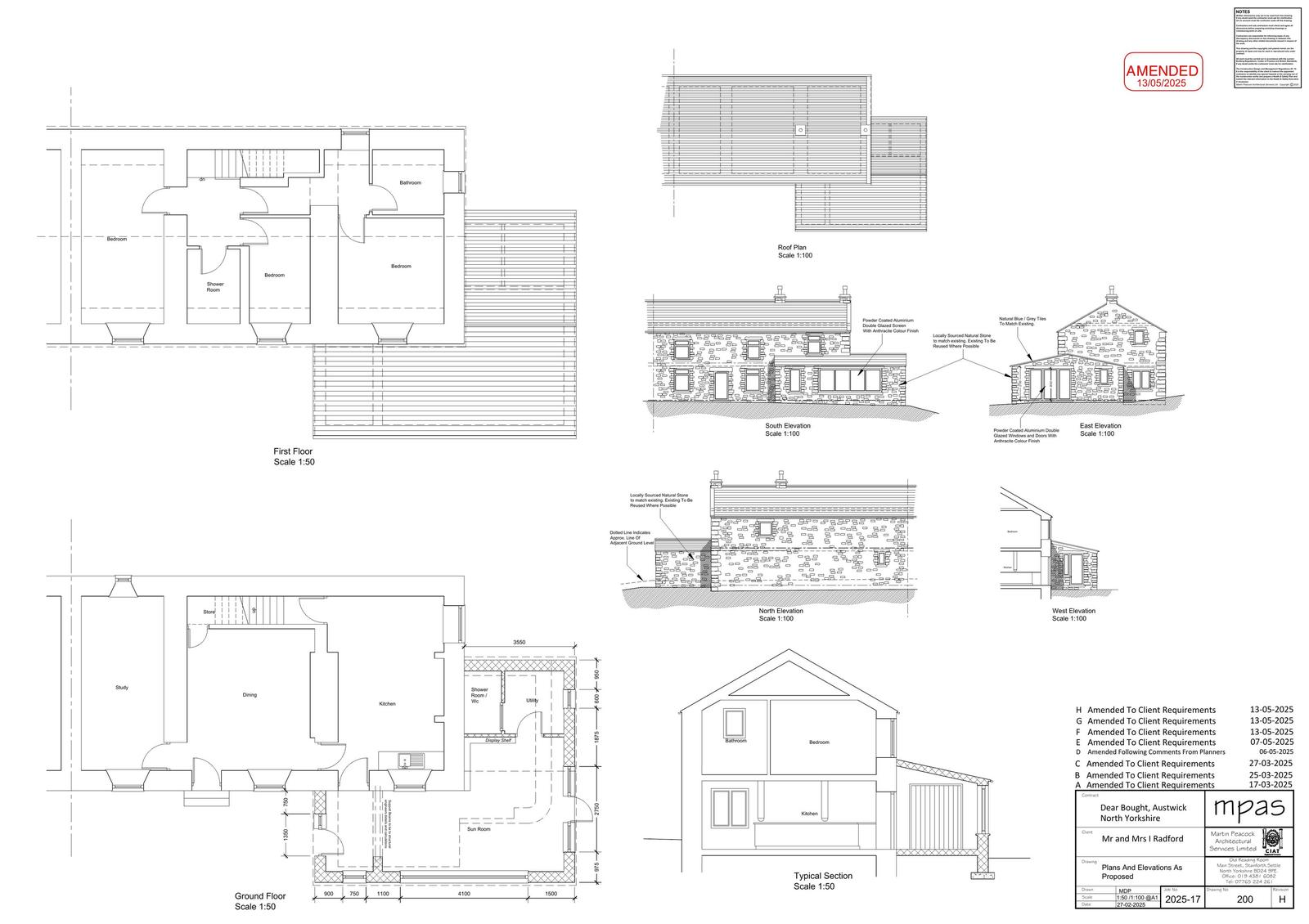
Replace utility and sunroom with extension providing utility, WC/shower room and sunroom.

Full proposal

Householder planning permission for removal of existing utility and sunroom to east and south elevations and erection of replacement extension to provide utility, WC/shower room and sunroom

Documents

Bat Survey
Archived · Original link
Biodiversity Net Gain
Archived · Original link
Decision Notice
Archived · Original link
Planning Officers Report
Archived · Original link
Plans
Archived · Original link
Amended Plans
Archived · Original link
Tree Survey
Archived · Original link

Have your say

Your comment matters. Councils must consider every representation that raises material planning considerations.

Write a comment