← Yorkshire Dales National Park Authority

Status

Decision Made - Complete House extension
Received
21 May 2025
New homes
0

Summary

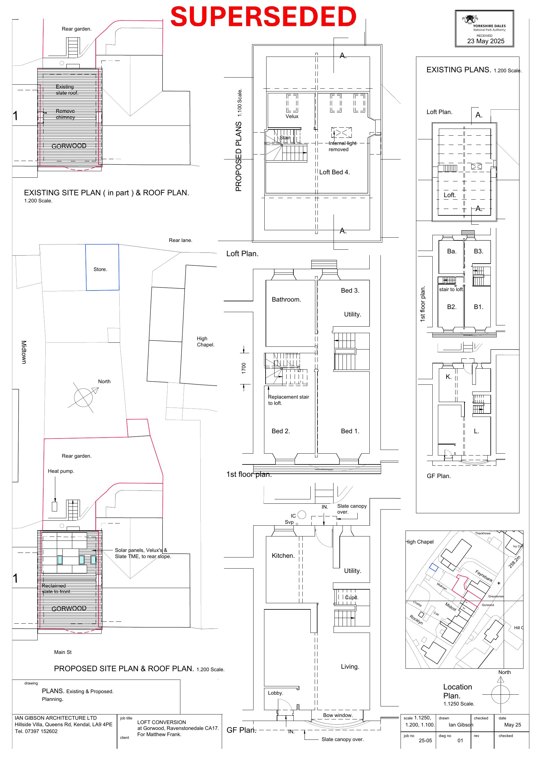
Loft conversion with roof raising, chimney removal, replacement windows/doors, solar panels and ASHP siting.

Full proposal

Householder planning permission for loft conversion and alterations including raising the roof, removal of 1 no. chimney, replacement of windows and doors, installation of solar panels and roof lights and siting of ASHP to rear garden

Documents

Amended Plans
Archived · Original link
Bat Survey
Archived · Original link
Design & access statement
Archived · Original link
Decision Notice
Archived · Original link
Planning Officers Report
Archived · Original link
Plans
Archived · Original link
Structural Survey
Archived · Original link
Supporting documents
Archived · Original link
Supporting documents
Archived · Original link

Have your say

Your comment matters. Councils must consider every representation that raises material planning considerations.

Write a comment