← Back to Bradford Metropolitan District Council
Application
25/00252/PNH
Bradford Metropolitan District Council · IDOX
Status
Unknown
House extension
Received
n/a
New dwellings
0
What you can do
Take Action
Make your voice heard. Authorities need to hear from people who support new homes.
Summary
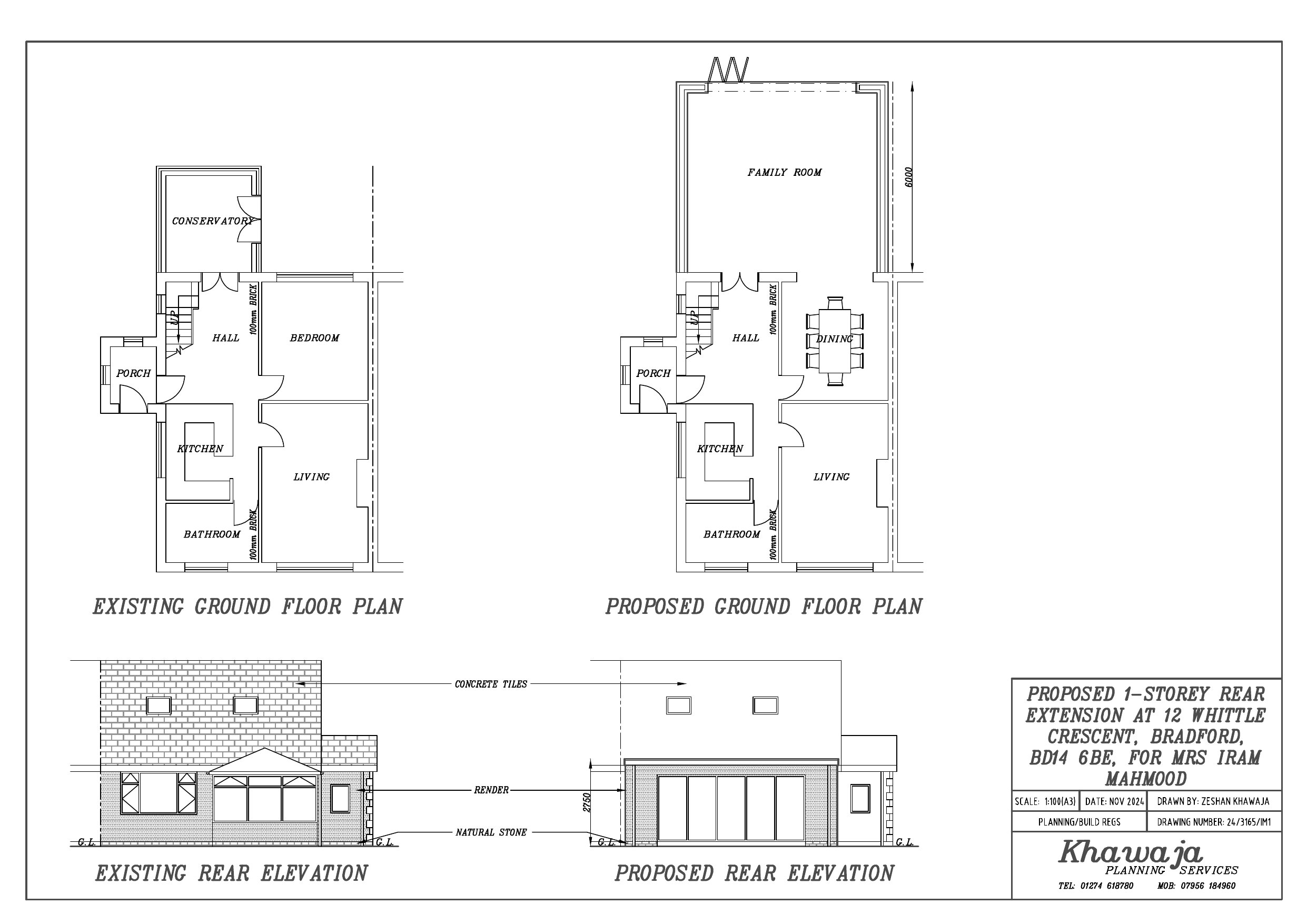
Single-storey rear extension, 6m deep, 2.75m high and to eaves.
Full Proposal
Construction of single storey rear extension of the following dimensions: Depth of proposed extension from rear wall of original dwellinghouse: 6m Maximum height of proposed extension: 2.75m Height to eaves of proposed extension: 2.75m
Detail pages
- View live detail on council site
- No archived detail page available.
Documents
APPLICATION FORM REDACTED
Application Form
Not downloaded
· Council link
DECISION LETTER
Decision
Not downloaded
· Council link
GROUND FLOOR PLANS AND REAR ELEVATIONS
Drawing
Not downloaded
· Council link
MRS CLAIRE HEPTON
Consultee Comment
Not downloaded
· Council link
OFFICER REPORT - HOUSEHOLDER
Planning Officer Report
Not downloaded
· Council link
SIDE ELEVATIONS
Drawing
Not downloaded
· Council link
SITE AND LOCATION PLANS
Drawing
Not downloaded
· Council link