← Back to all authorities

Recent applications

Showing the most recent records stored for this authority (max 200).

Pending Consideration · n/a · Portal
Received Never
Dwellings n/a

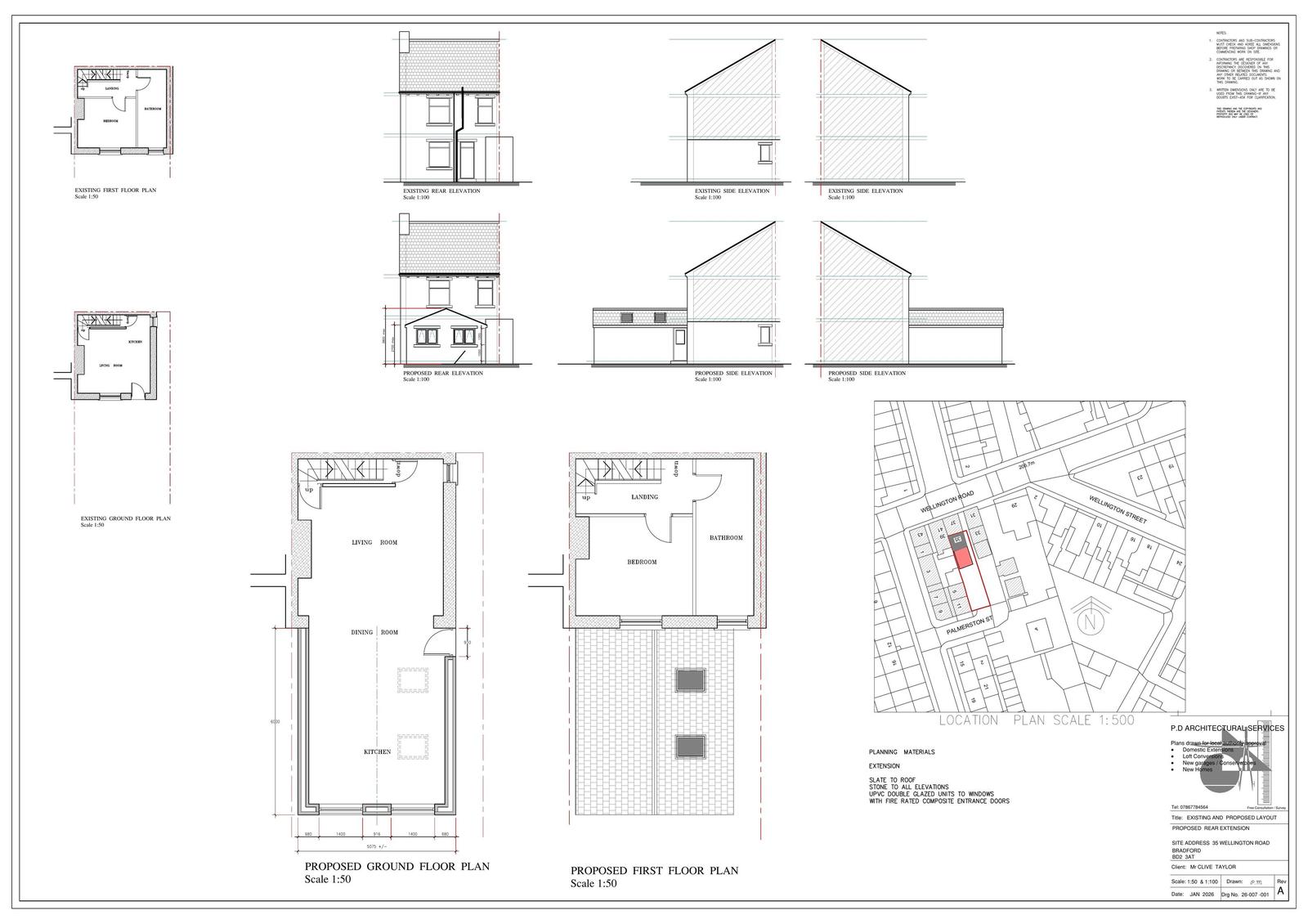
Construction of single storey rear extension of the following dimensions: Depth of proposed extension from rear wall of original dwellinghouse: 4.5m Maximum height of proposed extension: 4m Height to eaves of proposed extension: 3m

Pending Consideration · n/a · Portal
Received Never
Dwellings n/a

T1) Hinoki Cypress. Fell and replace. The tree is quickly outgrowing a retaining rockery bank. It has an extreme bur around the base / root flare which is now displacing the large boulders from which it's grown. It is not the more common dwarf Hinoki found in uk gardens. But believed to be a Chamaecyparis Obtusa, which have been recorded at 80 feet tall in the uk so a considerable further amount to grow. Making the current and potential issues/damage much worse as it matures. It is located on the west/windward side of the house and increasingly encroaching the property. It is very close to an historical garden arch feature which is the principal access to the side garden. And it blocks all light to the patio area and down the side of the house which is a designated seating area. The frontage and main access to the side garden is flagged. The roots have again lifted the flags, which have been continually re pointed over recent years. The area of damage the roots are causing is growing larger each year. It is a constant worry for the applicants that someone will trip over the lifted edges, which are located at the top of stone steps. Many options have been considered, but there is no satisfactory way of raising the level of the area to accommodate raised roots, without compromising the safe access to the steps and side garden. The tree is not visible nor valuable to the surrounding area. Loss would be negligible on the whole, but significant for the applicants long term safety and structural concerns, as the tree matures. For longevity and continuity of tree numbers within the garden, request to replant with a 12-14ft Cherry or Damson within 4m of the removal, or whatever the tree officer deems suitable as the condition for removal.

Pending Consideration · n/a · Portal
Received Never
Dwellings n/a

Application for a Lawful Development Certificate regarding the use of a house (Class C3a) as a children's home for up to two children, with a manager and two carers who would stay overnight, working on a rota basis (C2)

Pending Consideration · n/a · Portal
Received Never
Dwellings n/a

Change of use from residential dwelling (C3) to residential childrens home (C2) for up to 4 children

Pending Consideration · n/a · Portal
Received Never
Dwellings n/a

Change of use from (C3) Dwellinghouse to (C2) Residential institution for 3-4 children

Unknown · n/a · Portal
Received Never
Dwellings n/a

G1 - 5x Sycamores, 1x Rowan, 2x Elms, 6x Alders, 1x Willow trees to be monolithed at 7m. All the trees are growing out of a banking. Due to how close the trees are together they are tall and spindly. The banking is situated between the beck below the trees and a large pond above. The trees root systems are currently holding the banking together, if just one of the trees was to fail it has the potential to damage the pond wall and cause major damaged that maybe unrepairable. The monlithing would remove any chance of large tree failure, ensuring the structural integrity of the banking is retained. Site meeting required with he tree office to discuss.

Unknown · n/a · Portal
Received Never
Dwellings n/a

Construction of single storey rear extension of the following dimensions: Depth of proposed extension from rear wall of original dwellinghouse: 6m Maximum height of proposed extension: 3.25m Height to eaves of proposed extension: 2.9m

Unknown · n/a · Portal
Received Never
Dwellings n/a

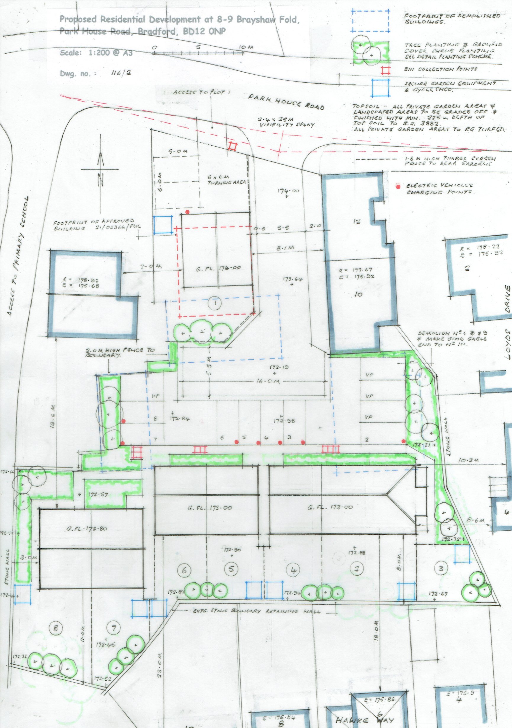
Construction of one semi-detached office structure (Plot 6), one semi-detached house (Plot 7), three terraced houses (Plots 8, 9 and 10) and two detached houses (Plots 11 and 12) with parking, access road and landscaping

Unknown · n/a · Portal
Received Never
Dwellings n/a

Construction of single storey rear extension of the following dimensions: Depth of proposed extension from rear wall of original dwellinghouse: 6m Maximum height of proposed extension: 4m Height to eaves of proposed extension: 3m

Unknown · n/a · Portal
Received Never
Dwellings n/a

Construction of single storey rear extension of the following dimensions: Depth of proposed extension from rear wall of original dwellinghouse: 4m Maximum height of proposed extension: 4m Height to eaves of proposed extension: 3m

Unknown · n/a · Portal
Received Never
Dwellings n/a

Construction of single storey rear extension of the following dimensions: Depth of proposed extension from rear wall of original dwelling house: 5.5m Maximum height of proposed extension: 3.100m Height to eaves of proposed extension: 2.850m

Unknown · n/a · Portal
Received Never
Dwellings n/a

Construction of single storey rear extension of the following dimensions: Depth of proposed extension from rear wall of original dwelling house: 5.5m Maximum height of proposed extension: 3.100m Height to eaves of proposed extension: 2.850m

Unknown · n/a · Portal
Received Never
Dwellings n/a

Change of use of agricultural building to dwelling (Use Class C3)

Unknown · n/a · Portal
Received Never
Dwellings n/a

Construction of single storey rear extension of the following dimensions: Depth of proposed extension from rear wall of original dwelling house: 5m Maximum height of proposed extension: 4m Height to eaves of proposed extension: 3m

Pending Consideration · n/a · Portal
Received Never
Dwellings n/a

Residential development of 56 dwellings with associated access, parking, amenity space, landscaping and infrastructure works

Unknown · n/a · Portal
Received Never
Dwellings n/a

Remove tall Cypress tree in raised bed, on the front corner of the house. Request not to replace, due to lack of suitable space.

Unknown · n/a · Portal
Received Never
Dwellings n/a

Construction of single storey rear extension of the following dimensions: Depth of proposed extension from rear wall of original dwellinghouse: 5m Maximum height of proposed extension: 4m Height to eaves of proposed extension: 4m

Unknown · n/a · Portal
Received Never
Dwellings n/a

T1) Reduce Sycamore radial spread towards the house by 3m max, leaving minimum 3m. To rebalance lower crown following snapped branches on the other side, and allow light to the lawn. T2) Remove Pine tree branches extending towards the chimney pipe. T3) Remove large Cypress tree from the front corner, has outgrown the compact space. Request to not replace due to lack of suitable space.

Unknown · n/a · Portal
Received Never
Dwellings n/a

T1 Lawson cypress - Remove. T2, T3, T4, T5, T6 Myrobian plum - Remove. T7 Monterey cypress - Remove. T10 English yew - cut back to clear the house by 2m. T11 English yew - Remove. T12 English yew - Remove. T14 Purple beech - Cut back to clear the property and garage by 2.5m.

Unknown · n/a · Portal
Received Never
Dwellings n/a

Change of use from business/commercial Class E to 3 dwellings (C3)

Pending Consideration · n/a · Portal
Received Never
Dwellings n/a

Outline application for residential development of land for 1 dwelling with all matters reserved

Pending Consideration · n/a · Portal
Received Never
Dwellings n/a

Construction of a part 3 part 4 storey residential development comprising of 40 apartments with parking and landscaping

Unknown · n/a · Portal
Received Never
Dwellings n/a

Chestnut tree at the front: Crown reduction of 1M on the southside road facing (leaving 4M) and 2M on the northside house facing (leaving 3M). Sycamore tree on the east side of the house we would request a crown reduction of 1.5M which will leave 2M on the west side, and 1M across the rest of the tree. Beech tree South and West facing we would like 2M crown reduction leaving 4M.

Unknown · n/a · Portal
Received Never
Dwellings n/a

Construction of single storey rear extension of the following dimensions: Depth of proposed extension from rear wall of original dwellinghouse: 6.30m Maximum height of proposed extension: 3m Height to eaves of proposed extension: 2.40m

Pending Consideration · n/a · Portal
Received Never
Dwellings n/a

Construction of single storey rear extension of the following dimensions: Depth of proposed extension from rear wall of original dwellinghouse: 4m Maximum height of proposed extension: 3.6m Height to eaves of proposed extension: 2.5m

Pending Consideration · n/a · Portal
Received Never
Dwellings n/a

Construction of single storey rear extension of the following dimensions: Depth of proposed extension from rear wall of original dwellinghouse: 6.0m Maximum height of proposed extension: 4.0m Height to eaves of proposed extension: 3.0m

Pending Consideration · n/a · Portal
Received Never
Dwellings n/a

Change of use from Residential Dwelling (Class C3) to Residential children's Care Home (Class C2) for up to two children, 4 carers, a manager and deputy manager

Pending Consideration · n/a · Portal
Received Never
Dwellings n/a

Construction of new dwelling

Pending Consideration · n/a · Portal
Received Never
Dwellings n/a

Change of use from offices (use class E (G)) to 27 self-contained residential apartments (retrospective)

Unknown · Change of use · Portal
Received Never
Dwellings 5

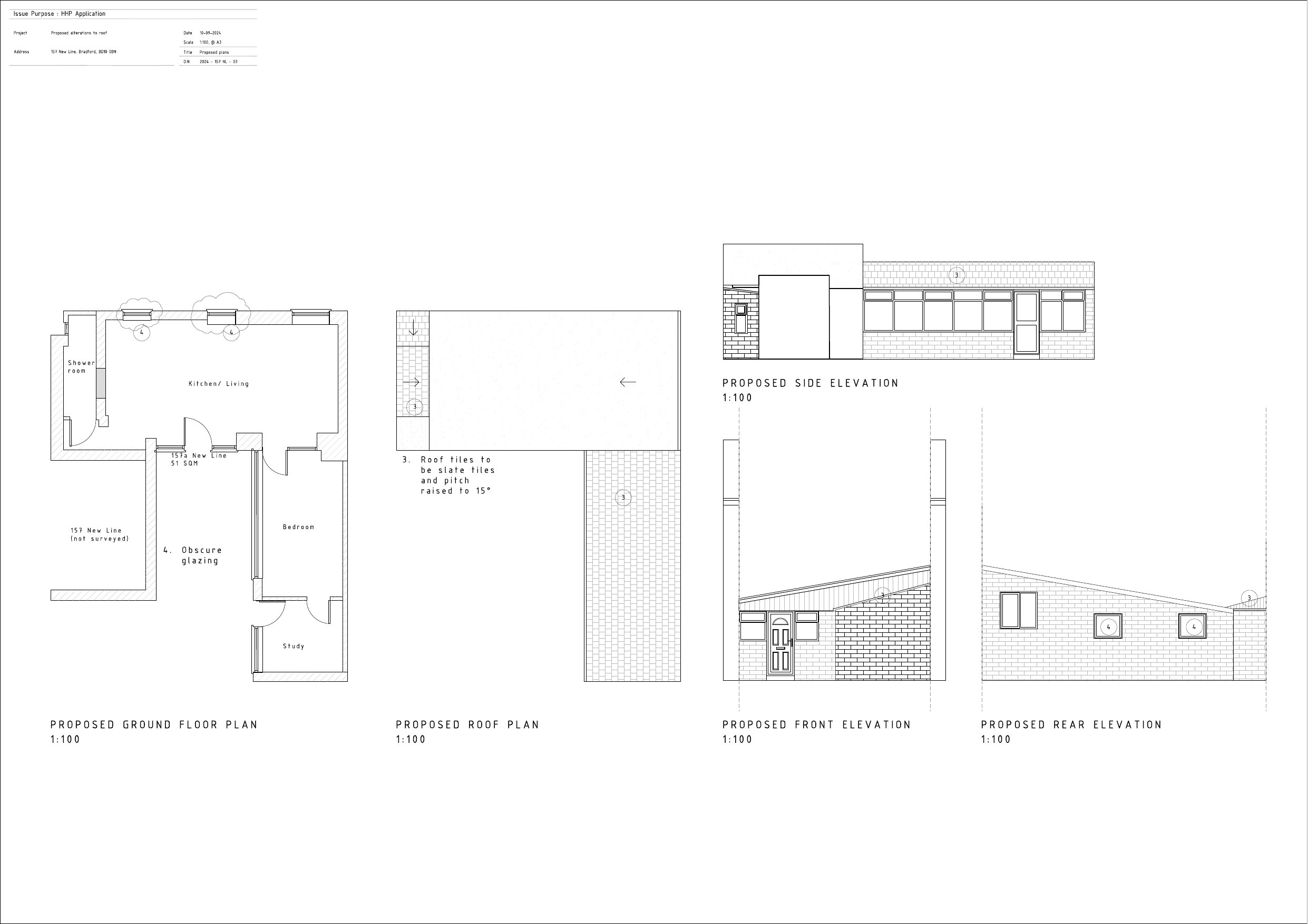
Change of agricultural buildings and land to five dwellings (C3).

Show full description
Change of use of agricultural buildings and land to 5 dwellings (C3)
Pending Consideration · New housing · Portal
75
Received Never
Dwellings 75

Outline residential development of up to 75 dwellings with access considered.

Show full description
Outline planning application for residential development of up to 75 dwellings requesting consideration of access
Pending Consideration · New housing · Portal
1,000
Received Never
Dwellings 1,000

Outline for up to 1,000 dwellings, employment space, school land and neighbourhood centre.

Show full description
Outline planning application for up to 1,000 new dwellings (Use Class C3), 95,000 sq ft of employment floorspace (Use Class B2 and/or B8), land for a primary school (Use Class F1) and a neighbourhood centre (up to 1,000 sqm) with potential uses including: commercial, business and service (Use Class E); local community uses (Use Class F2); residential (Use Class C3); pubs/drinking establishments (Use Class Sui Generis); and hot food takeaways (Use Class Sui Generis). Including associated landscaping and infrastructure (all matters reserved except access to the site, but not within). This application is accompanied by an Environmental Statement.
Unknown · House extension · Portal
Received Never
Dwellings 0

Single-storey rear extension, 6m deep, 2.75m high and to eaves.

Show full description
Construction of single storey rear extension of the following dimensions: Depth of proposed extension from rear wall of original dwellinghouse: 6m Maximum height of proposed extension: 2.75m Height to eaves of proposed extension: 2.75m
Pending Consideration · New housing · Portal
Received Never
Dwellings 1

Construction of one detached dwelling (renewal of previous permission).

Show full description
Construction of one detached dwelling (renewal of 21/04397/FUL)
Pending Consideration · New housing · Portal
38
Received Never
Dwellings 38

Outline application for up to 38 dwellings, access to be considered.

Show full description
Outline application for residential development of land for up to 38 dwellings requesting consideration of access
Unknown · House extension · Portal
Received Never
Dwellings 0

Single-storey rear extension 5m deep, maximum height 4.0m, eaves height 2.5m.

Show full description
Construction of single storey rear extension of the following dimensions: Depth of proposed extension from rear wall of original dwelling house: 5m Maximum height of proposed extension: 4m Height to eaves of proposed extension: 2.5m
Unknown · House extension · Portal
Received Never
Dwellings 0

Single-storey rear extension 6m deep, maximum height 3.7m, eaves height 2.5m.

Show full description
Construction of single storey rear extension of the following dimensions: Depth of proposed extension from rear wall of original dwellinghouse: 6m Maximum height of proposed extension: 3.7m Height to eaves of proposed extension: 2.5m
Pending Consideration · House extension · Portal
Received Never
Dwellings 0

Construct single-storey garage and driveway at side of end-terraced house.

Show full description
Construction of a single storey garage and drive way on the side of an end terraced house
Unknown · House extension · Portal
Received Never
Dwellings 0

Single storey rear extension: 5.0m depth, 4.0m maximum height, 2.7m to eaves.

Show full description
Construction of single storey rear extension of the following dimensions: Depth of proposed extension from rear wall of original dwelling house: 5.0m Maximum height of proposed extension: 4.0m Height to eaves of proposed extension: 2.7m
Pending Consideration · New industry · Portal
Received Never
Dwellings 0

Outline application for light industrial/warehouse units, consideration of access, appearance, layout and scale.

Show full description
Outline application for construction of light industrial/warehouse units requesting consideration of access, appearance, layout and scale
Pending Consideration · New housing · Portal
Received Never
Dwellings 1

Construct one detached dwelling with off-street parking.

Show full description
Construction of one detached dwelling with off street parking
Pending Consideration · New housing · Portal
Received Never
Dwellings 1

Construction of one new dwelling.

Show full description
Construction of one dwelling.
Unknown · House extension · Portal
Received Never
Dwellings 0

Single-storey rear extension 6.00m deep, max height 4.00m, eaves 3.00m.

Show full description
Construction of single storey rear extension of the following dimensions: Depth of proposed extension from rear wall of original dwelling house: 6.00m Maximum height of proposed extension: 4.00m Height to eaves of proposed extension: 3.00m
Unknown · House extension · Portal
Received Never
Dwellings 0

Crown lift willow and reduce branches towards dwellings to provide maximum 2m clearance.

Show full description
Original specification of works withdrawn by the landowner on the 05/04/2025 following a site visit by a council officer on the 04/04/2025. Updated proposed works: Willow - Crown lift no higher than the yellow lines shown on the attached photos, alongside work to reduce branches growing towards the dwellings, to give a maximum of a 2m clearance.
Pending Consideration · New housing · Portal
Received Never
Dwellings 2

Construction of two semi-detached dwellings.

Show full description
Construction of semi-detatched dwellings
Unknown · Change of use · Portal
Received Never
Dwellings 5

Convert upper and lower ground floor offices into five residential dwellings; ground floor front stays commercial.

Show full description
Change of use of upper floors and lower ground floor offices to 5 dwellings. Ground floor front facing elevation retained as commercial use.
Pending Consideration · New housing · Portal
Received Never
Dwellings 1

Construction of a detached single dwelling.

Show full description
Construction of detached dwelling
Pending Consideration · New housing · Portal
Received Never
Dwellings 4

Outline application for residential development of land to provide four dwellings, access for consideration.

Show full description
Outline application for residential development of land for 4 dwellings requesting consideration of access
Unknown · Change of use · Portal
Received Never
Dwellings 2

Change of use of commercial office (E(g)(i)) to form two residential apartments (C3).

Show full description
Change of use of commercial office (E(g)(i) use) to form 2 No residential apartments (C3 Use)
Unknown · House extension · Portal
Received Never
Dwellings 0

Single-storey rear extension: 6m depth, 4m max height, 3m eaves height.

Show full description
Construction of single storey rear extension of the following dimensions: Depth of proposed extension from rear wall of original dwellinghouse: 6m Maximum height of proposed extension: 4m Height to eaves of proposed extension: 3m
Unknown · House extension · Portal
Received Never
Dwellings 0

Single-storey rear extension: 5m depth, 4m max height, 3.3m eaves height.

Show full description
Construction of single storey rear extension of the following dimensions: Depth of proposed extension from rear wall of original dwelling house: 5 metres Maximum height of proposed extension: 4 metres Height to eaves of proposed extension: 3.3 metres
Unknown · Change of use · Portal
Received Never
Dwellings 0

Tree works: pruning, height reduction and crown thinning of Sycamore and multiple Silver Birch trees for clearance and management.

Show full description
T1 - Sycamore Tree - No Action T2 - Silver Birch Tree - Prune overhanging branches back to suitable growth points to give 2metres clearance from the building - To give sufficient clearance to the dwelling. T3 - Silver Birch Tree - Reduce in height by 50%, from 40ft to 20ft and prune lateral branches in to balance the crown - Good tree management to retain the tree as a smaller version, allowing it to be manageable. The tree is within very close proximity to the building and currently blocking natural light into one of the apartments. G1 - Row of Small Silver Birch Trees - Reduce in height by 50%, from 30ft to 15ft and prune the lateral branches back to suitable growth points - Good tree management to retain the trees but allowing them to be manageable, avoiding them outgrowing their location.
Unknown · House extension · Portal
Received Never
Dwellings 0

Single-storey rear extension 6m deep, 3.7m max height, 2.7m eaves.

Show full description
Construction of single storey rear extension of the following dimensions: Depth of proposed extension from rear wall of original dwellinghouse: 6m Maximum height of proposed extension: 3.7m Height to eaves of proposed extension: 2.7m
Unknown · Change of use · Portal
Received Never
Dwellings 0

Holly tree reduction by approximately 1.5 metres to reduce overhang and shading.

Show full description
Holly - Reduce the height by approximately 1.5 metres. Conservation area on Whitecroft, Browgate ends at the bank of the stream that borders my garden. A holly tree is growing on the Whitecroft side of the bank of the stream, at the point between my house and number 12 Whitelands Crescent. Due to shady conditions, this tree has grown leaning over to my side of the stream and is blocking light and overpowering plants in my garden. There is very little growth until it overhangs my garden so the tree is very top heavy. The tree position is shown on the attached sketch.
Unknown · House extension · Portal
Received Never
Dwellings 0

Single-storey rear extension 7.96m deep, 3.5m max height, 2.6m eaves.

Show full description
Construction of single storey rear extension of the following dimensions: Depth of proposed extension from rear wall of original dwellinghouse: 7.96m Maximum height of proposed extension: 3.5m Height to eaves of proposed extension: 2.6m
Pending Consideration · New housing · Portal
295
Received Never
Dwellings 295

Construction of 295 dwellings with open space, landscaping and associated infrastructure.

Show full description
Construction of 295 dwellings, open space, landscaping, and associated infrastructure
Pending Consideration · New housing · Portal
Received Never
Dwellings 4

Outline application for residential development of 4 dwellings, consideration of access.

Show full description
Outline planning application for residential development of land for 4 dwellings requesting consideration of access 4 dwellings
Unknown · Community facility · Portal
Received Never
Dwellings 0

Fell and remove leaning conifer overhanging road and threatening clubhouse.

Show full description
Tree 1, conifer to fell and remove due to leaning towards club house and growing over road.
Unknown · House extension · Portal
Received Never
Dwellings 0

Single-storey rear extension 4.3m depth, 4m max height, 3.5m eaves.

Show full description
Construction of single storey rear extension of the following dimensions: Depth of proposed extension from rear wall of original dwelling house: 4.3m Maximum height of proposed extension: 4m Height to eaves of proposed extension: 3.5m
Pending Consideration · New housing · Portal
53
Received Never
Dwellings 53

Provision of 53 affordable dwellings with landscaping and associated infrastructure.

Show full description
53 No affordable dwellings, landscaping and associated infrastructure
Pending Consideration · New housing · Portal
20
Received Never
Dwellings 20

20 affordable dwellings with estate road and access from Flockton Road.

Show full description
20 No affordable dwellings with associated estate road including access from Flockton Road, along with ancillary works
Pending Consideration · New housing · Portal
34
Received Never
Dwellings 34

34 affordable dwellings with estate road and access from Brompton Avenue.

Show full description
34 No. affordable dwellings with estate road, access from Brompton Avenue and ancillary works
Unknown · House extension · Portal
Received Never
Dwellings 0

Remove dead ash tree within residential Laurel block; applicant requests no replanting.

Show full description
T1) Remove dead Ash tree within large Laurel block located on Panorama Drive behind 16 Westwood Rise. Opposite the house with lots of ongoing renovation work. Request not to replant due to lack of suitable space.
Pending Consideration · New housing · Portal
44
Received Never
Dwellings 44

Construction of 34 dwellings and 10 apartments.

Show full description
Construction of 34 dwellings and 10 Apartments
Pending Consideration · New housing · Portal
Received Never
Dwellings 1

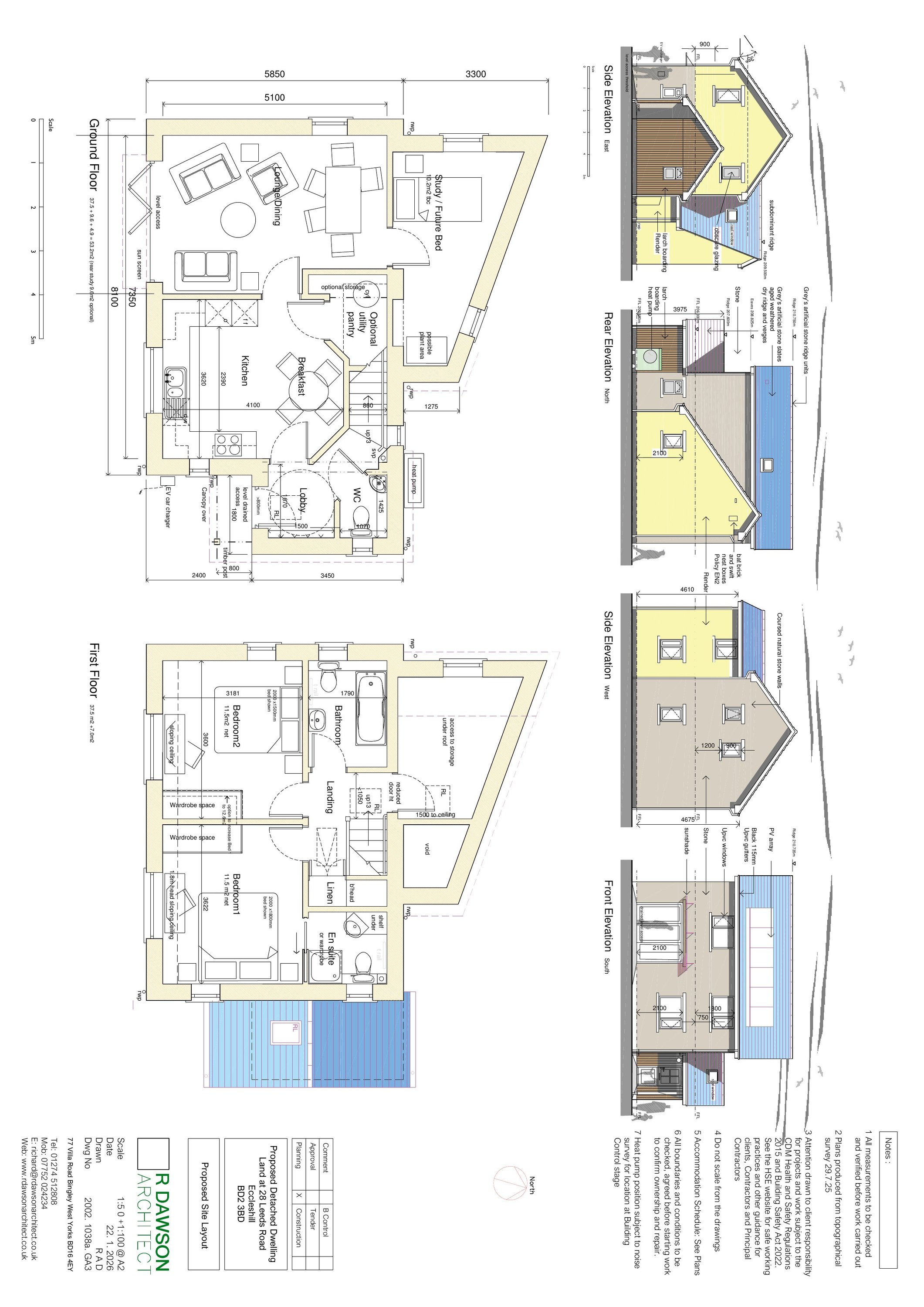
Demolition of existing bungalow and construction of a new dwelling.

Show full description
Demolition of existing bungalow and construction of new dwelling
Pending Consideration · New housing · Portal
30
Received Never
Dwellings 30

Reserved matters for 30 dwellings: layout, scale, appearance and landscaping.

Show full description
Reserved matters application requesting consideration of layout, scale, appearance and landscaping for 30 residential dwellings (pursuant to outline approval 18/03530/MAO)
Pending Consideration · New housing · Portal
Received Never
Dwellings 1

Construction of one detached dwelling west of 10 Sandholme Drive.

Show full description
Construction of a detached dwelling to West of 10 Sandholme Drive
Pending Consideration · New housing · Portal
Received Never
Dwellings 7

Reserved matters for appearance, landscaping, layout and scale for seven dwellings.

Show full description
Reserved matters application requesting consideration of appearance, landscaping, layout and scale for 7 dwellings (pursuant to outline approval 22/00233/OUT
Pending Consideration · Change of use · Portal
Received Never
Dwellings 0

Change from four-bed house to four-bed house in multiple occupation with dormer and parking.

Show full description
Change of use from 4-bed house to 4-bed house in multiple occupation plus rear dormer and parking with bike storage to rear
Pending Consideration · Change of use · Portal
Received Never
Dwellings 4

Change of use from B8 commercial to four one-bedroom apartments.

Show full description
Change of use from commercial building (Use Class B8) to four one-bed apartments (Use Class C3)
Pending Consideration · New housing · Portal
Received Never
Dwellings 1

Subdivide dwelling into two houses with 2 EV points, parking, turning area and dividing walls/fencing.

Show full description
Sub-division of dwellinghouse to form 2 No dwellinghouses; 2 No EV charging points; parking and turning area to front; and associated stone walling and fencing to separate properties
Pending Consideration · New housing · Portal
Received Never
Dwellings 1

Subdivide dwelling into two houses with 2 EV points, parking, turning area and dividing walls/fencing.

Show full description
Sub-division of dwellinghouse to form 2 No dwellinghouses; 2 No EV charging points; parking and turning area to front; and associated stone walling and fencing to separate properties
Unknown · House extension · Portal
Received Never
Dwellings 0

Single-storey rear extension, 6m deep, maximum height 4m and eaves height 3m.

Show full description
Construction of single storey rear extension of the following dimensions: Depth of proposed extension from rear wall of original dwelling house: 6m Maximum height of proposed extension: 4m Height to eaves of proposed extension: 3m
Pending Consideration · New housing · Portal
Received Never
Dwellings 5

Alterations to convert part of building into five one-bedroom flats, including cladding and new windows/doors.

Show full description
Works to facilitate the change of use of part of the building into 5 No 1 bedroomed flats (C3 use) including the reopening and infilling of windows/doors, addition of cedar cladding over rendered sections of walling and the installation of upvc framed double glazed units and composite doorsets throughout
Unknown · House extension · Portal
Received Never
Dwellings 0

Single-storey 6m deep rear extension to dwellinghouse, maximum height 4m, eaves 3m.

Show full description
Construction of single storey rear extension of the following dimensions: Depth of proposed extension from rear wall of original dwellinghouse: 6m Maximum height of proposed extension: 4m Height to eaves of proposed extension: 3m
Pending Consideration · New housing · Portal
20
Received Never
Dwellings 20

Outline for demolition of equestrian buildings and construction of up to 20 dwellings, access reserved.

Show full description
Outline planning permission for demolition of equestrian buildings, construction of up to 20 dwellings, and associated works, with all matters reserved, except for access to the site (access within the site is reserved)
Pending Consideration · New housing · Portal
22
Received Never
Dwellings 22

Outline for demolition of school buildings and construction of 22 houses, with matters considered.

Show full description
Outline application for demolition of school buildings and construction of 22 houses requesting consideration of scale, layout, access and appearance
Pending Consideration · New housing · Portal
25
Received Never
Dwellings 25

Outline residential development for 25 dwellings considering scale, layout, access and appearance.

Show full description
Outline application for residential development of land for 25 dwellings requesting consideration of scale, layout, access and appearance
Pending Consideration · New housing · Portal
Received Never
Dwellings 4

Construction of four three-bedroom dwellinghouses with associated parking and landscaping.

Show full description
4No. three bedroom dwellinghouses with associated parking and landscaping
Pending Consideration · New housing · Portal
147
Received Never
Dwellings 147

Construction of 147 dwellings with open space, landscaping and associated infrastructure.

Show full description
Construction of 147 dwellings, open space, landscaping and associated infrastructure
Pending Consideration · New housing · Portal
27
Received Never
Dwellings 27

Outline permission for 27 dwellings considering scale, layout, access and appearance.

Show full description
Outline application for residential development of land for 27 dwellings requesting consideration of scale, layout access and appearance
Pending Consideration · Change of use · Portal
Received Never
Dwellings 0

Front extension and change of use/extension of former barn, linked to form one larger dwelling.

Show full description
Front extension to main house, change of use and extension of former barn including formation of internal granny annexe, and linking to main house to form 1.No larger dwelling.
Pending Consideration · New housing · Portal
Received Never
Dwellings 6

Construction of six two-storey dwellings with associated parking.

Show full description
Construction of six, two-storey dwellings with associated parking
Unknown · House extension · Portal
Received Never
Dwellings 0

Single storey rear extension 4.4m deep, 3.45m maximum height, 2.45m to eaves.

Show full description
Construction of single storey rear extension of the following dimensions: Depth of proposed extension from rear wall of original dwellinghouse: 4.4m Maximum height of proposed extension: 3.45m Height to eaves of proposed extension: 2.45m
Pending Consideration · New housing · Portal
Received Never
Dwellings 6

Demolish two dwellings and construct eight replacement dwellings with access and landscaping.

Show full description
Demolition of two dwellings and construction of eight replacement dwellings with access and landscaping works
Unknown · Community facility · Portal
Received Never
Dwellings 0

Application to remove a large beech tree in side garden due to size and light loss.

Show full description
This application seeks the removal of the beech situated in the side garden of Wyngarth, Laycock Lane. The tree is located between the dwellings Wyngarth and 56 Laycock Lane. The tree is too large for its position between the two houses. It entirely fills the space between the dwellings and blocks light from the house and garden at Wyngarth. There are two further trees to the north of the beech in close proximity. One in the applicants garden, the other on a neighbours land. These trees will be unaffected and will contribute to the visual amenity of the conservation area, maintaining a view of trees between Wyngarth and 56 Laycock Lane from Laycock Lane. See attached photos taken 6/8/25 for context.
Pending Consideration · New industry · Portal
Received Never
Dwellings 0

Construct B2 food production warehouse with parking, vehicular access and EV charging points.

Show full description
Warehouse for food production (use class B2) with associated parking, vehicular access and EV charging points
Pending Consideration · Change of use · Portal
Received Never
Dwellings 5

Convert part of building into five one-bedroom residential flats with fenestration and cladding works.

Show full description
Change of use of part of the building into 5 No 1 bedroomed flats (C3 use) including the reopening and infilling of windows/doors, addition of cedar cladding over rendered sections of walling and the installation of upvc framed double glazed units and composite doorsets throughout
Pending Consideration · New housing · Portal
Received Never
Dwellings 2

Outline permission for two new dwellings with access considered.

Show full description
Outline planning application for residential development of land for construction of two dwellings requesting consideration of of access
Pending Consideration · Change of use · Portal
Received Never
Dwellings 3

Reconfigure five apartments into eight assisted living units with communal space and staff rooms.

Show full description
Change of use and reconfiguration of first and second floors from 5 residential apartments to 8 assisted living units with associated communal living space and two staff rooms
Pending Consideration · New housing · Portal
Received Never
Dwellings 2

Construction of two semi-detached houses.

Show full description
Construction of two semi-detached houses
Pending Consideration · New housing · Portal
Received Never
Dwellings 9

Construction of nine dwellings with associated access and landscaping.

Show full description
Nine dwellings with associated access and landscaping
Pending Consideration · New housing · Portal
1,000
Received Never
Dwellings 1,000

Phased development: detailed permission for 97 dwellings and outline for up to 903 dwellings plus retail and park.

Show full description
Hybrid planning application for a phased development comprising: 1) the demolition of existing buildings, other than the Oastler Centre, and structures within the site and site preparatory works; 2) detailed planning permission for the erection of 97 dwellings (Use Class C3) and associated means of access, parking, landscaping and associated infrastructure works; 3) outline planning permission with all matters reserved for mixed use development comprising the erection up to 903 dwellings and up to 7,000sqm of retail and community uses (Use Classes E and F2), a new public park, other hard and soft landscaping, car and cycle parking and other associated infrastructure and engineering works - This application is accompanied by an Environmental Statement.
Pending Consideration · Change of use · Portal
Received Never
Dwellings 0

Convert pub to restaurants and flats, add part two-storey side extension, dormers, roof alterations and extraction flue.

Show full description
Change of use of pub (sui generis) to mixed-use of restaurants (Class E) and flats (Class C3); construction of part two storey, part single storey side extension; and roof alterations including front and side dormer windows and extraction flue to rear roof slope
Pending Consideration · Change of use · Portal
Received Never
Dwellings 0

Refurbish barn and stables with link; change barn to residential; install ground-mounted solar and battery shed.

Show full description
Demolition of porch to front elevation and reinstatement of former arched barn door opening. New transitory corridor link extension between house and barn. Refurbishment of existing barn to facilitate recreational/leisure facilities (change of use to residential). Refurbishment and alterations to existing stables with addition on link extension between stables and barn. Installation of ground mounted solar panels and battery storage shed on adjacent land.
Unknown · n/a · Portal
Received Never
Dwellings n/a

Construction of single storey rear extension of the following dimensions: Depth of proposed extension from rear wall of original dwelling house: 6m Maximum height of proposed extension: 4m Height to eaves of proposed extension: 3m

Unknown · n/a · Portal
Received Never
Dwellings n/a

Construction of single storey rear extension of the following dimensions: Depth of proposed extension from rear wall of original dwellinghouse: 3m Maximum height of proposed extension: 4m Height to eaves of proposed extension: 2.5m

Unknown · n/a · Portal
Received Never
Dwellings n/a

T1 remove, portueguese laurel is too close to the residents wall and the council are worried it could potentially get worse in the future.a replacement tree will be planted. T2 remove/fell this goat willow is too close to the residents house and to the railings.the council would like to plant a replacement tree away from the property.

Pending Consideration · n/a · Portal
Received Never
Dwellings n/a

Construction of one detached dwelling and associated works

Pending Consideration · n/a · Portal
Received Never
Dwellings n/a

Outline application for one dwelling on land, all matters reserved.

Show full description
Outline planning application for residential develpment of land for 1 dwelling with all matters reserved
Pending Consideration · n/a · Portal
Received Never
Dwellings n/a

Construction of three storey detached dwelling with vehicular access off Westbourne Drive

Pending Consideration · n/a · Portal
Received Never
Dwellings n/a

Construction of detached dwelling (part retrospective)

Pending Consideration · n/a · Portal
Received Never
Dwellings n/a

Construction of up to nine detached dwellings.

Show full description
Construction of upto 9 detached dwellings
Pending Consideration · n/a · Portal
Received Never
Dwellings n/a

Outline residential development for six dwellings, considering access, landscaping, layout, scale.

Show full description
Outline application for residential development of land for six dwellings requesting consideration of access, landscaping, layout and scale plus alterations to 41 Walker Wood
Unknown · n/a · Portal
Received Never
Dwellings n/a

Construction of single storey rear extension of the following dimensions: Depth of proposed extension from rear wall of original dwellinghouse: 6.0m Maximum height of proposed extension: 3.55m Height to eaves of proposed extension: 2.60m

Pending Decision · n/a · Portal
Received Never
Dwellings n/a

Change of use from public house with 10No. bedroom HMO (sui generis) to 18No. bedroom HMO (sui generis)

Unknown · n/a · Portal
Received Never
Dwellings n/a

Re-reduce T1) Eucalyptus tree removing 3m max, remaining *5m height. G1) Lift over the path to 3m, cut back upper overhang to path edge and re reduce the entire line in height by 2m max, remaining *4m height. T2) Inside the front corner, prune out the bare whips from the Holly. Down the side of the house, reduce T3) Lilac and T4) Acer tree by half removing 1.5m, remaining *1.5m height to separate the canopies and allow light to the bed beneath. T5 & T6) Reduce 2x large merged Leylandii trees removing 3m max, remaining *5m height. For light allowance being on the south boundary. In the middle of the rear garden, reduce G2) 2x Conifer blocks to clear the lines by 2m max. Prune the T7) Eastern Redbud and T8) Cherry Plum on the rear mid boundary fence removing 2m max, remaining *4m height. * Approximately (see marked photos).

Unknown · n/a · Portal
Received Never
Dwellings n/a

T1 Goat willow- Fell. The tree is growing at a steep angle on the edge of a small planted woodland. Its becoming very imposing for the property because of its lean towards the house and it lost a lot of branches in the bad winds a few weeks ago which subsequently fell onto the drive luckily. Its also less than 1m from the perimeter wall of the woodland and is casting shade on surrounding properties.

Pending Consideration · n/a · Portal
Received Never
Dwellings n/a

Demolish assisted living units and redevelop to provide 69 assisted living apartments and amenities.

Show full description
Demolition of existing assisted living accommodation and redevelopment of site to create 69 assisted living (social rent) apartments with communal and ancillary areas, parking, access, substation, landscaping and associated works
Pending Consideration · n/a · Portal
Received Never
Dwellings n/a

Convert former Methodist church into nine apartments.

Show full description
Conversion of former Methodist Church into 9 No apartments
Unknown · n/a · Portal
Received Never
Dwellings n/a

Construction of single storey rear extension of the following dimensions: Depth of proposed extension from rear wall of original dwelling house: 7.5m Maximum height of proposed extension: 3m Height to eaves of proposed extension: 2.7m

Pending Consideration · n/a · Portal
Received Never
Dwellings n/a

Residential development of 147 dwellings with vehicular access, open space and sustainable drainage.

Show full description
Residential development of 147 No dwellings with associated vehicular access, open space and sustainable urban drainage system
Pending Consideration · n/a · Portal
Received Never
Dwellings n/a

Residential development of up to 17 dwellings.

Show full description
Residential development of up to17 dwellings
Pending Decision · n/a · Portal
Received Never
Dwellings n/a

Change of use of existing store to a one 2‑bed caretaker residential unit.

Show full description
Change of use of existing store to a 2-bed residential unit for caretaker accommodation. Alterations to existing windows on south elevation
Pending Consideration · n/a · Portal
Received Never
Dwellings n/a

Demolition of office and garage and construction of a pair of semi-detached dwellings.

Show full description
Demolition of existing office and garage. Construction of a pair of semi detached dwellings.
Unknown · n/a · Portal
Received Never
Dwellings n/a

Construction of single storey rear extension of the following dimensions: Depth of proposed extension from rear wall of original dwelling house: 4.0m Maximum height of proposed extension: 2.7m Height to eaves of proposed extension: 2.6m

Pending Consideration · n/a · Portal
Received Never
Dwellings n/a

Demolition of existing former coach house and reconstruction to form a detached dwelling

Pending Consideration · n/a · Portal
Received Never
Dwellings n/a

Single storey rear extension and retention of render to external walls of dwellinghouse.

Pending Decision · n/a · Portal
Received Never
Dwellings n/a

Erection of an agricultural workers dwelling

Unknown · n/a · Portal
Received Never
Dwellings n/a

We have a dead elm tree in the middle of our garden. It needs to be felled as it is at the side of our garden path. It is not situated near property and the felling would not pose a risk to our house or our neighbours. It is within our own woodland area. It has gradually deteriorated over past few years.

Pending Consideration · n/a · Portal
Received Never
Dwellings n/a

Construction of 116 new dwellings, new access, public green space and associated infrastructure.

Show full description
Construction of 116 dwellings with new access onto Wilson Road, public green space, and associated infrastructure
Pending Consideration · n/a · Portal
Received Never
Dwellings n/a

Construction of three townhouse dwellings (resubmission).

Show full description
3 No townhouse dwellings (resubmission of 20/00371/FUL)
Pending Consideration · n/a · Portal
Received Never
Dwellings n/a

Partial demolition of existing nursing home. Change of use to a dwellinghouse use (C3). Construction of a single storey rear extension to form snooker room, gym and swimming pool.

Pending Consideration · n/a · Portal
Received Never
Dwellings n/a

Outline permission for residential development; only access reserved, other matters reserved.

Show full description
Outline application for construction of residential development including associated infrastructure works. All matters reserved except means of access into (but not within) the site from Highgate Grove and Lingfield Terrace
Pending Consideration · n/a · Portal
Received Never
Dwellings n/a

Outline application for demolition of existing stables and construction of one dwelling with all matters reserved

Pending Consideration · n/a · Portal
Received Never
Dwellings n/a

Convert goat shed/feed store to one dwelling with single-storey side extension.

Show full description
Conversion of an existing goat shed/hay and feed store to a residential dwelling and the construction of a single-storey side extension
Unknown · n/a · Portal
Received Never
Dwellings n/a

Request to remove 1x early mature Cedar tree, Cedrus Deodara. The tree risks future impact on the historical boundary wall. The base is located less than 1m away. It is a notable feature of the listed building, and a land retaining wall. The current impact is on the neighbours at 10 Bradley Road, who are an elderly retired couple. They are now unable to park in their allocated space due to constant needle debris which damages the paintwork finish, and gathers in the cars wipers and rubber seals. And because they have to park away from the tree against the gates, they cannot accommodate a second car, or any guest vehicles. The tree is on their westerly boundary, fairly exposed to prevailing winds and on an elevated level. They are extremely anxious in bad weather and state it is very badly affecting their mental health and they both suffer greatly from sleepless nights. Ever increasing winds affect their daily ability to keep up with the removal and disposal of the needle debris, which is now a twice daily chore, and they find to be a very physically demanding task. The tree was planted by the owner, unaware of the large stature in full maturity. It is not visible nor valuable to the surrounding area, so loss would be negligible. Prefer not to replace due to lack of suitable space, but would be willing if that was a condition the tree officer wishes to apply. Whilst the reason are not arboricultural, they are founded in a need for domestic, personal and property coexistence, safety and concerns, as outlined above.

Unknown · n/a · Portal
Received Never
Dwellings n/a

T1) Reduce large mature Cherry tree by around a third and reshape. Removing 4m max mostly lateral towards the house, remaining 4m overall height. As per the illustrated photo's attached. The tree has grown very windswept towards the house, it spans the garden blocking all light and is almost in contact with the first floor window.

Unknown · n/a · Portal
Received Never
Dwellings n/a

Emergency works to Tilia europaea due to rootball failure risk to properties and highways.

Show full description
T1 Tilia x europaea- . Reasons for the emergency works already carried out Due too Root ball failure, causing the tree to potentially fail risking damage to dwellings, highways or life.
Unknown · n/a · Portal
Received Never
Dwellings n/a

Construction of single storey rear extension of the following dimensions: Depth of proposed extension from rear wall of original dwellinghouse: 4.0m Maximum height of proposed extension: 4.0m Height to eaves of proposed extension: 3.0m

Unknown · n/a · Portal
Received Never
Dwellings n/a

T1- Sycamore Tree, removal due to heavily pruned in the past and decaying through the old cuts. Also blocking the light to the house

Unknown · n/a · Portal
Received Never
Dwellings n/a

T1- Sycamore Tree - Remove due to uprooting. T2- Sycamore Tree - Remove to gain light in the garden. T3- Conifer- Remove from the side of the garage for light. T4 - T11 - Overgrown hedge to remove to bring light into the garden and house.

Pending Consideration · n/a · Portal
Received Never
Dwellings n/a

Development of up to nine dwellings.

Show full description
Development of up to nine dwellings
Pending Consideration · n/a · Portal
Received Never
Dwellings n/a

Change of use of dwelling to form two flats with single-storey extension.

Show full description
Change of use of dwelling to form two flats with new single storey extension
Pending Consideration · n/a · Portal
Received Never
Dwellings n/a

Conversion of upper floor offices to five residential flats.

Show full description
Change of use of upper floors offices to form 5 flats
Pending Consideration · n/a · Portal
Received Never
Dwellings n/a

Change of single-family dwelling to children's residential care home for two children; garage to communal space.

Show full description
Change of use from a single-family residential dwelling (Use Class C3(a)) to a small-scale childrens residential care home for two children and two full time carers (Use Class C2) with conversion of the existing garage into a communal space
Unknown · n/a · Portal
Received Never
Dwellings n/a

Construction of single storey rear extension of the following dimensions: Depth of proposed extension from rear wall of original dwellinghouse: 6m Maximum height of proposed extension: 3.8m Height to eaves of proposed extension: 2.5m

Pending Consideration · n/a · Portal
Received Never
Dwellings n/a

Two storey and single storey side extension, hip to gable extension with dormer and summer house to garden.

Pending Consideration · n/a · Portal
Received Never
Dwellings n/a

Convert barns to two dwellings (C3) with associated works.

Show full description
Change of use of barns to 2 dwellings (C3) and asssociated works
Pending Decision · n/a · Portal
Received Never
Dwellings n/a

Construction of two dwellings (retrospective).

Show full description
Construction of 2 dwellings (Retrospective)
Pending Consideration · n/a · Portal
Received Never
Dwellings n/a

Change of use of vacant office to six residential apartments (retrospective).

Show full description
Change of use of vacant commercial disused office (Eg(i) Use Class) to form 6no residential apartments (C3 Use Class) on first, second and third floor to regularise it. (Retrospective)
Pending Consideration · n/a · Portal
Received Never
Dwellings n/a

Change of use from residential dwelling (C3) to children's care home (C2) for three young people.

Show full description
Change of use from residential dwelling (use class C3) to children's care home (use class C2) for the care of three young people
Pending Consideration · n/a · Portal
Received Never
Dwellings n/a

Construction of a detached dwelling

Pending Consideration · n/a · Portal
Received Never
Dwellings n/a

Outline application for residential development of six dwellings, considering access, layout and scale.

Show full description
Outline application for residential development of land for 6 dwellings requesting consideration of access, layout and scale
Unknown · n/a · Portal
Received Never
Dwellings n/a

Fell conifer tree near house due to excessive size and safety risk in high winds.

Show full description
T1 - Conifer Tree - Fell - The conifer has become disproportionately large for its position, being situated in very close proximity to the house and associated hard surfaces. Due to its proximity and height, the tree poses an increasing risk to the property in high winds. Conifers of this species and size are not well-suited to small residential plots, as their growth habit and shallow rooting make them difficult to manage safely in confined spaces. Reduction of this species is not advisable, as heavy pruning tends to result in poor regrowth, unsightly form, and long-term decline. Conifers do not respond well to crown reduction or shaping, and such works would likely disfigure the tree rather than improve its safety or appearance.
Pending Consideration · n/a · Portal
Received Never
Dwellings n/a

Construction of a pair of semi-detached dwellings.

Show full description
Construction of a pair of semi-detached dwellings
Pending Consideration · n/a · Portal
Received Never
Dwellings n/a

Construction of single dwelling

Pending Consideration · n/a · Portal
Received Never
Dwellings n/a

Construction of five dwellings and landscape and habitat enhancements to western fields.

Show full description
Five dwellings to eastern field and enhancement of landscapes and habitats to western fields
Pending Decision · n/a · Portal
Received Never
Dwellings n/a

Change of use of café to six residential flats with front and rear dormer roof extensions.

Show full description
Change of use of existing cafe to 6 residential flats with new dormer roof extension to front and rear
Pending Consideration · n/a · Portal
Received Never
Dwellings n/a

Conversion of barn and adjoining former farm buildings into a single residential dwelling with wastewater treatment plant.

Show full description
Change of use of barn and alterations to adjoining former farm buildings to form a single residential dwellinghouse. Installation of waste water treatment plant
Pending Consideration · n/a · Portal
Received Never
Dwellings n/a

Construction of three dwellings.

Show full description
Construction of 3 dwellings
Pending Consideration · n/a · Portal
Received Never
Dwellings n/a

Construction of 19 dwellings with access roads, parking, landscaping, drainage and ancillary works.

Show full description
Construction of 19 residential dwellings comprising mix of two, three, four and five-bedroom dwellings, together with associated access roads, car parking, landscaping, open green space, sustainable drainage, and all ancillary works
Unknown · n/a · Portal
Received Never
Dwellings n/a

Remove large rear tree and replace with hornbeam to improve light and safety for flats.

Show full description
One large holy tree to the rear back left corner of the property. The tree is to be removed and replaced with a hornbeam tree, This tree will be allowed to grow and is deciduous, so will let light in the flats during the winter, it will be correctly maintained. The current Holy tree has been trimmed in the past and as a result has grown that close to the building it's now blocking the light completely for two flats. The residents at the property are concerned about the rear gate being so close to the tree causing damage, and that the tree will hit the building and windows of the building causing damage very soon. The residents can see nothing but the tree from their windows, it this is starting to affect the elderly residents well being. The residents are more than happy to pay for a replacement tree and for the ongoing correct maintenance of the new tree by a skilled tree surgeon.
Pending Decision · n/a · Portal
Received Never
Dwellings n/a

Construction of two storey dwelling

Pending Consideration · n/a · Portal
Received Never
Dwellings n/a

T1 Oremental Plum Reduce by 2m and reshape .the trees have been reduce before. T2, Conifer, Drawback from the corner of the housre to give a 2m clearance. T3, Apple, Drawback from the house to give a 2m clearance. T4, Holly Fell due to been close to the wall. T5, Cherry, Fell due to been with 300mm of the large boundary wall which has moved due to the tree, Replace with a rowan or silver birch 2 to 3m from the wall. T6, Hawthorn drawback from the neighbouring house to give a 2m clearance. T7, Apple, reduce by2m and reshape to help reduce the risk of the tree failing.

Pending Consideration · n/a · Portal
Received Never
Dwellings n/a

Change of Use from Dwellinghouse (C3 use) to 9-bed HMO (sui generis)

Unknown · n/a · Portal
Received Never
Dwellings n/a

Construction of single storey rear extension of the following dimensions: Depth of proposed extension from rear wall of original dwellinghouse: 4m Maximum height of proposed extension: 4m Height to eaves of proposed extension: 3m

Pending Consideration · n/a · Portal
Received Never
Dwellings n/a

Construction of a two storey end terrace dwelling attached to the side of No 1 Greenwood Road

Pending Consideration · n/a · Portal
Received Never
Dwellings n/a

Use dwelling (C3) as residential care accommodation (C2) for up to four young persons.

Show full description
Use of dwellinghouse (Class C3) to provide residential care accommodation (Class C2) for upto 4 young persons and 4 staff
Pending Consideration · n/a · Portal
Received Never
Dwellings n/a

Change of use from public house to Ice cream manufacturer

Pending Consideration · n/a · Portal
Received Never
Dwellings n/a

Outline application for residential development of land for 5 dwellings requesting consideration of appearance, landscaping, layout and scale

Pending Consideration · n/a · Portal
Received Never
Dwellings n/a

Demolition of rear section of Cliff Farm Cottage and of construction of one dwelling

Pending Consideration · n/a · Portal
Received Never
Dwellings n/a

Rendering of whole house, painted white (retrospective)

Pending Consideration · n/a · Portal
Received Never
Dwellings n/a

Outline application for residential development of land for 120 dwellings requesting consideration of access

Pending Consideration · n/a · Portal
Received Never
Dwellings n/a

Change of use from single dwelling (Use Class C3) to children's care home (C2) for upto two children

Pending Consideration · n/a · Portal
Received Never
Dwellings n/a

Conversion of Grade II listed mill building to form 14 residential apartments

Pending Consideration · n/a · Portal
Received Never
Dwellings n/a

T1) Lift multi stemmed Cedar over the outside public path. T2) Lift low branches on the Oak tree to clear the hedge by 1m. To generally tidy and reclaim overgrown areas which have self seeded, and threaten to overcrowd the garden beyond control in maturity: G1) Clear the area behind the South east boundary of fallen trees to clear the gardens access path behind the summerhouse. G2) Remove 8x small self seeded Holly, Beech and Yew from the area directly behind the summerhouse. T3) Remove self seeded Beech tree and T4) dead Acer in the south east corner of the lawn. G3) Remove the tall whippy group of Holly within the bed on the east edge bed of the lawn. G4) On the corner of the bed next to G3, remove mixed merged group of Beech, Holly and several dead little trees. T5) Remove self seeded Willow growing against the mature Oak on the north edge of the car park. T6) Remove tall Beech tree with bend and growth abnormality near the base in the woodland area, north west corner of the car park. As these are all self seeded saplings or very young, request not to replace due to lack of suitable space and large population of well established trees present around the property.

Pending Consideration · n/a · Portal
Received Never
Dwellings n/a

Construction of detached dwelling

Pending Consideration · n/a · Portal
Received Never
Dwellings n/a

Conversion of garage into home office

Pending Consideration · n/a · Portal
Received Never
Dwellings n/a

Conversion of offices to 5 No self-contained flats at first and second floors including the replacement of timber widows with uPVC frames. Replacement of existing timber shopfront windows to the ground floor with aluminium frames.

Pending Consideration · n/a · Portal
Received Never
Dwellings n/a

Convert Grade II listed mill into 14 residential apartments (retrospective).

Show full description
Conversion of Grade II listed mill building to form 14 residential apartments (retrospective)
Pending Consideration · n/a · Portal
Received Never
Dwellings n/a

Change of use of existing dwelling (C3) into care home (C2), single storey side and rear extension and garage conversion

Pending Consideration · n/a · Portal
Received Never
Dwellings n/a

Change of use from dwelling (C3) into care home (C2) for 3No. children and 2 carers working rota basis

Pending Decision · n/a · Portal
Received Never
Dwellings n/a

Construction of single storey rear extension of the following dimensions: Depth of proposed extension from rear wall of original dwellinghouse: 6m Maximum height of proposed extension: 4m Height to eaves of proposed extension: 3m

Pending Consideration · n/a · Portal
Received Never
Dwellings n/a

Construction of single storey rear extension of the following dimensions: Depth of proposed extension from rear wall of original dwellinghouse: 6m Maximum height of proposed extension: 3m Height to eaves of proposed extension: 3m

Pending Consideration · n/a · Portal
Received Never
Dwellings n/a

Retention of boxing gym in part of ground floor and the creation of two new flats in part of ground floor and first floor

Pending Decision · n/a · Portal
Received Never
Dwellings n/a

Construction of single storey rear extension of the following dimensions: Depth of proposed extension from rear wall of original dwellinghouse: 6m Maximum height of proposed extension: 3.9m Height to eaves of proposed extension: 2.8m

Pending Consideration · n/a · Portal
Received Never
Dwellings n/a

Construction of single storey rear extension of the following dimensions: Depth of proposed extension from rear wall of original dwellinghouse: 4.00m Maximum height of proposed extension: 2.7m Height to eaves of proposed extension: 2.6m

Pending Consideration · n/a · Portal
Received Never
Dwellings n/a

Construction of single storey rear extension of the following dimensions: Depth of proposed extension from rear wall of original dwellinghouse: 6.00m Maximum height of proposed extension: 4.00m Height to eaves of proposed extension: 3.00m

Pending Consideration · n/a · Portal
Received Never
Dwellings n/a

Change of use from single dwelling (Use Class C3) to children's care home (C2) for upto two children with two carers working on a rota basis

Unknown · n/a · Portal
Received Never
Dwellings n/a

Construction of single storey rear extension of the following dimensions: Depth of proposed extension from rear wall of original dwellinghouse: 6m Maximum height of proposed extension: 4m Height to eaves of proposed extension: 2.5m

Pending Consideration · n/a · Portal
Received Never
Dwellings n/a

Construction of single storey rear extension of the following dimensions: Depth of proposed extension from rear wall of original dwelling house: 3.5m Maximum height of proposed extension: 4.0m Height to eaves of proposed extension: 3.0m

Pending Consideration · n/a · Portal
Received Never
Dwellings n/a

Construction of nine new residential dwellings.

Show full description
Construction of 9 no. residential dwellings
Unknown · n/a · Portal
Received Never
Dwellings n/a

Construction of single storey rear extension of the following dimensions: Depth of proposed extension from rear wall of original dwellinghouse: 6m Maximum height of proposed extension: 4m Height to eaves of proposed extension: 2.5m

Pending Consideration · n/a · Portal
Received Never
Dwellings n/a

Single storey extension to public house to form kiosks, WCs and ancillary back-of-house; creation of managed external beer garden with fixed daytime performance stage and outdoor screen, seating, lighting, first floor roof patio, boundary treatments and associated works

Pending Consideration · n/a · Portal
Received Never
Dwellings n/a

Construction of a detached dwelling

Pending Consideration · n/a · Portal
Received Never
Dwellings n/a

Replace garden office with single-storey residential annexe.

Show full description
Construction of a single-storey residential annexe to replace a single-storey office building in the garden
Pending Consideration · n/a · Portal
Received Never
Dwellings n/a

Construction of one detached dwelling and associated works

Pending Consideration · n/a · Portal
Received Never
Dwellings n/a

Installation of 4no. outdoor floodlit padel courts (2 covered) including necessary groundworks, re-configuration of grass tennis courts with new grass tournament court and 3no. hard surfaced floodlit tennis courts. Reconfiguration of clubhouse and improvements to site layout including new site entrance boulevard, re-surfacing and new circular link road, reconfiguration and introduction of new site car parking

Pending Consideration · n/a · Portal
Received Never
Dwellings n/a

Construction of single storey rear extension of the following dimensions: Depth of proposed extension from rear wall of original dwellinghouse: 4 metres Maximum height of proposed extension: 4 metres Height to eaves of proposed extension: 3 metres

Pending Consideration · n/a · Portal
Received Never
Dwellings n/a

First floor extension to rear and conversion of first and second floors to a 7-bedroom House in Multiple Occupation (HMO) including bicycle and bin storage to rear

Pending Consideration · n/a · Portal
Received Never
Dwellings n/a

Use of a dwelling (C3a) as a children's home for up to three children (C2), with a manager and three carers, two of whom will sleep overnight, working on a rota basis

Pending Consideration · n/a · Portal
Received Never
Dwellings n/a

Construction of dwelling

Pending Consideration · n/a · Portal
Received Never
Dwellings n/a

Construction of single storey rear extension of the following dimensions: Depth of proposed extension from rear wall of original dwelling house: 5.5m Maximum height of proposed extension: 4m Height to eaves of proposed extension: 3m

Pending Consideration · n/a · Portal
Received Never
Dwellings n/a

Demolition of existing sun room. Construction of 2No new dormers and porch extension to north-western elevation. Addition of rendered finish to existing dwellinghouse and pitched roof to existing garage incorporating solar panels to the south elevation

Pending Consideration · n/a · Portal
Received Never
Dwellings n/a

New windows to dwelling. Construction of pergola to flat roof of garage and pedestrian connecting link

Pending Consideration · n/a · Portal
Received Never
Dwellings n/a

Construction of single storey rear extension of the following dimensions: Depth of proposed extension from rear wall of original dwellinghouse: 4m Maximum height of proposed extension: 4m Height to eaves of proposed extension: 3m

Pending Consideration · n/a · Portal
Received Never
Dwellings n/a

Construction of single storey rear extension of the following dimensions: Depth of proposed extension from rear wall of original dwellinghouse: 4.5m Maximum height of proposed extension: 3.8m Height to eaves of proposed extension: 2.5m

Pending Consideration · n/a · Portal
Received Never
Dwellings n/a

Conversion of an existing two storey commercial building into 8 x 1 bedroom flats

Pending Consideration · n/a · Portal
Received Never
Dwellings n/a

Construction of one detached dwelling along with garage and associated works