← Bradford Metropolitan District Council

Status

Pending Consideration Change of use
Received
Not recorded
New homes
0

Full proposal

Change of use of ground floor pub to residential use

Documents

AGENT COMMENT ON PARISH COMMENTS
Supporting Information
Not yet archived · Original link
APPLICATION FORM REDACTED
Application Form
Not yet archived · Original link
ARBORICULTURAL IMPACT ASSESSMENT
Supporting Information
Not yet archived · Original link
BIODIVERSITY NET GAIN ASSESSMENT
Supporting Information
Not yet archived · Original link
CIL FORM 1: ADDITIONAL INFORMATION
Application Form
Not yet archived · Original link
COAL MINING STABILITY RISK ASSESSMENT
Supporting Information
Not yet archived · Original link
CONSULTEE: DRAINAGE CONSULTATIONS
Consultee Comment
Not yet archived · Original link
EXISTING DETAIL PLAN
Drawing
Not yet archived · Original link
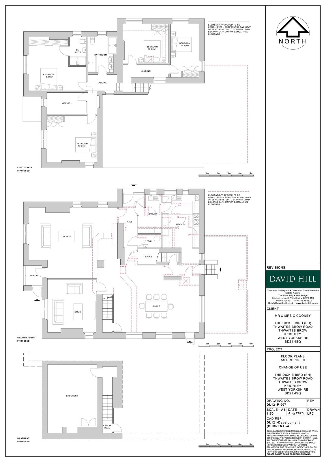
EXISTING FLOOR PLANS
Drawing
Not yet archived · Original link
Drawing
Archived · Original link
HIGHWAYS CONSULTATION RESPONSE
Consultee Comment
Not yet archived · Original link
HIGHWAYS CONSULTATION RESPONSE
Consultee Comment
Not yet archived · Original link
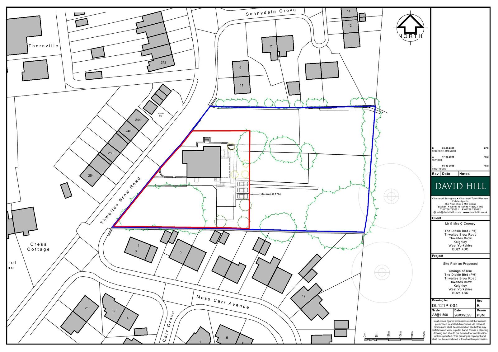
LOCATION PLANS
Drawing
Not yet archived · Original link
MRS ELIZABETH BECKWITH
Consultee Comment
Not yet archived · Original link
PLANNING, DESIGN AND ACCESS STATEMENT
Supporting Information
Not yet archived · Original link
PROPOSED DETAIL PLAN
Drawing
Not yet archived · Original link
Drawing
Archived · Original link
Drawing
Archived · Original link
SITE NOTICE
Publicity
Not yet archived · Original link
STATUTORY BIODIVERSITY METRIC- FORMER DICKIE BIRD PUB
Supporting Information
Not yet archived · Original link
TRANSPORT STATEMENT
Supporting Information
Not yet archived · Original link

Have your say

Your comment matters. Councils must consider every representation that raises material planning considerations.

Write a comment