← Bradford Metropolitan District Council

Status

Pending Consideration New housing
Received
Not recorded
New homes
8

Full proposal

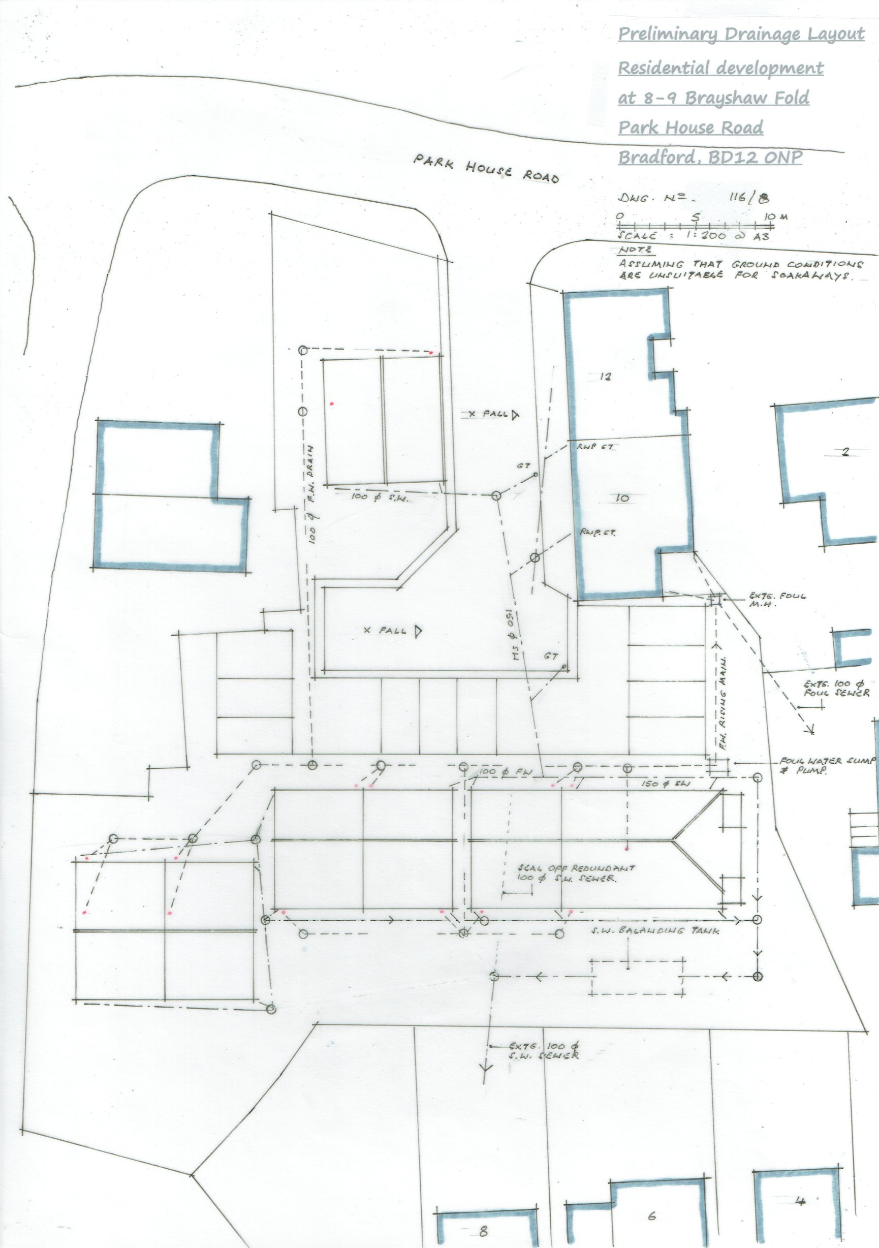
Construction of residential development - 1 x 3 bed detached house, 2 x 2 bed flats, 3 x 2 bed semi-detached houses and 2 x 3 bed semi-detached houses

Documents

APPLICATION FORM
Application Form
Not yet archived · Original link
BNG METRIC
Supporting Information
Not yet archived · Original link
CIL FORM 1: ADDITIONAL INFORMATION
Application Form
Not yet archived · Original link
CONSULTEE: CHRIS HUGHES - WEST YORKSHIRE POLICE - DOCO
Consultee Comment
Not yet archived · Original link
CONSULTEE: CIL OFFICER
Consultee Comment
Not yet archived · Original link
DESIGN AND ACCESS STATEMENT
Supporting Information
Not yet archived · Original link
LOCATION PLAN
OS Extract
Not yet archived · Original link
PLOT 1 PLAN, ELEVATIONS AND SECTION
Drawing
Not yet archived · Original link
PLOTS 2, 3 AND 4 PLAN, ELEVATIONS AND SECTION
Drawing
Not yet archived · Original link
PLOTS 5 AND 6 PLAN AND ELEVATIONS
Drawing
Not yet archived · Original link
PLOTS 7 AND 8 PLAN AND ELEVATIONS
Drawing
Not yet archived · Original link
PRELIMINARY ECOLOGICAL APPRAISAL
Supporting Information
Not yet archived · Original link
SECTIONS
Drawing
Not yet archived · Original link
SITE NOTICE
Publicity
Not yet archived · Original link
Drawing
Archived · Original link
Drawing
Archived · Original link
SITE SURVEY PLAN
Drawing
Not yet archived · Original link

Have your say

Your comment matters. Councils must consider every representation that raises material planning considerations.

Write a comment