← Bradford Metropolitan District Council
25/04522/FUL
Bradford Metropolitan District Council
Status
Pending Consideration
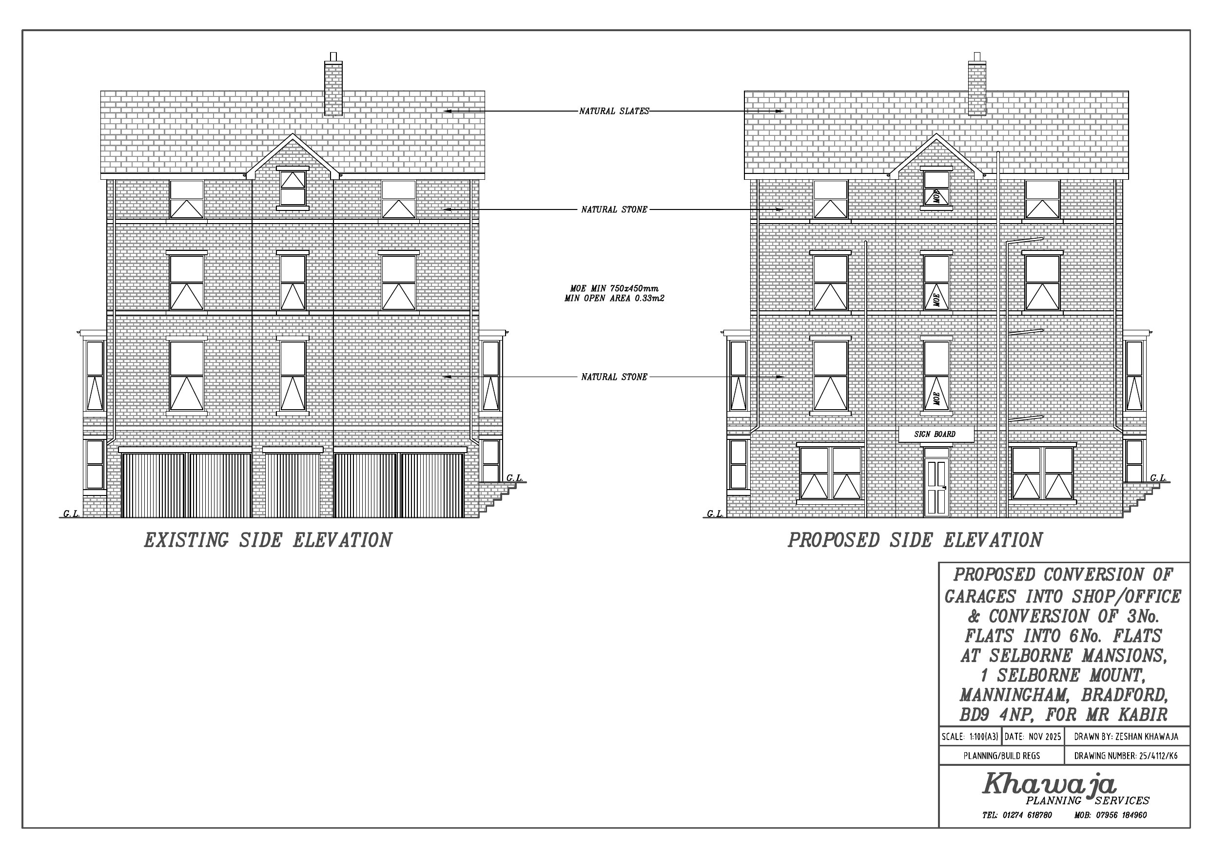
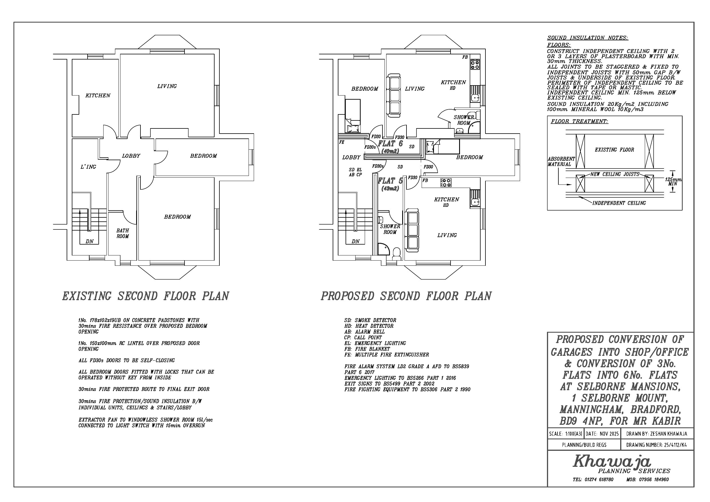
Change of use
Received
Not recorded
New homes
3
Full proposal
Conversion of garages into shop/office and conversion of 3 No self-contained apartments into 6 No self-contained apartments
Documents
Have your say
Your comment matters. Councils must consider every representation that raises material planning considerations.