← Bradford Metropolitan District Council
25/04624/HOU
Bradford Metropolitan District Council
Status
Pending Consideration
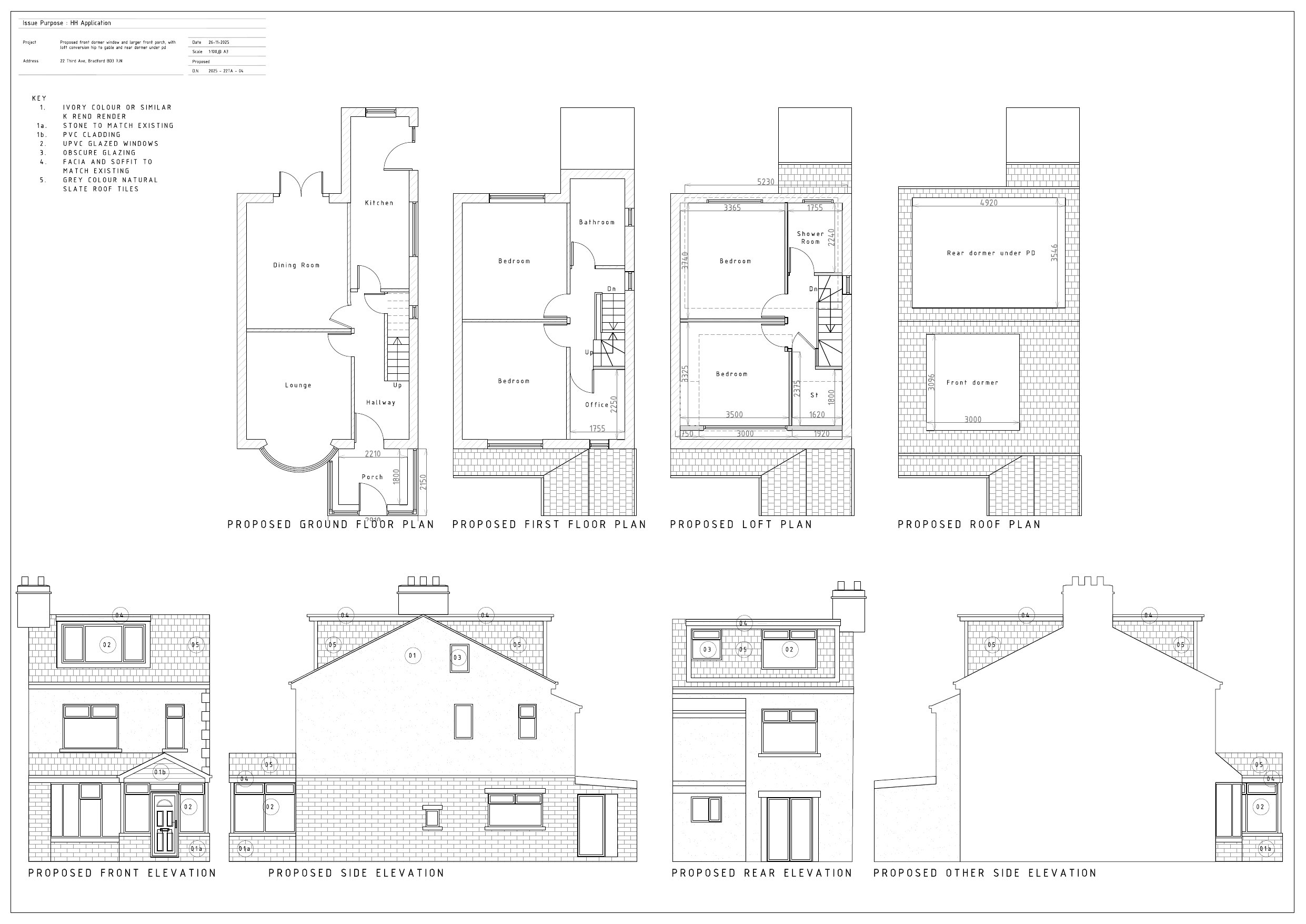
House extension
Received
Not recorded
New homes
0
Full proposal
Hip to gable roof extension with dormer windows to front and rear and porch to front.
Documents
Have your say
Your comment matters. Councils must consider every representation that raises material planning considerations.