← Bradford Metropolitan District Council

Status

Pending Consideration Commercial
Received
Not recorded
New homes
0

Full proposal

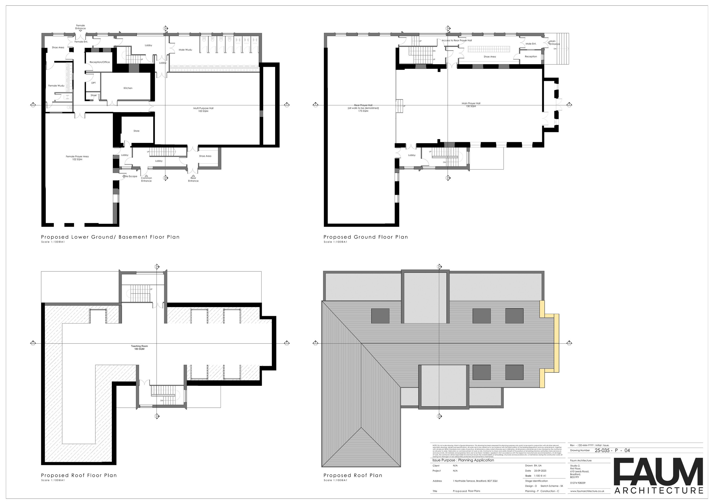
Alteration of existing eaves and roof forms to create one integral L-shaped building with addition of dormer windows and rooflights; single storey, two storey and three storey flat roof extensions to west elevation; two storey and three storey flat roof extensions to east elevation with new access steps to south elevation to improve the quality, capacity and functionality of the existing facility

Documents

APPLICATION FORM REDACTED
Application Form
Not yet archived · Original link
CONSULTEE: CHRIS HUGHES - WEST YORKSHIRE POLICE - DOCO
Consultee Comment
Not yet archived · Original link
EXISTING AND PROPOSED SECTIONS
Drawing
Not yet archived · Original link
EXISTING ELEVATIONS
Drawing
Not yet archived · Original link
EXISTING FLOOR PLANS
Drawing
Not yet archived · Original link
LOCATION PLAN
OS Extract
Not yet archived · Original link
PROPOSED 3D VIEWS 01
Drawing
Not yet archived · Original link
PROPOSED 3D VIEWS 02
Drawing
Not yet archived · Original link
PROPOSED ELEVATIONS
Drawing
Not yet archived · Original link
Drawing
Archived · Original link
SITE NOTICE
Publicity
Not yet archived · Original link

Have your say

Your comment matters. Councils must consider every representation that raises material planning considerations.

Write a comment