← Bradford Metropolitan District Council
26/00138/HOU
Bradford Metropolitan District Council
Status
Pending Decision
House extension
Received
Not recorded
New homes
0
Full proposal
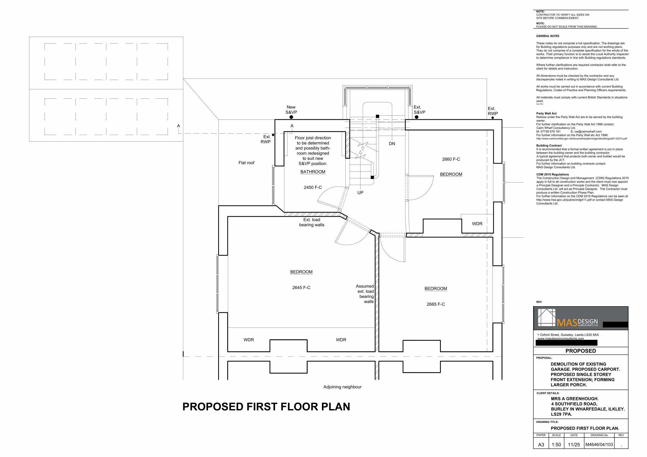
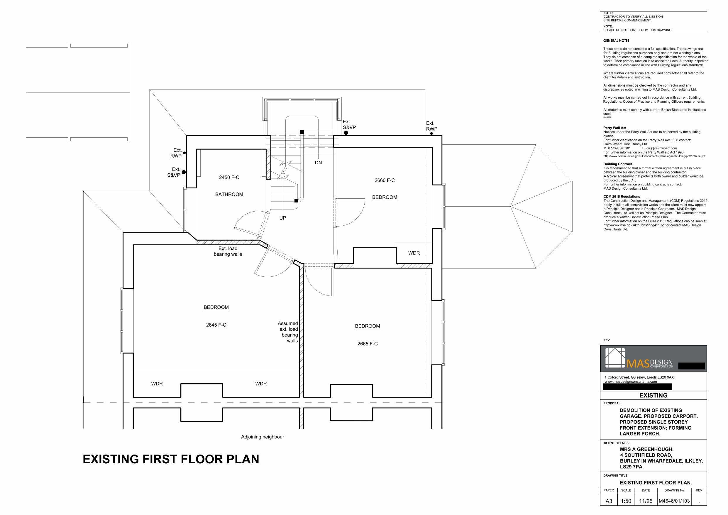
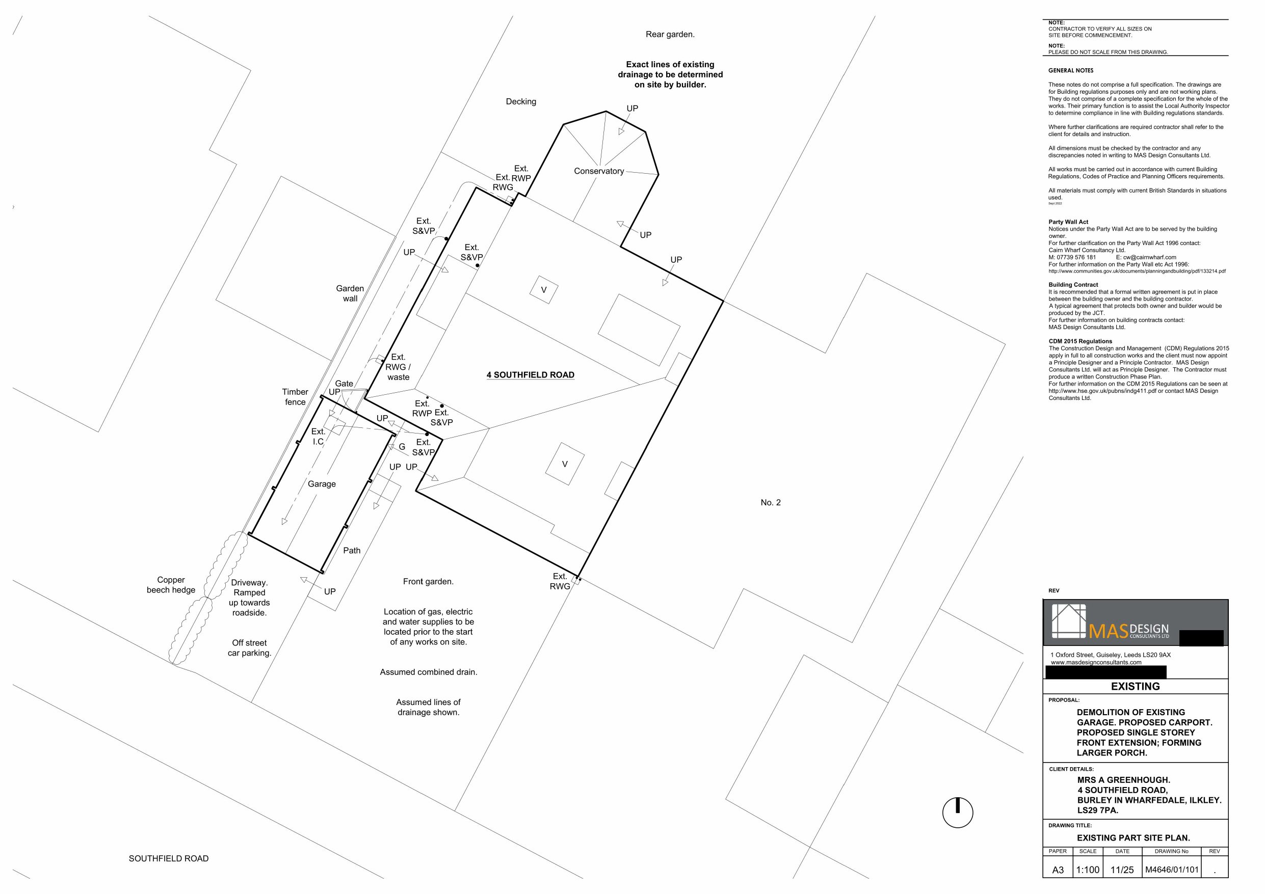
Demolition of existing garage. Construction of car port and single storey front extension to form an enlarged porch
Documents
Have your say
Your comment matters. Councils must consider every representation that raises material planning considerations.