← Bradford Metropolitan District Council

Status

Pending Consideration House extension
Received
Not recorded
New homes
0

Full proposal

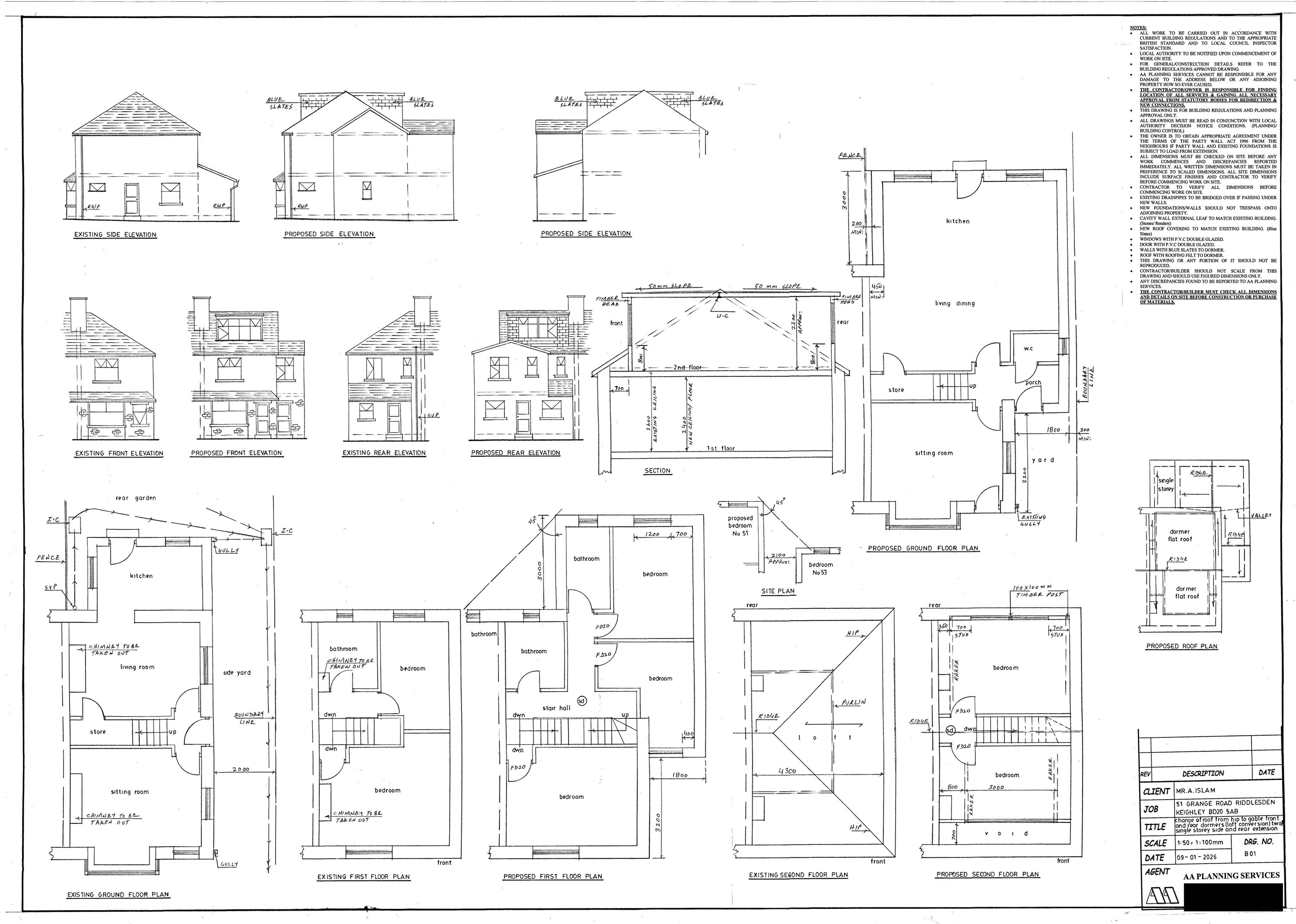
Hip to gable roof alteration with front and rear dormers. Two storey side extension. Part two storey and part single storey rear extension.

Documents

Application Form
Archived · Original link
Consultee Comment
Archived · Original link
OS Extract
Archived · Original link

Have your say

Your comment matters. Councils must consider every representation that raises material planning considerations.

Write a comment