← Bradford Metropolitan District Council

Status

Pending Consideration Demolition
Received
Not recorded
New homes
0

Full proposal

Demolition of existing dwelling, and construction of new replacement dwelling

Documents

APPLICATION FORM REDACTED
Application Form
Not yet archived · Original link
ARBORICULTURAL IMPACT ASSESSMENT AND METHOD STATEMENT
Supporting Information
Not yet archived · Original link
BAT SCOPING SURVEY LETTER REPORT
Supporting Information
Not yet archived · Original link
COVERING LETTER
Supporting Information
Not yet archived · Original link
EXISTING AND PROPOSED SECTIONAL STREET ELEVATIONS
Drawing
Not yet archived · Original link
LOCATION PLAN
OS Extract
Not yet archived · Original link
PROPOSED ELEVATIONS
Drawing
Not yet archived · Original link
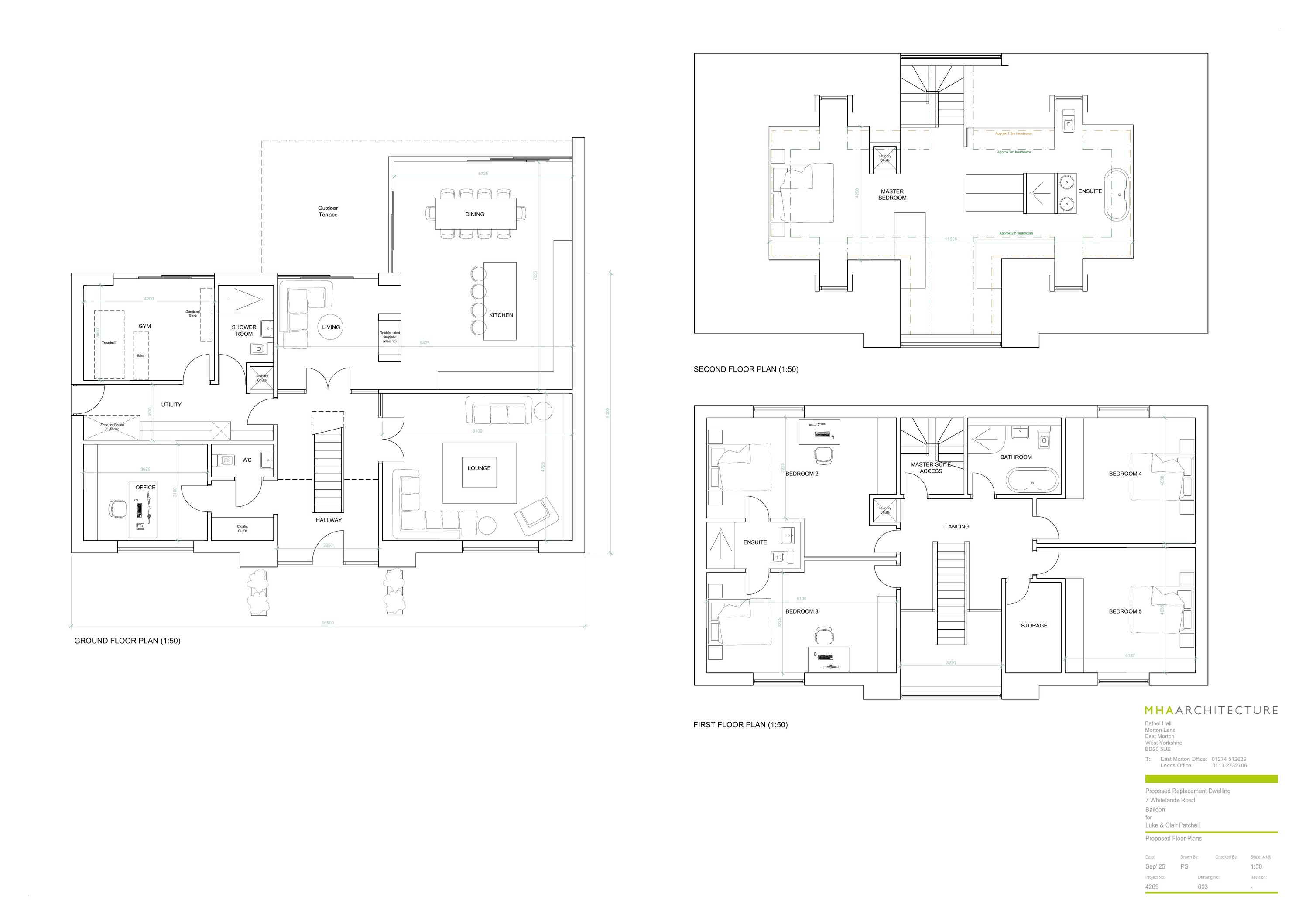
Drawing
Archived · Original link

Have your say

Your comment matters. Councils must consider every representation that raises material planning considerations.

Write a comment