← Bradford Metropolitan District Council

Status

Pending Consideration House extension
Received
Not recorded
New homes
0

Full proposal

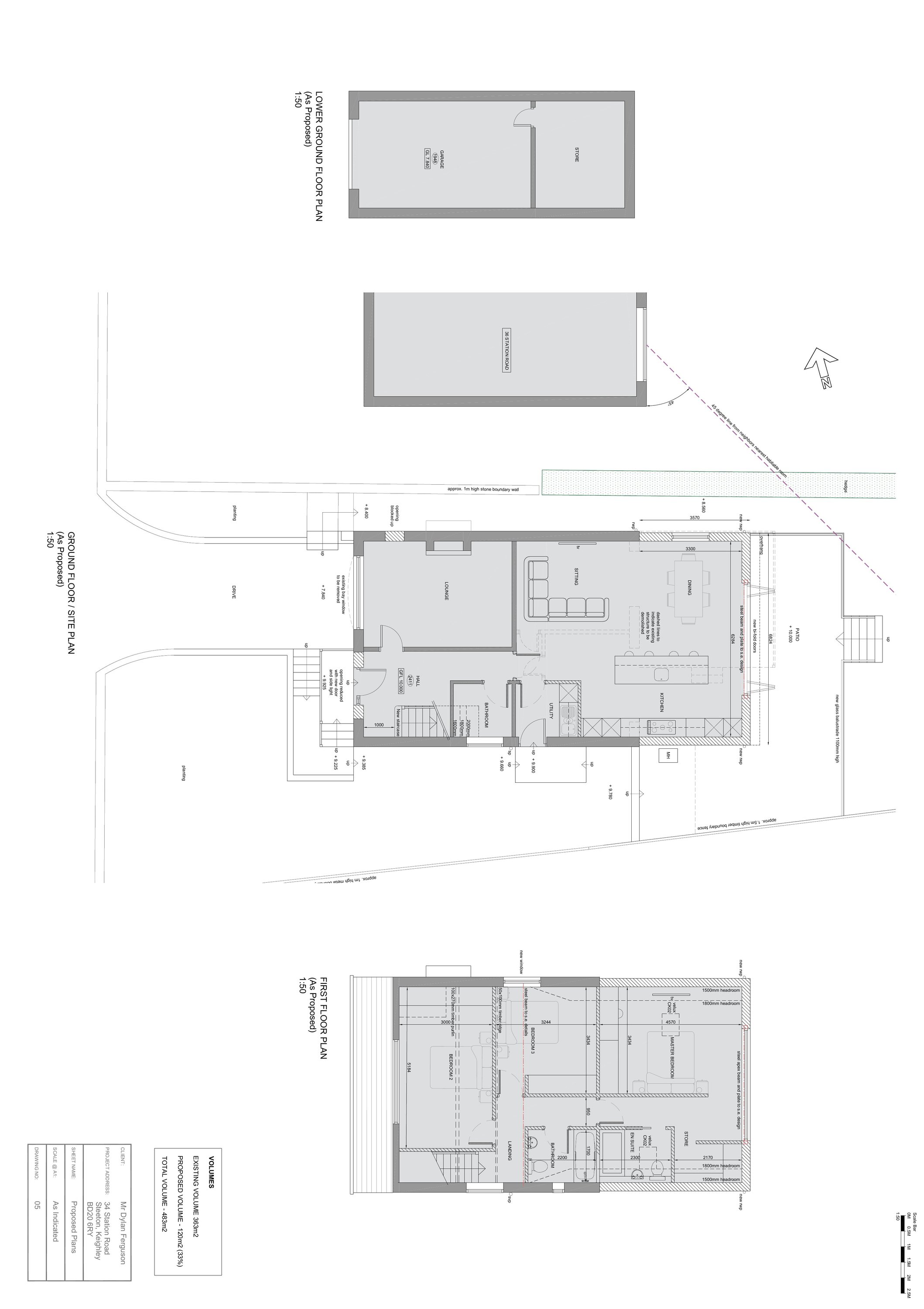
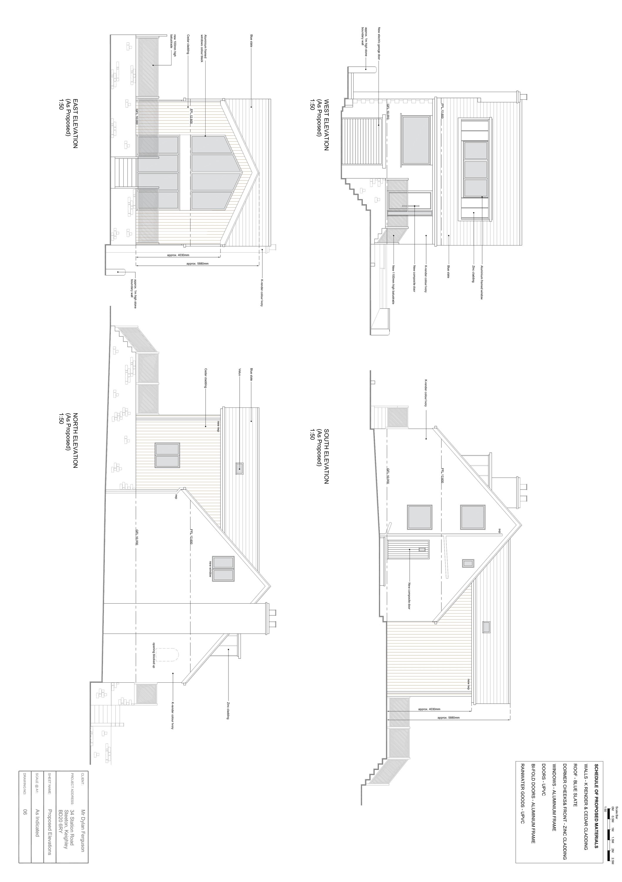
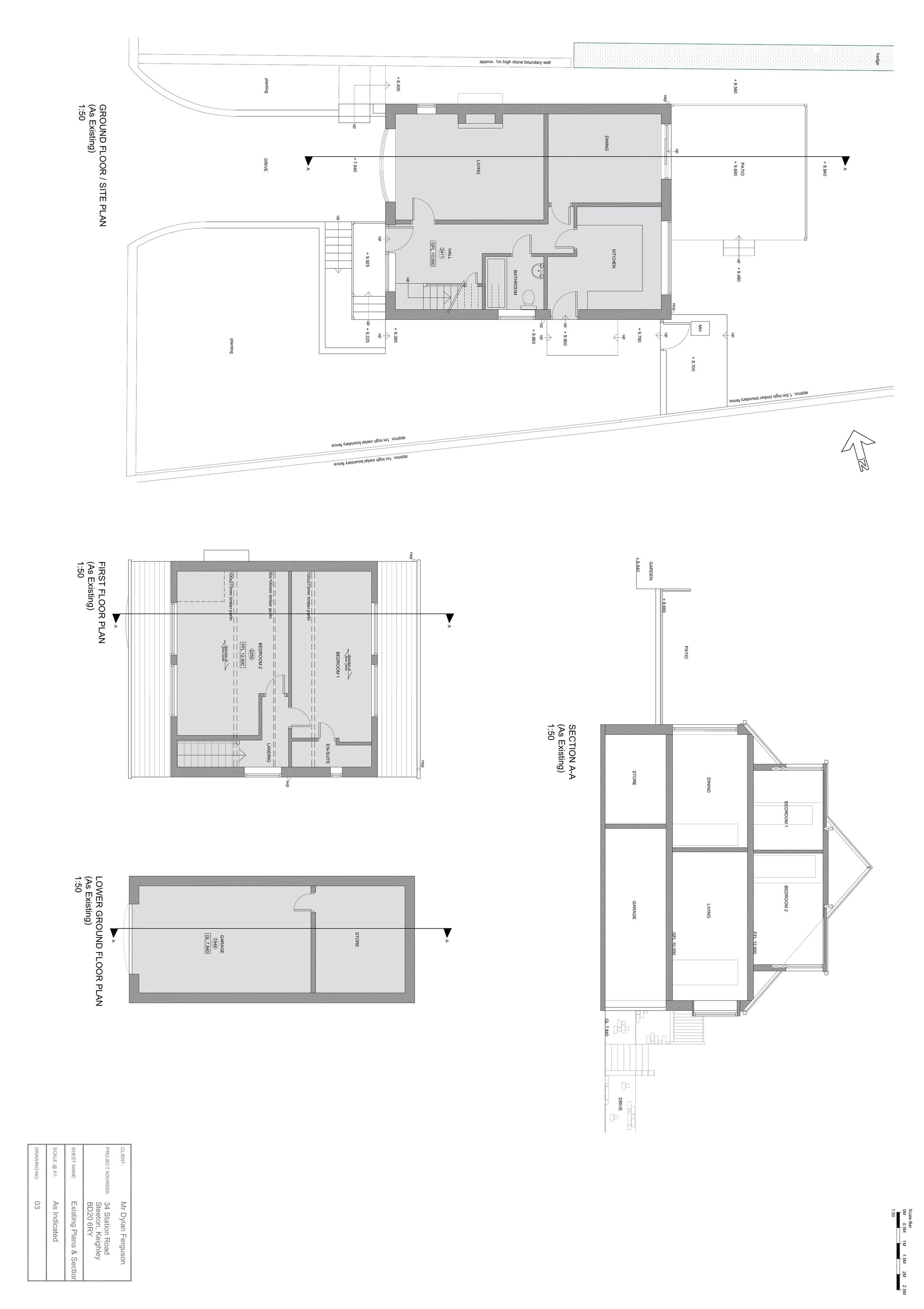
Two storey rear extension. Raised platform to side and rear. New balustrade to front entrance. Remodelling of the existing property to include alterations to existing front dormer, insertion of new first floor window to the side (north) gable, replacement of windows and doors throughout, changes to the roofing and walling materials

Documents

Application Form
Archived · Original link
Drawing
Archived · Original link
Drawing
Archived · Original link
Supporting Information
Archived · Original link
OS Extract
Archived · Original link
Consultee Comment
Archived · Original link
Drawing
Archived · Original link
Drawing
Archived · Original link

Have your say

Your comment matters. Councils must consider every representation that raises material planning considerations.

Write a comment