← Bradford Metropolitan District Council

Status

Pending Decision House extension
Received
Not recorded
New homes
0

Full proposal

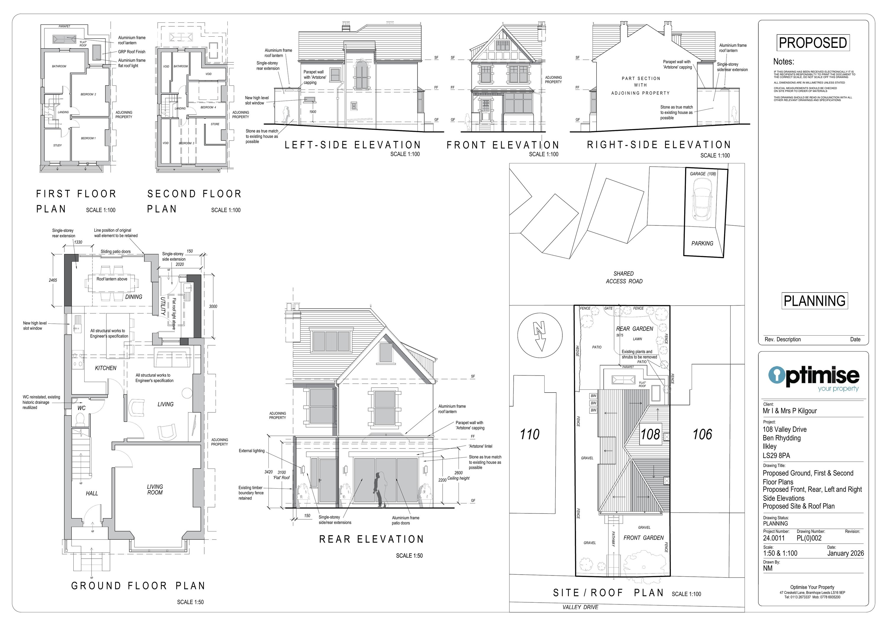
Partial demolition of existing lean-to. Construction of single storey rear extensions

Documents

Application Form
Archived · Original link
Consultee Comment
Archived · Original link
Drawing
Archived · Original link
Planning Officer Report
Archived · Original link

Have your say

Your comment matters. Councils must consider every representation that raises material planning considerations.

Write a comment