← Bradford Metropolitan District Council

Status

Pending Consideration House extension
Received
Not recorded
New homes
0

Full proposal

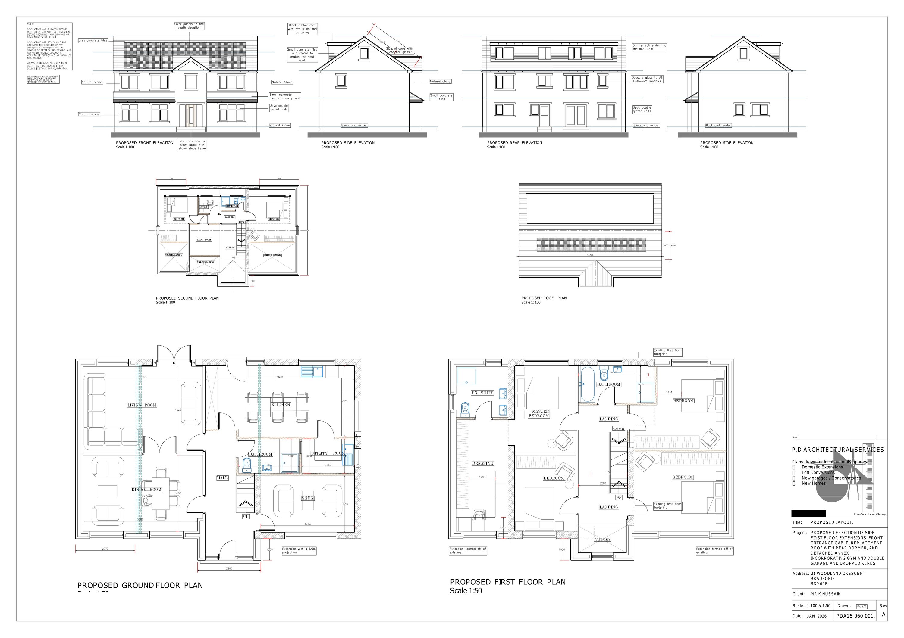
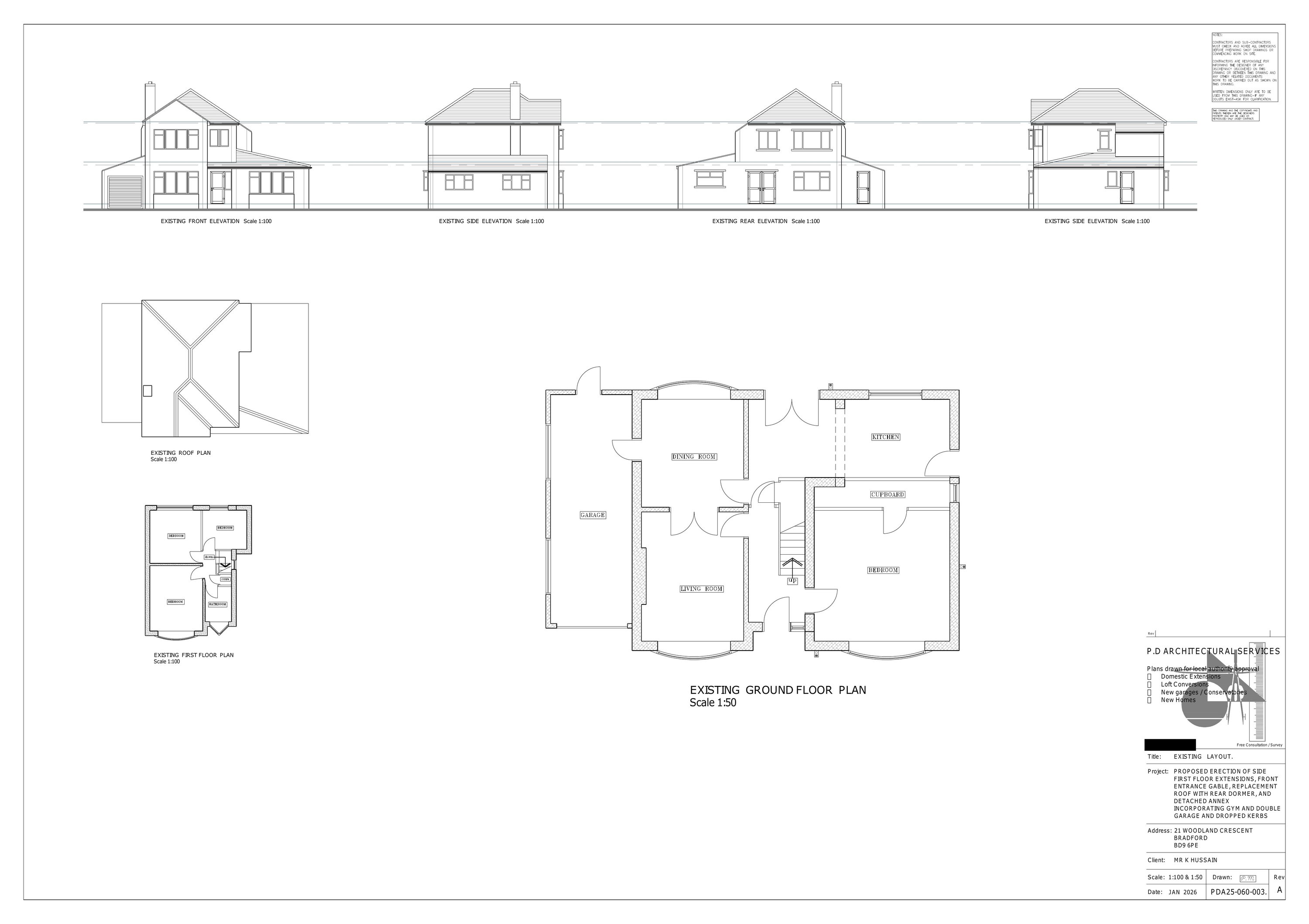
Erection of first floor side extension, two storey front extension, rear dormer, detached annex and dropped kerb.

Documents

Application Form
Archived · Original link
Supporting Information
Archived · Original link
OS Extract
Archived · Original link
Supporting Information
Archived · Original link

Have your say

Your comment matters. Councils must consider every representation that raises material planning considerations.

Write a comment