← Bradford Metropolitan District Council
26/00269/HOU
Bradford Metropolitan District Council
Status
Pending Consideration
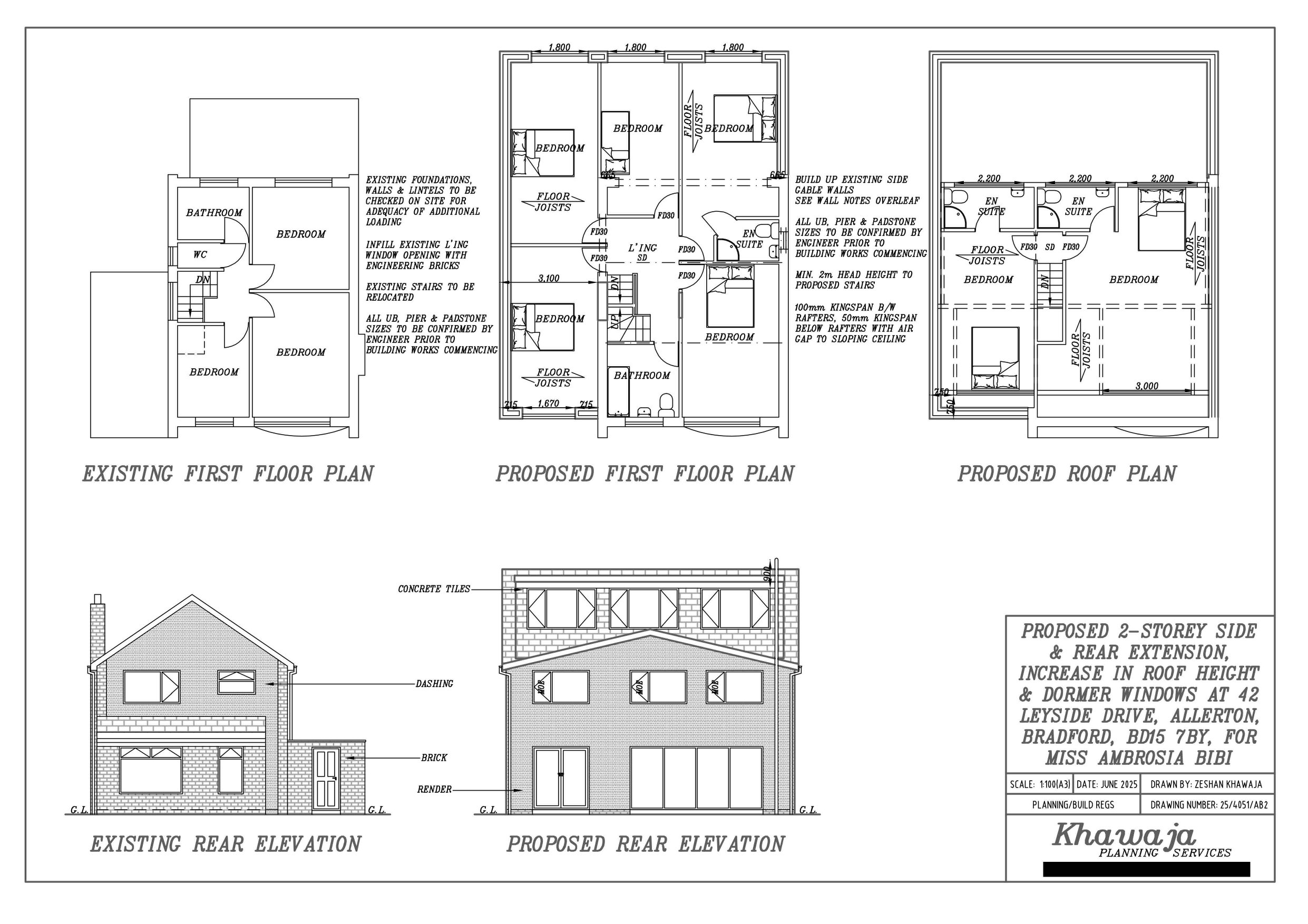
House extension
Received
Not recorded
New homes
0
Full proposal
Two storey side and rear extension, raise in roof height with front and rear dormer windows
Documents
Have your say
Your comment matters. Councils must consider every representation that raises material planning considerations.