← Bradford Metropolitan District Council

Status

Pending Consideration New housing
Received
Not recorded
New homes
1

Full proposal

Demolition of existing former care home and construction of a detached dwelling with associated access, parking, private amenity space, and soft landscaping

Documents

APPLICATION FORM REDACTED
Application Form
Not yet archived · Original link
ARBORICULTURAL IMPLICATIONS ASSESSSMENT
Supporting Information
Not yet archived · Original link
ARBORICULTURAL METHOD STATEMENT
Supporting Information
Not yet archived · Original link
BAT EMERGENCE SURVEY REPORT
Supporting Information
Not yet archived · Original link
DESIGN AND ACCESS STATEMENT
Supporting Information
Not yet archived · Original link
DRAINAGE PLAN
Drawing
Not yet archived · Original link
ECOLOGICAL EXEMPTION ASSESSMENT
Supporting Information
Not yet archived · Original link
EXISTING PLANS AND ELEVATIONS
Drawing
Not yet archived · Original link
Drawing
Archived · Original link
FLOOD RISK ASSESSMENT
Supporting Information
Not yet archived · Original link
HERITAGE STATEMENT
Supporting Information
Not yet archived · Original link
MAPS
Supporting Information
Not yet archived · Original link
MAPS
Supporting Information
Not yet archived · Original link
MAPS
Supporting Information
Not yet archived · Original link
PRELIMINARY ECOLOGICAL APPRAISAL REPORT
Supporting Information
Not yet archived · Original link
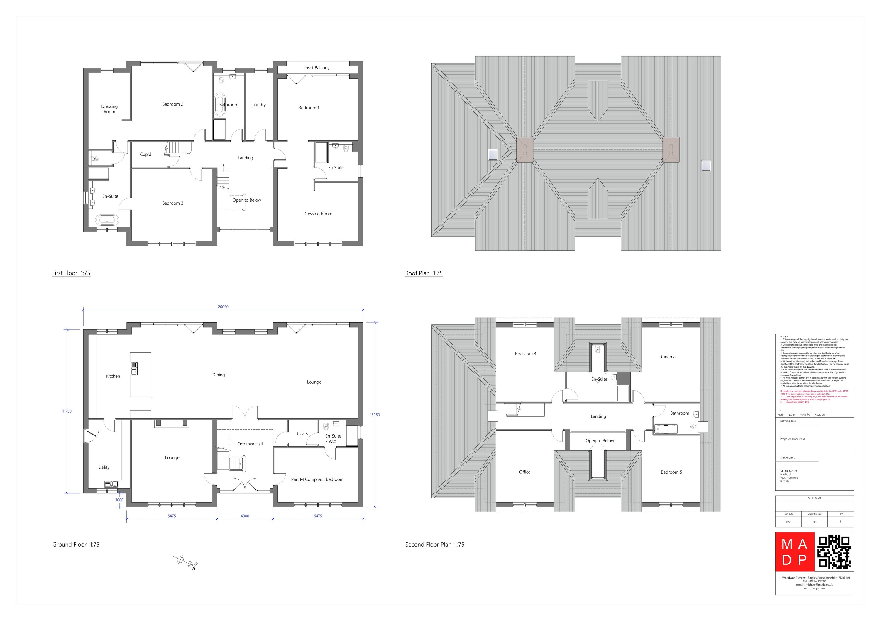
PROPOSED ELEVATIONS
Drawing
Not yet archived · Original link
Drawing
Archived · Original link
Drawing
Archived · Original link
Drawing
Archived · Original link

Have your say

Your comment matters. Councils must consider every representation that raises material planning considerations.

Write a comment