← Bradford Metropolitan District Council
26/00306/HOU
Bradford Metropolitan District Council
Status
Pending Consideration
House extension
Received
Not recorded
New homes
0
Full proposal
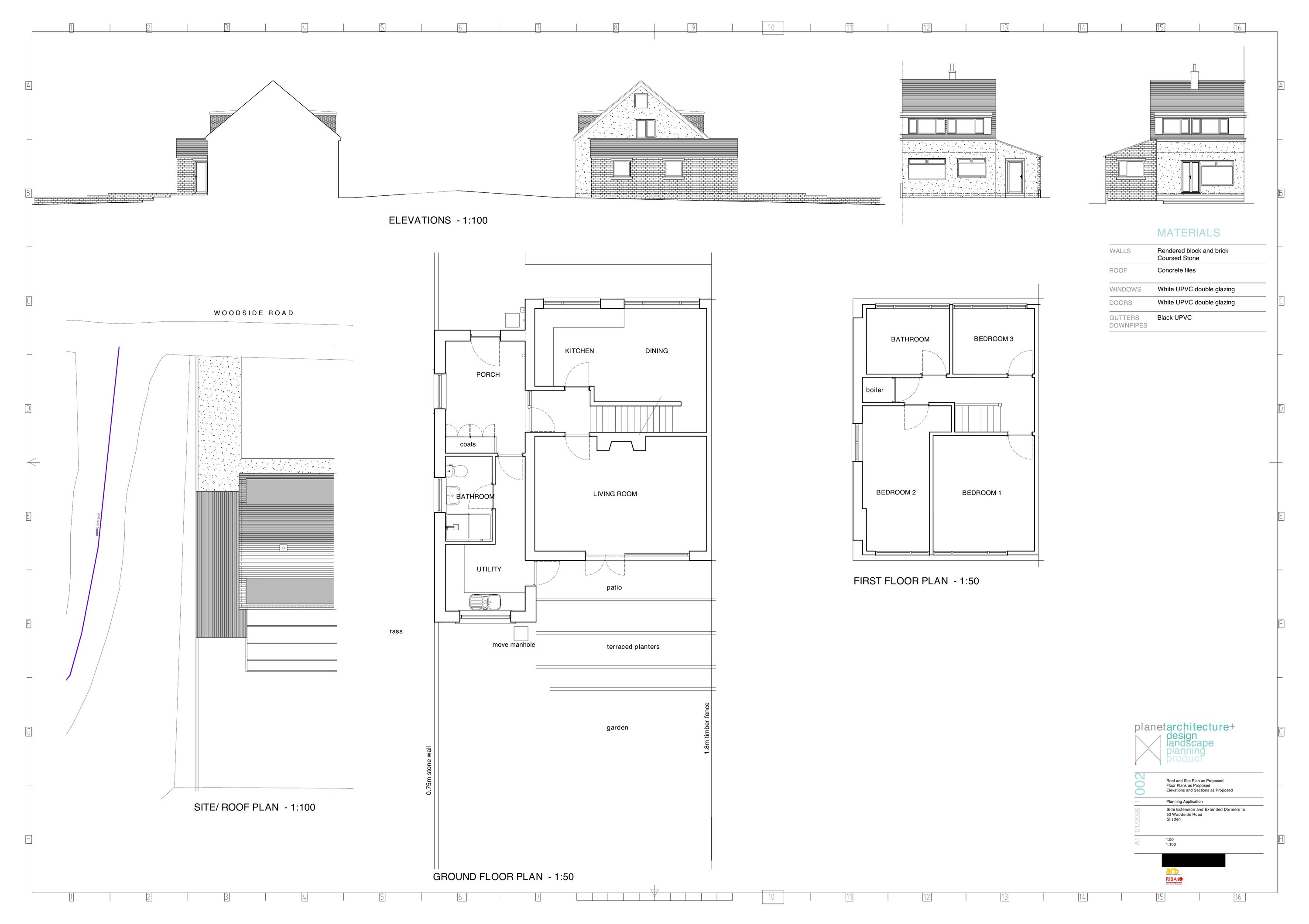
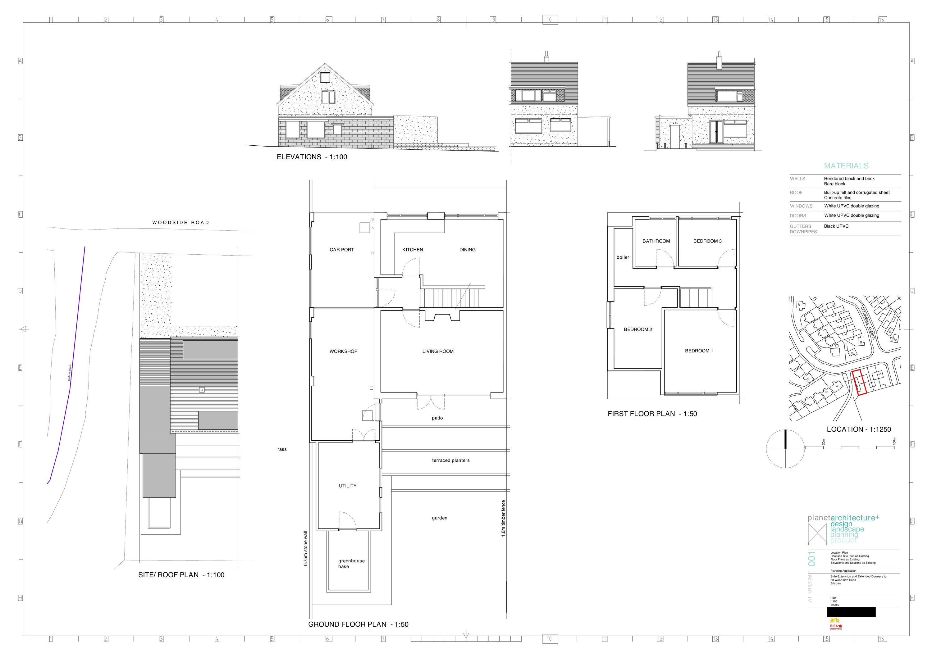
Demolition of existing side extension. Construction of single storey side extension. Enlargement of existing front and rear dormers
Documents
Have your say
Your comment matters. Councils must consider every representation that raises material planning considerations.