← Bradford Metropolitan District Council

Status

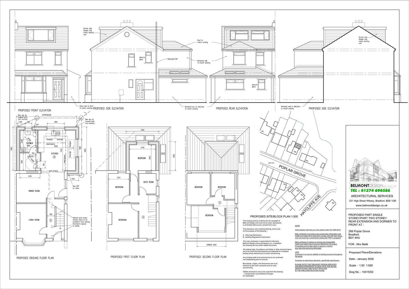
Pending Consideration House extension
Received
Not recorded
New homes
0

Full proposal

Part single storey/part two storey rear extension with dormer to front

Documents

Application Form
Archived · Original link
OS Extract
Archived · Original link

Have your say

Your comment matters. Councils must consider every representation that raises material planning considerations.

Write a comment