← Bradford Metropolitan District Council

Status

Pending Consideration Change of use
Received
Not recorded
New homes
0

Full proposal

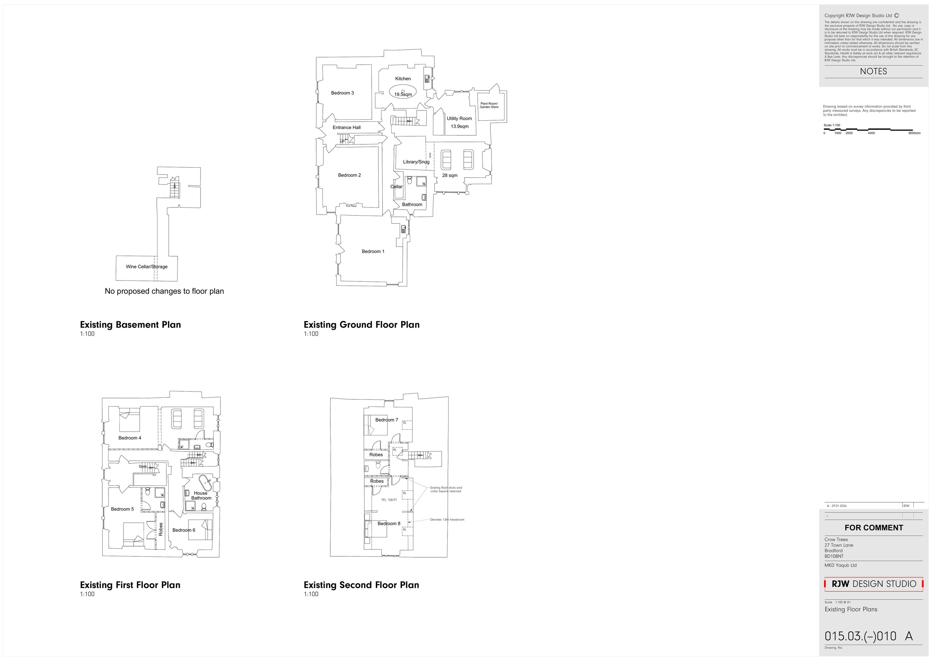
Internal alterations to facilitate the change of use from an 8 bed HMO (sui generis) to 1 No dwelling (Use Class C3) and 7 bed HMO (sui generis) (Retrospective)

Documents

Application Form
Archived · Original link
Supporting Information
Archived · Original link
Drawing
Archived · Original link
OS Extract
Archived · Original link
Publicity
Archived · Original link

Have your say

Your comment matters. Councils must consider every representation that raises material planning considerations.

Write a comment