← Bradford Metropolitan District Council

Status

Pending Consideration House extension
Received
Not recorded
New homes
0

Full proposal

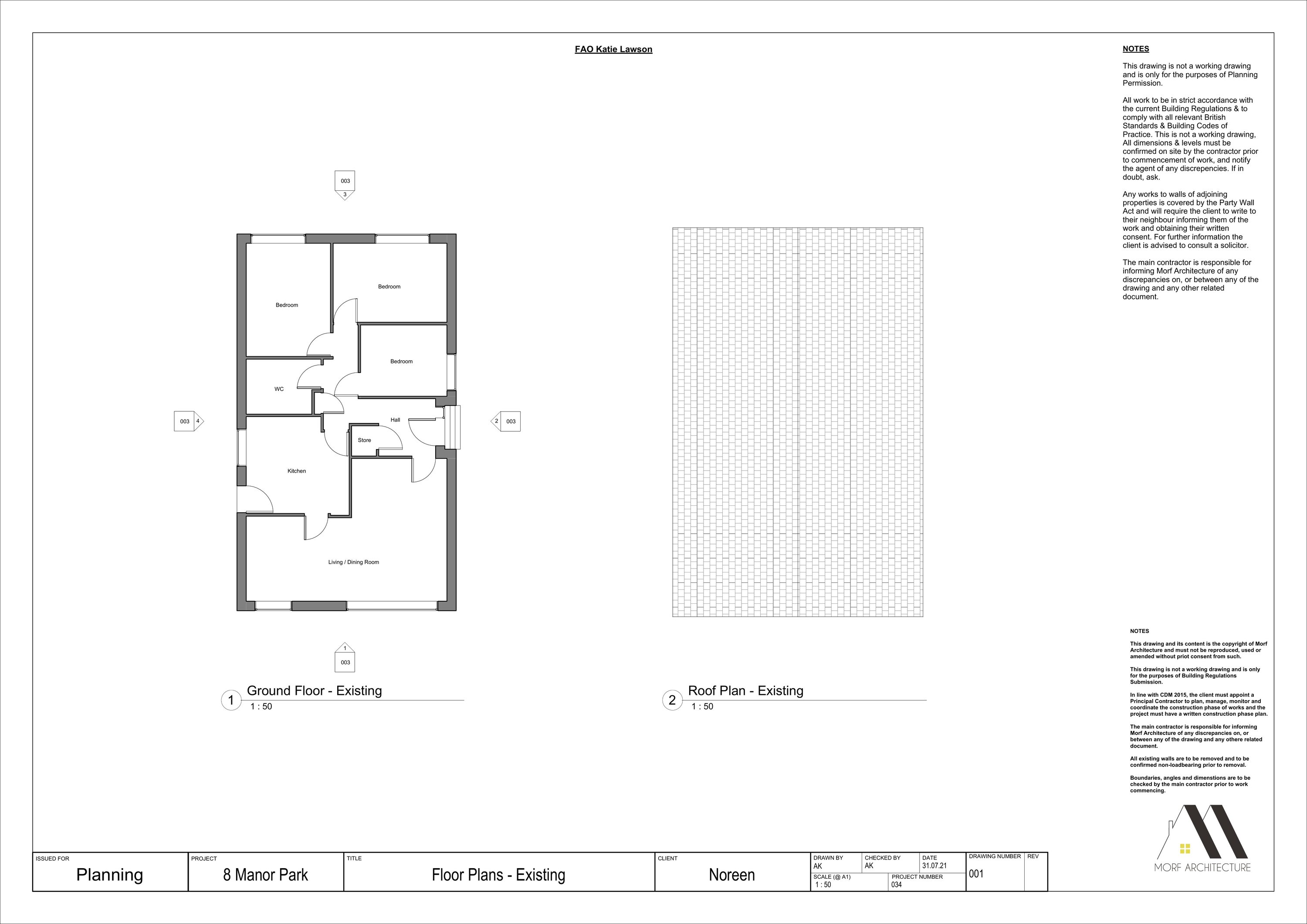
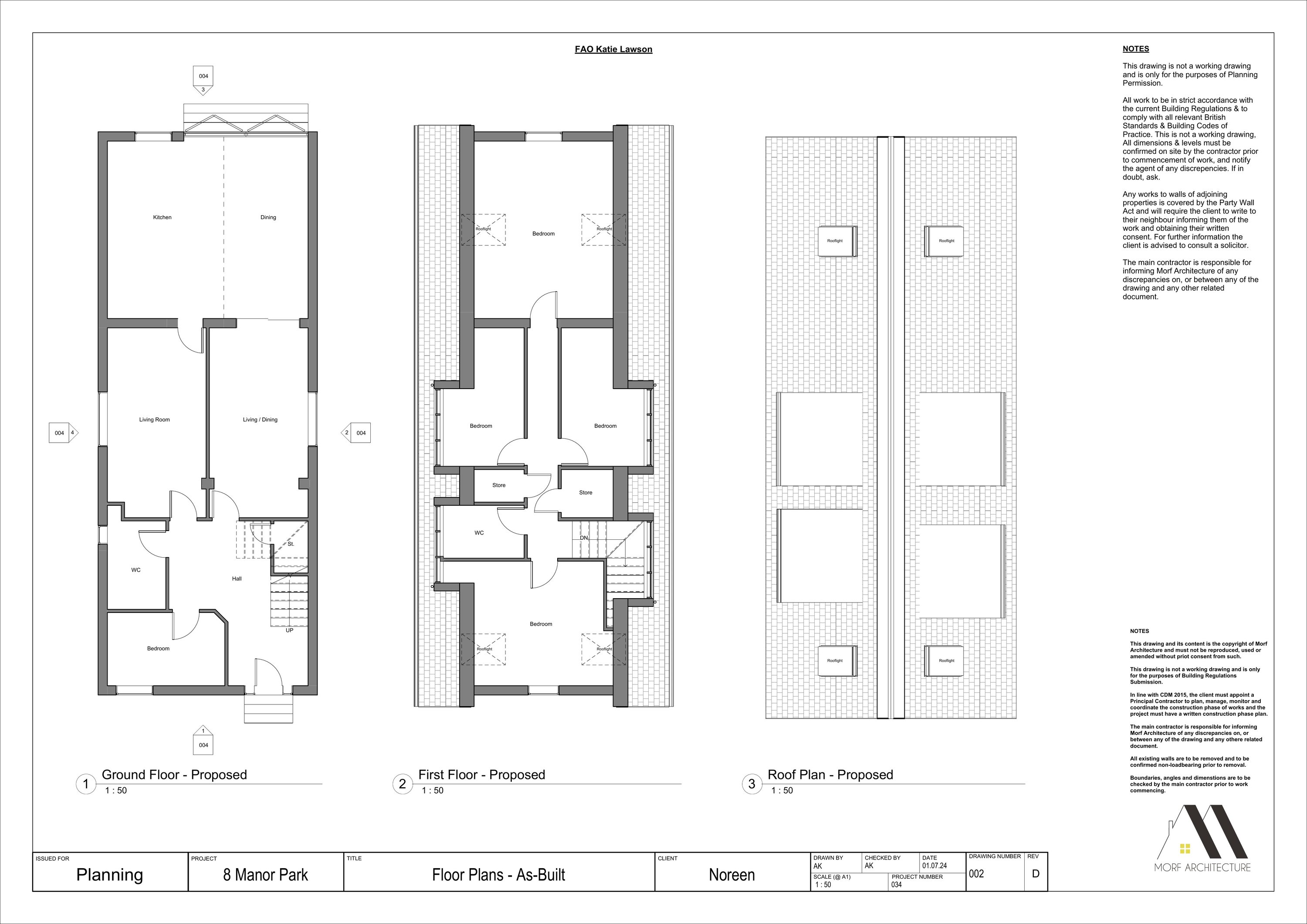
Increase in roof height to form additional storey and dormer extensions to both sides; two storey rear extension (retrospective)

Documents

Application Form
Archived · Original link
Drawing
Archived · Original link
Drawing
Archived · Original link
OS Extract
Archived · Original link
Drawing
Archived · Original link
Drawing
Archived · Original link

Have your say

Your comment matters. Councils must consider every representation that raises material planning considerations.

Write a comment