← Bradford Metropolitan District Council

Status

Pending Consideration House extension
Received
Not recorded
New homes
0

Full proposal

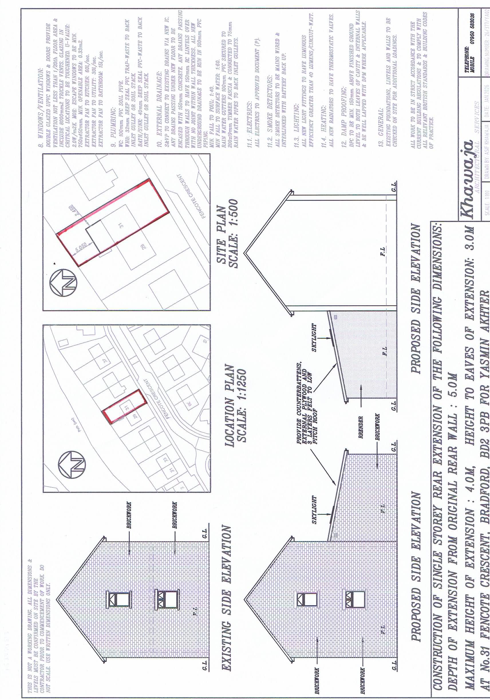
Construction of single storey rear extension of the following dimensions: Depth of proposed extension from rear wall of original dwellinghouse: 5m Maximum height of proposed extension: 4m Height to eaves of proposed extension: 3m

Documents

ALL PLANS
Drawing
Not yet archived · Original link
APPLICATION FORM REDACTED
Application Form
Not yet archived · Original link
EXISTING AND PROPOSED SIDE ELEVATIONS
Drawing
Not yet archived · Original link
GROUND FLOOR PLANS AND REAR ELEVATIONS
Drawing
Not yet archived · Original link
PRIOR NOTIFICATION LETTER
Prior Approval Acknowledgement
Not yet archived · Original link

Have your say

Your comment matters. Councils must consider every representation that raises material planning considerations.

Write a comment