← Bradford Metropolitan District Council

Status

Pending Consideration House extension
Received
Not recorded
New homes
0

Full proposal

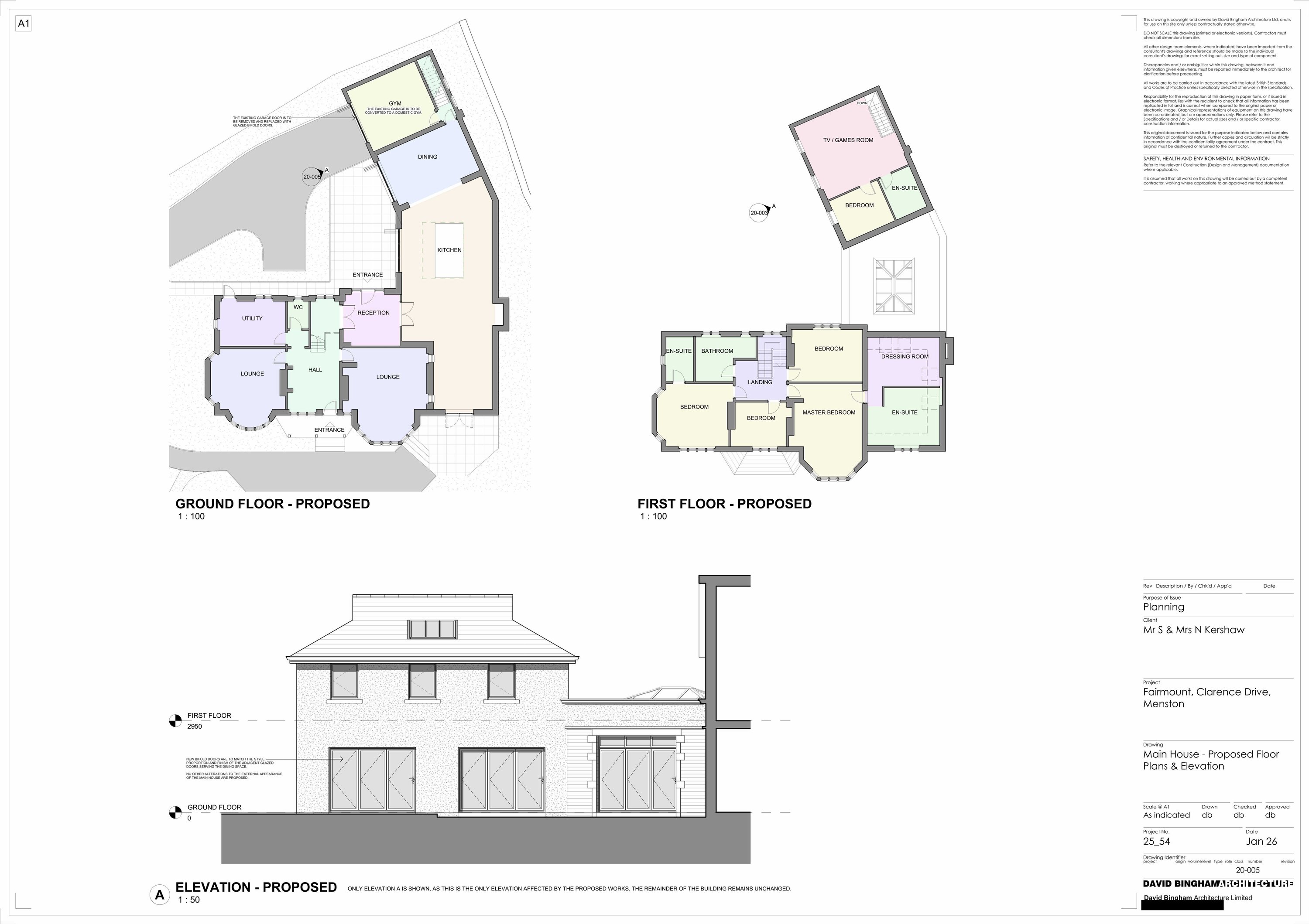
Construction of a detached single-storey garage with rear store to southern boundary, and conversion of existing integral garage to a domestic gym, including replacement of the existing garage door with glazed bifold doors

Documents

Application Form
Archived · Original link
Drawing
Archived · Original link
OS Extract
Archived · Original link
Supporting Information
Archived · Original link
Drawing
Archived · Original link

Have your say

Your comment matters. Councils must consider every representation that raises material planning considerations.

Write a comment