← Bradford Metropolitan District Council
26/00457/HOU
Bradford Metropolitan District Council
Status
Pending Consideration
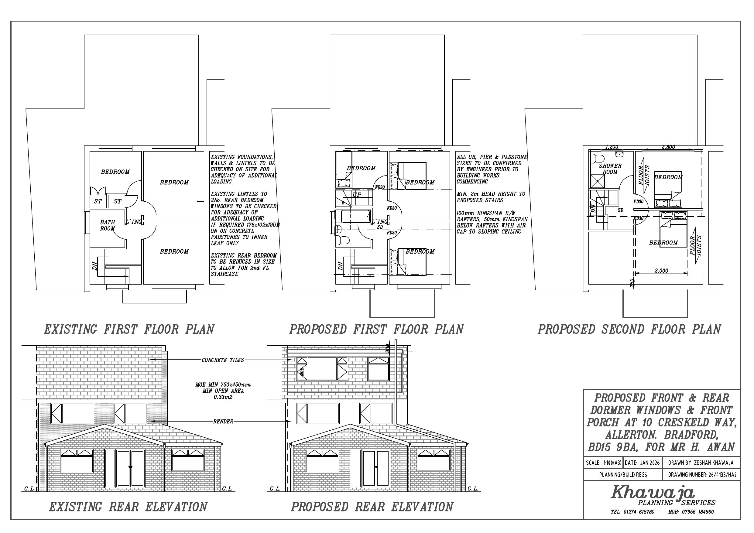
House extension
Received
Not recorded
New homes
0
Full proposal
Hip to gable conversion, front and rear dormer windows and front porch
Documents
Have your say
Your comment matters. Councils must consider every representation that raises material planning considerations.