← Bradford Metropolitan District Council
26/00458/HOU
Bradford Metropolitan District Council
Status
Pending Consideration
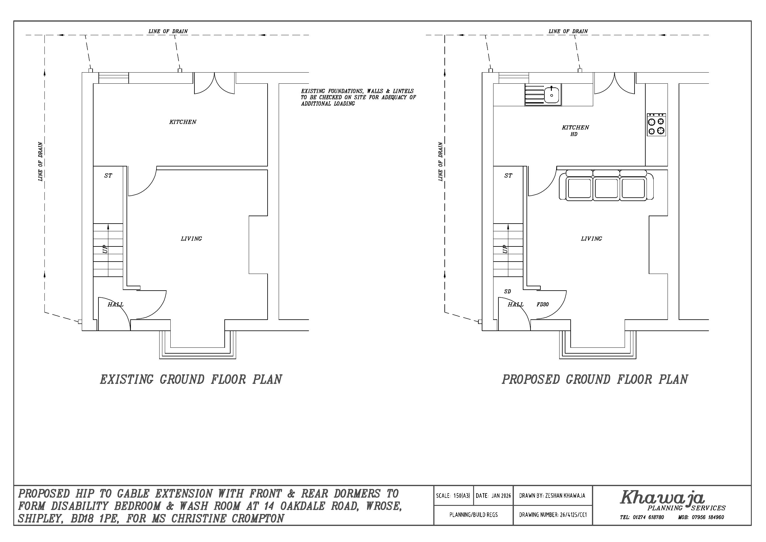
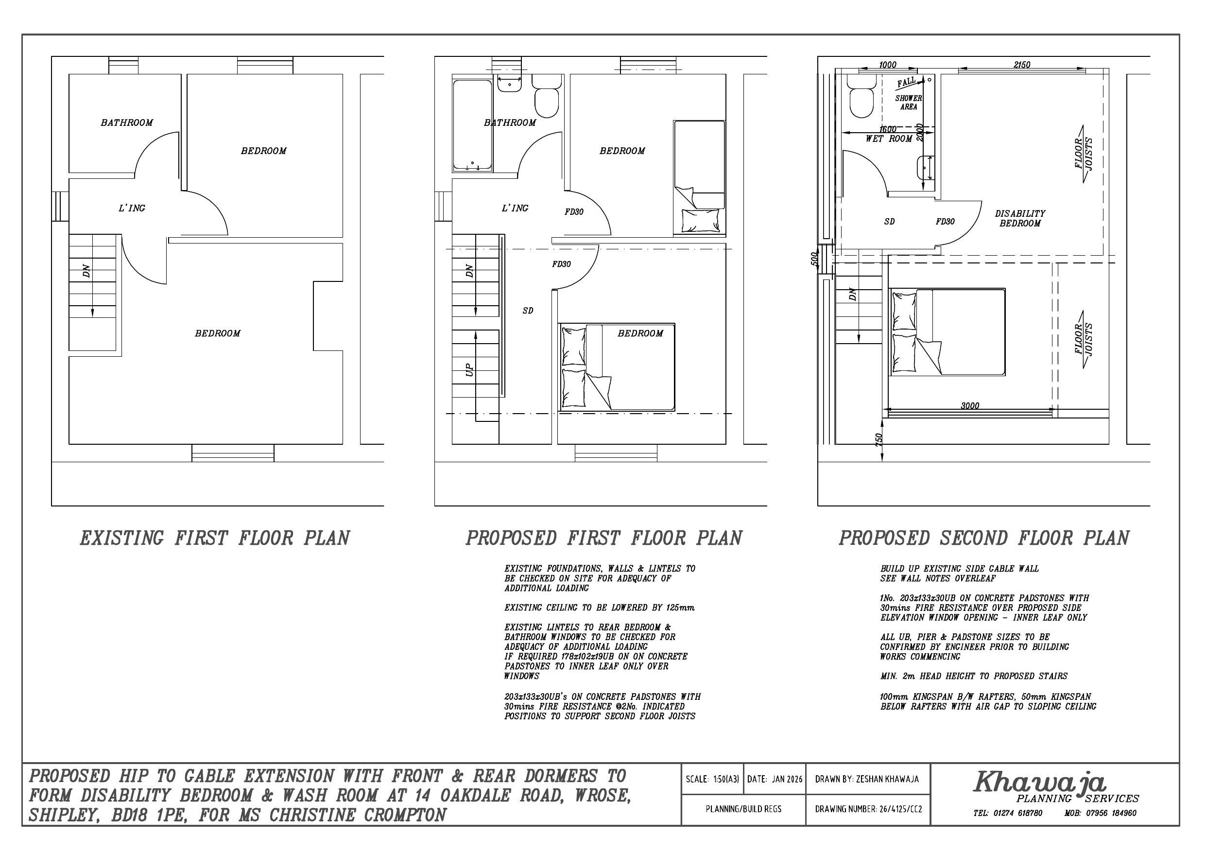
House extension
Received
Not recorded
New homes
0
Full proposal
Hip to gable conversion with front and rear dormer windows
Documents
Have your say
Your comment matters. Councils must consider every representation that raises material planning considerations.