← Bradford Metropolitan District Council
26/00476/HOU
Bradford Metropolitan District Council
Status
Pending Consideration
House extension
Received
Not recorded
New homes
0
Full proposal
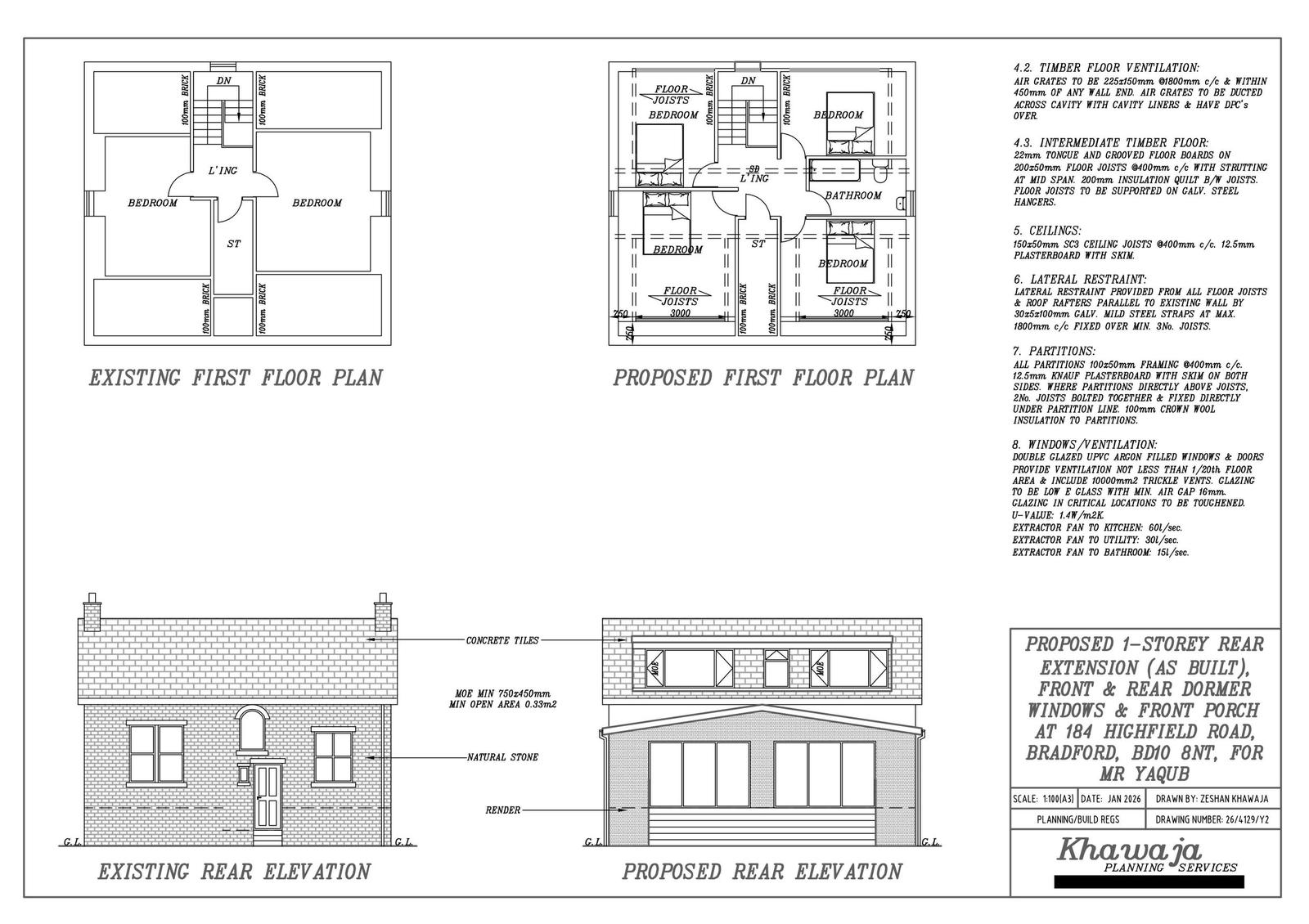
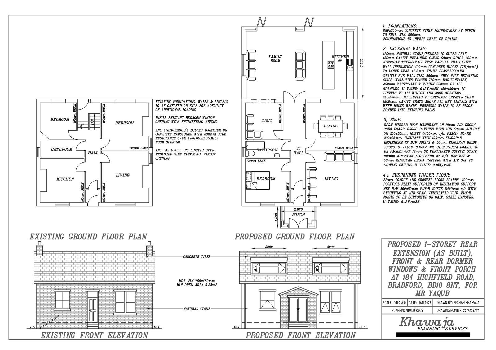
Single storey rear extension (as built), front and rear dormer windows and front porch
Documents
Have your say
Your comment matters. Councils must consider every representation that raises material planning considerations.