← Bradford Metropolitan District Council

Status

Pending Consideration House extension
Received
Not recorded
New homes
0

Full proposal

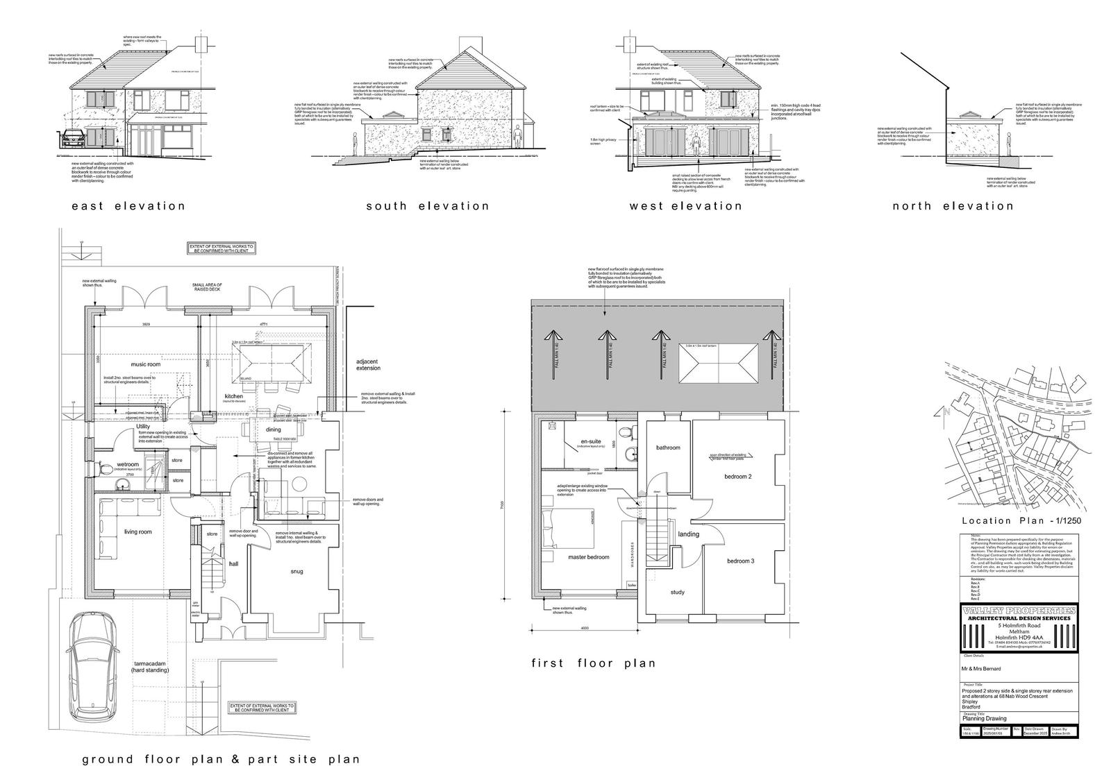
Demolition of existing garage. Construction of two storey side extension, single storey rear extension and raised deck to rear

Documents

Application Form
Archived · Original link
CONSULTEE: RIGHTS OF WAY
Consultee Comment
Not yet archived · Original link
OS Extract
Archived · Original link
Drawing
Archived · Original link

Have your say

Your comment matters. Councils must consider every representation that raises material planning considerations.

Write a comment