← Bradford Metropolitan District Council
26/00505/HOU
Bradford Metropolitan District Council
Status
Pending Consideration
House extension
Received
Not recorded
New homes
0
Full proposal
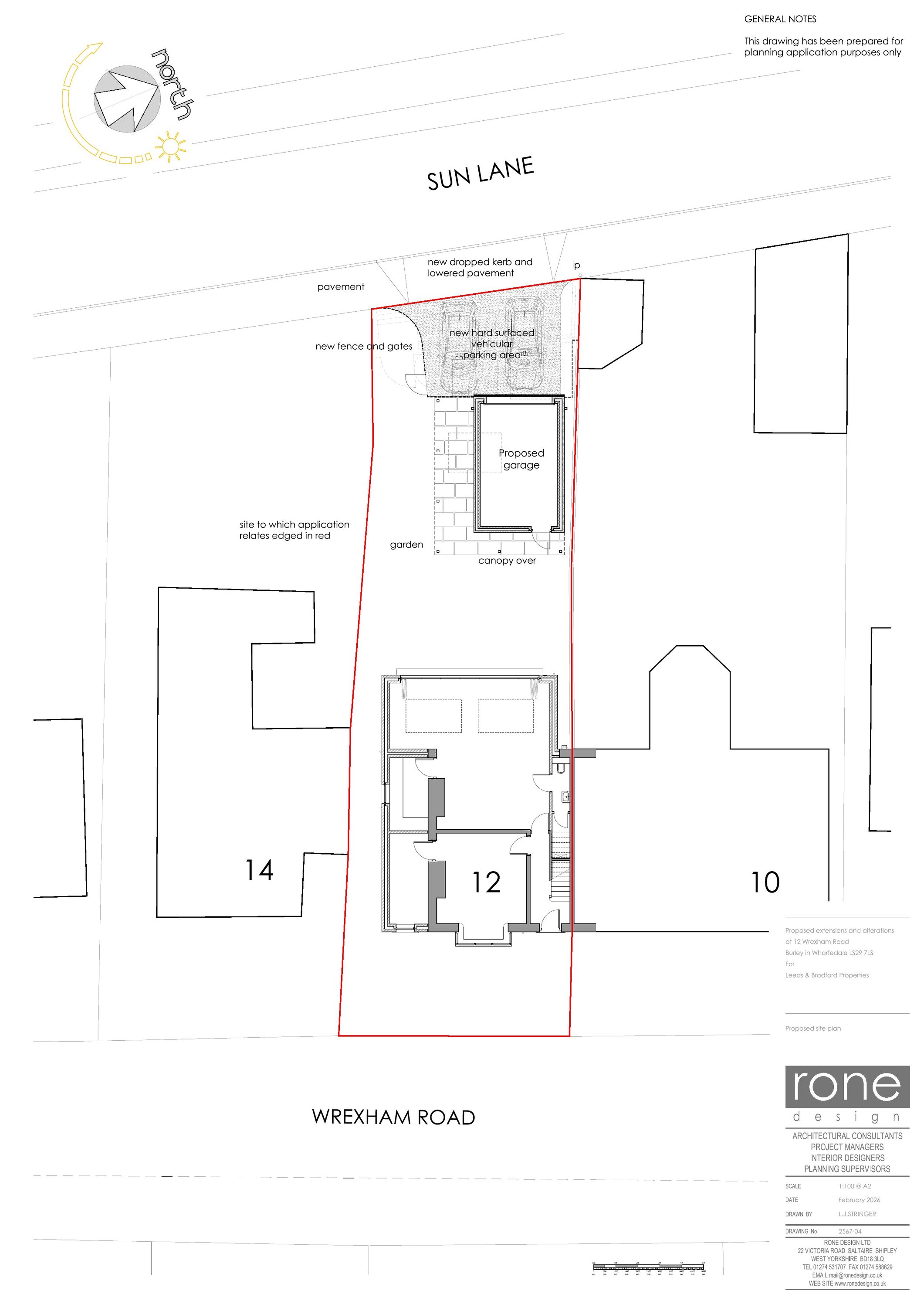
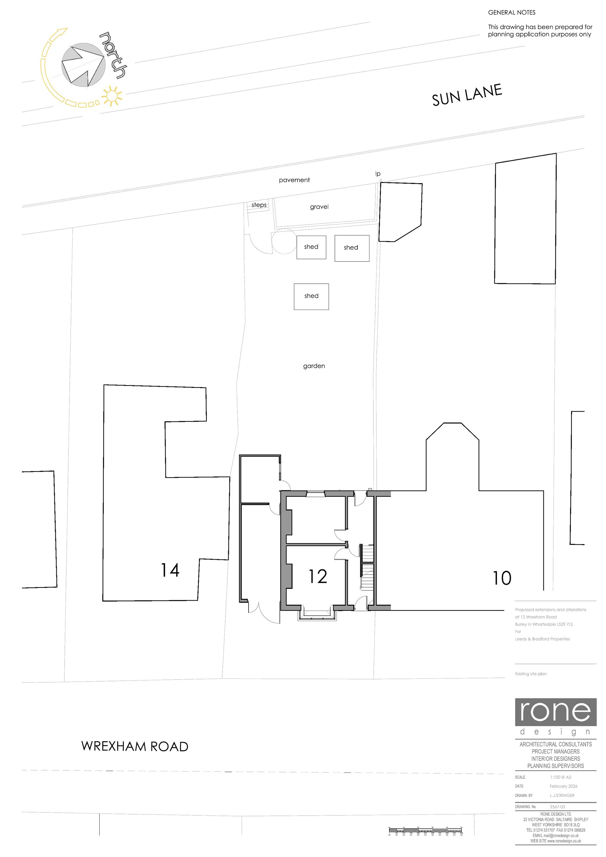
Demolition of garage and lean to. Construction of two storey side extension, single storey rear extension and rear dormer. New detached garage to the rear garden with vehicular access taken from Sun Lane (amended description)
Documents
Have your say
Your comment matters. Councils must consider every representation that raises material planning considerations.