← Bradford Metropolitan District Council
26/00510/HOU
Bradford Metropolitan District Council
Status
Pending Consideration
House extension
Received
Not recorded
New homes
0
Full proposal
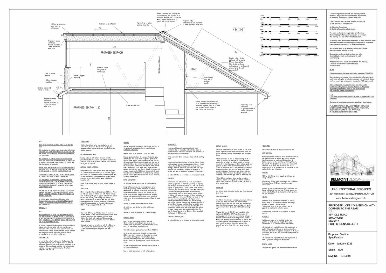
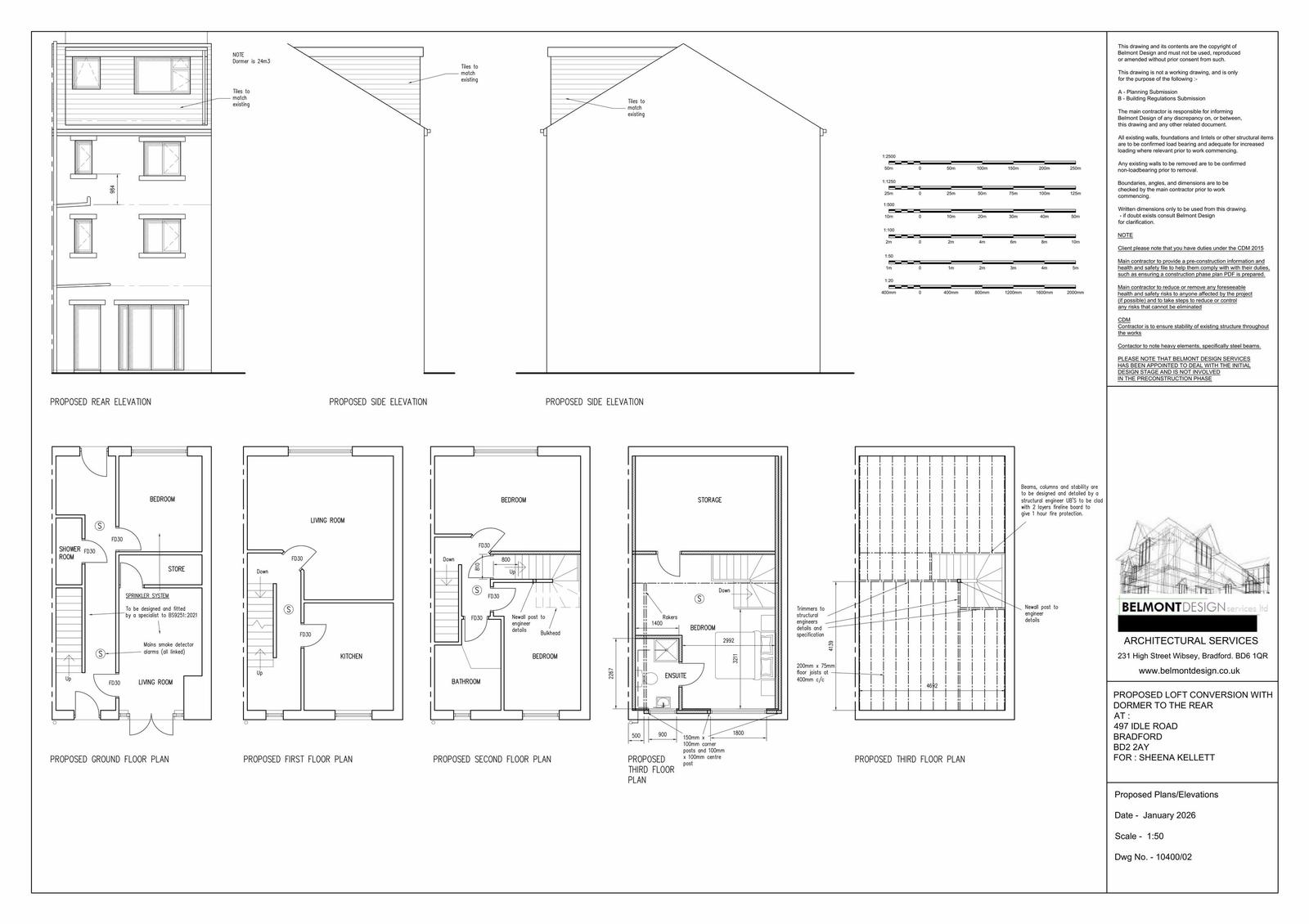
Loft conversion with dormer to the rear
Documents
Have your say
Your comment matters. Councils must consider every representation that raises material planning considerations.