← Bradford Metropolitan District Council

Status

Pending Consideration Listed building
Received
Not recorded
New homes
0

Full proposal

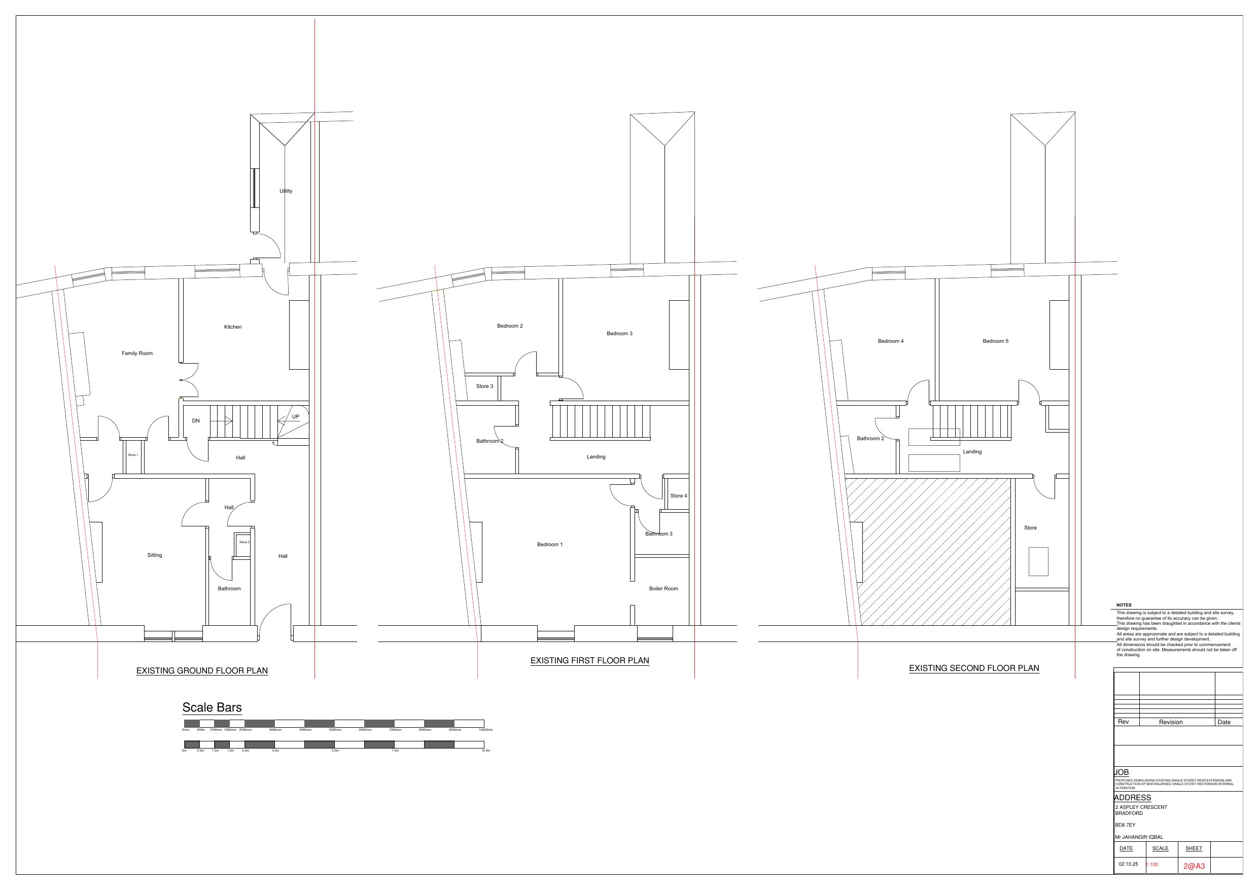
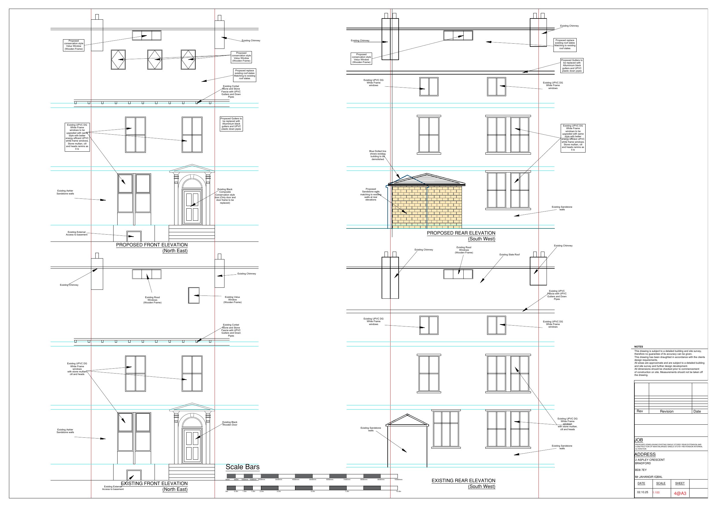
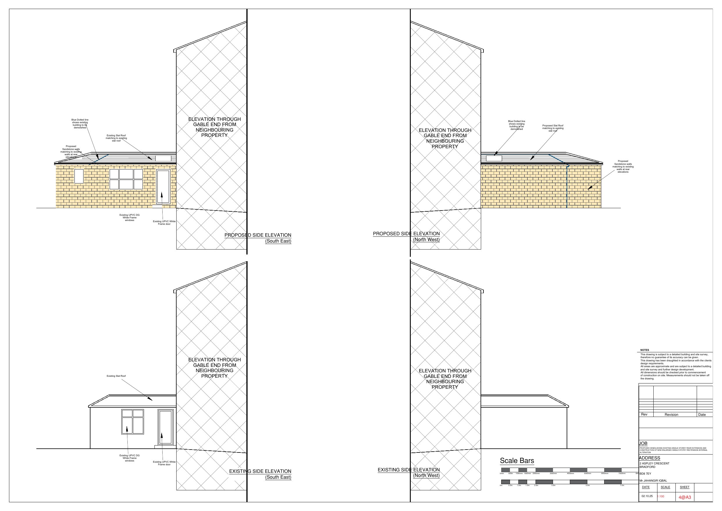
Demolition of single storey rear extension. Construction of single storey rear extension; re-roof of property; insertion of conservation-style rooflights to front roofslope; replacement window frames with UPVC and replacement front door with composite; replacement gutters with aluminium with UPVC down-pipes

Documents

Application Form
Archived · Original link
Drawing
Archived · Original link
Supporting Information
Archived · Original link
OS Extract
Archived · Original link
Drawing
Archived · Original link
Publicity
Archived · Original link

Have your say

Your comment matters. Councils must consider every representation that raises material planning considerations.

Write a comment