← Bradford Metropolitan District Council

Status

Pending Consideration House extension
Received
Not recorded
New homes
0

Full proposal

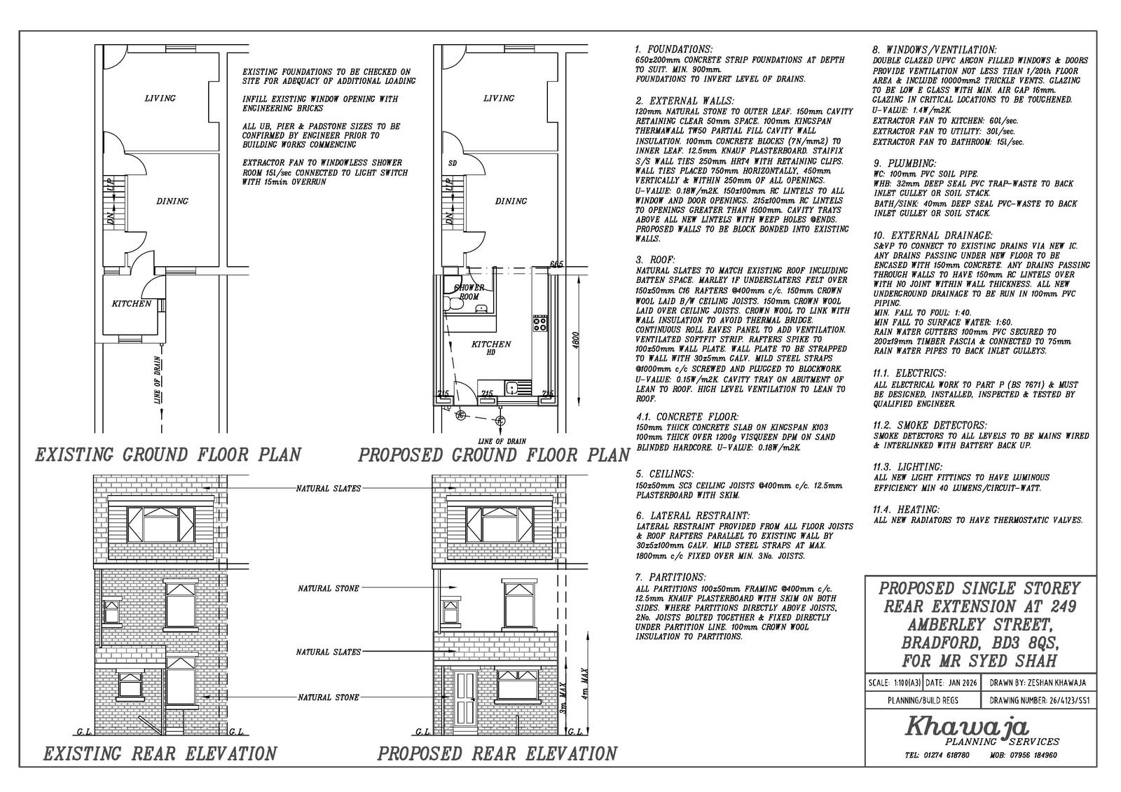
Construction of single storey rear extension of the following dimensions: Depth of proposed extension from rear wall of original dwellinghouse: 4.8m Maximum height of proposed extension: 4m Height to eaves of proposed extension: 3m

Documents

Application Form
Archived · Original link
EXISTING AND PROPOSED REAR PLANS AND ELEVATIONS AND FLOOR PLANS
Drawing
Not yet archived · Original link
EXISTING AND PROPOSED SIDE ELEVATIONS
Drawing
Not yet archived · Original link
OS Extract
Archived · Original link
Prior Approval Acknowledgement
Archived · Original link
Drawing
Archived · Original link

Have your say

Your comment matters. Councils must consider every representation that raises material planning considerations.

Write a comment