← Bradford Metropolitan District Council
26/00662/HOU
Bradford Metropolitan District Council
Status
Pending Consideration
House extension
Received
Not recorded
New homes
0
Full proposal
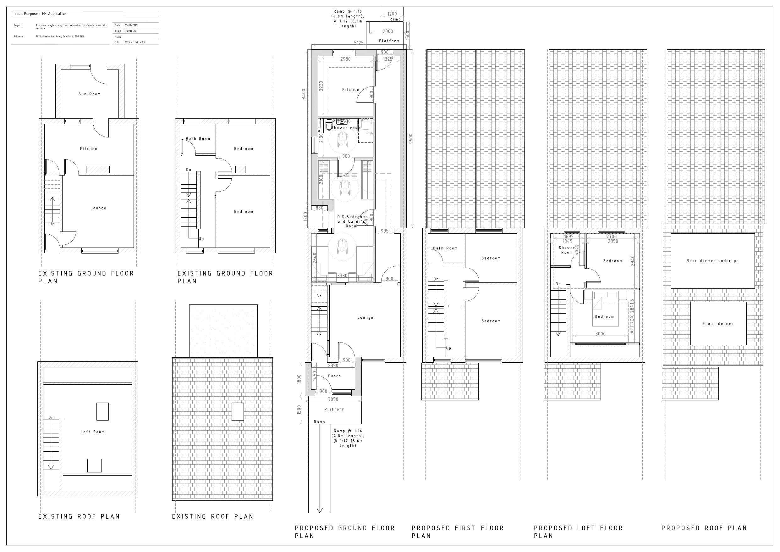
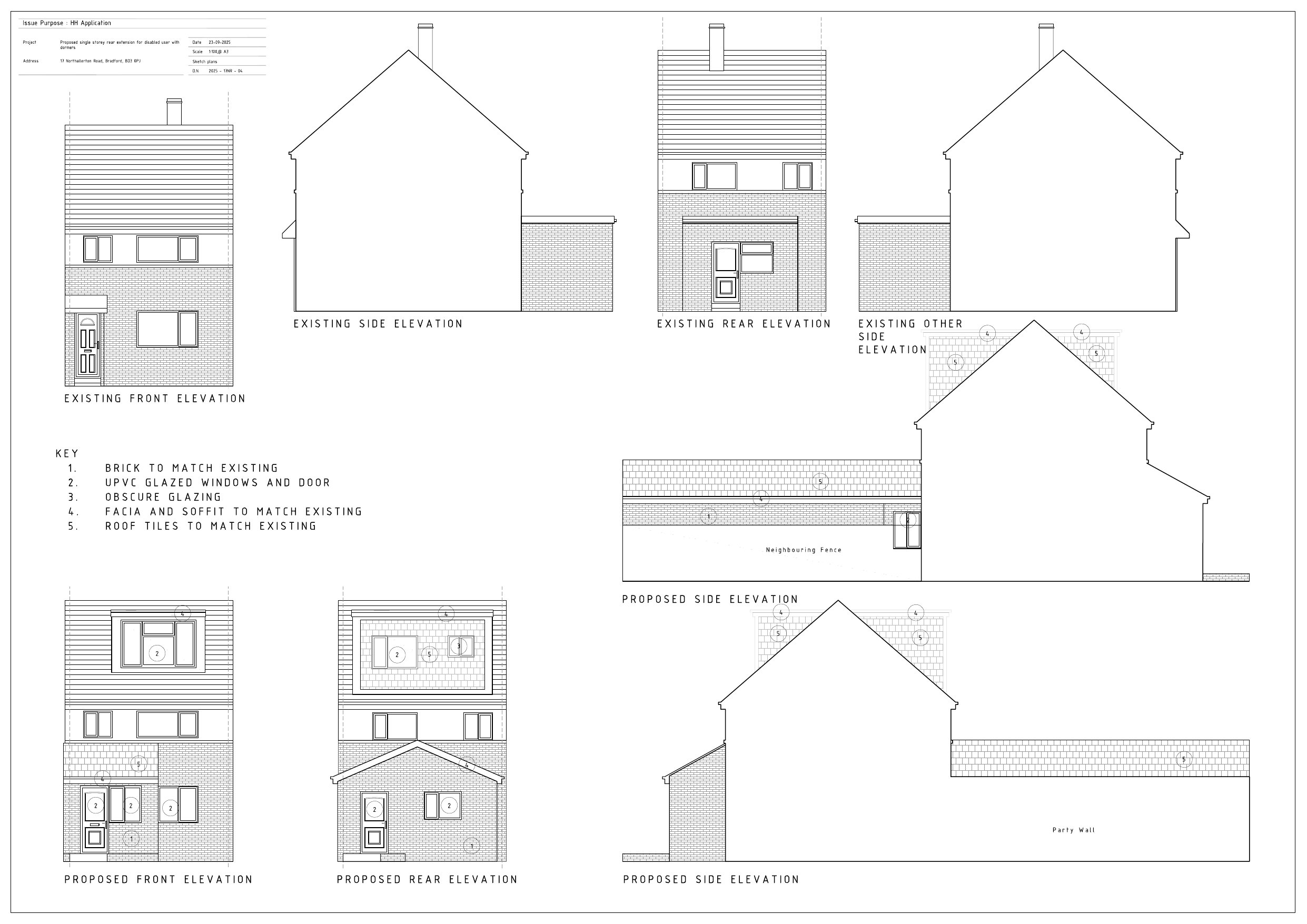
Single storey rear extension and front dormer, rear dormer.
Documents
Have your say
Your comment matters. Councils must consider every representation that raises material planning considerations.